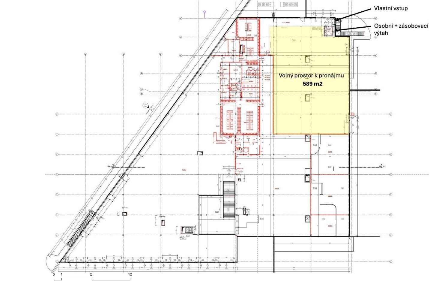
Pronájem obchodního prostoru 589 m² na ulici Kaštanová v Brně
Pronájem obchodního prostoru o výměře 589m2, který se nachází ve 2.NP a má samostatný vstup přes venkovní schodiště a je také zajištěn bezbariérový vstup výtahem (osobní/zásobovací).
Prostor sousedí na patře s nově otevřeným Fitness centrem Gymnation.
Obchodní centrum nabízí široké možnosti využití – prostor je ideální pro maloobchod, showroom, služby, fitness studio nebo například ordinaci. K dispozici je klimatizace, vlastní sociální zázemí a možnost umístění viditelné reklamy na fasádu objektu. Samozřejmostí je bezbariérový přístup a dostatek parkovacích míst pro zákazníky, včetně vyhrazených stání pro osoby se sníženou pohyblivostí.
Lokalita vyniká strategickou dopravní dostupností, v blízkosti jsou napojení na dálnice D1 a D2, a v pěší vzdálenosti je i zastávka MHD.
Uživatel serveru RealityMIX.cz (dále jen „Server“) dostupného na internetové adrese (URL) https://www.realitymix.cz, který provozuje společnost DALTEN media s.r.o., se sídlem Na Harfě 916/9a, Praha 9, 190 00, IČO: 271 35 306 (dále jen „Správce“) jako provozovateli tohoto Serveru uděluje svůj výslovný souhlas v souladu s ustanovením § 5 zákona č. 101/2000 Sb. O ochraně osobních údajů a o změně některých zákonů, v platném znění (dále jen „zákon o ochraně osobních údajů“), se zpracováním uživatelem poskytnutých osobních údajů a dalších dat.
Uživatel poskytuje Správci osobní údaje v rozsahu: jméno, příjmení, e-mailová adresa, telefonický kontakt a další data, a to z důvodu projeveného zájmu o nemovitost, kde prostřednictvím služby Serveru Správce osloví Uživatel inzerenta uvedeného v detailu
nemovitosti - OFIXIU s.r.o. (IČ 07823266) se zájmem o jeho služby.
Uživatel tyto osobní údaje poskytuje dobrovolně a bere na vědomí, že součástí služeb Správce, které Správce Uživateli poskytuje, je vyhledání všech Uživateli vyhovujících (dle parametrů - cena, typ nemovitosti, lokalita atd.) nemovitostí. Správce za tímto účelem provozuje aplikace Hlídací pes a newsletter. Tyto služby je možné z každého zaslaného emailu odhlásit. Souhlas se zpracováním osobních údajů Uživatel poskytuje Správci na dobu neurčitou s tím, že svůj udělený souhlas může Uživatel kdykoliv na drese správce info@realitymix.cz odvolat. Správce garantuje Uživateli i další práva uvedené v ustanovení §11 a §21 zákoba č. 101/200 Sb. Ve znění pozdějších předpisů.
Více informací o zpracování údajů získáte zde (realitymix.cz/zasady-ochrany-osobnich-udaju)