Velmi pěkný zděný byt 3+kk 91 m2, Havlíčkův Brod - Stromovka
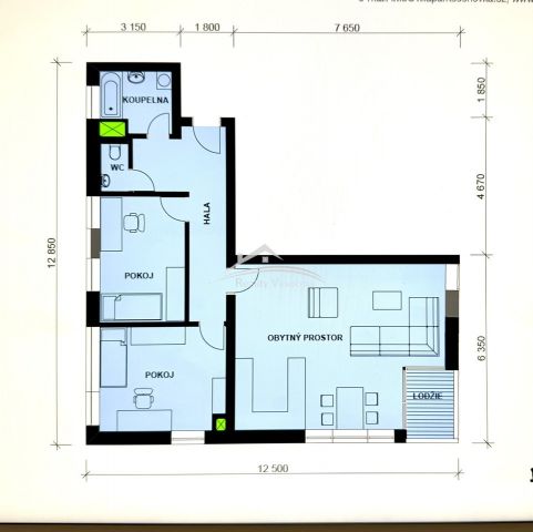
Ve výhradním zastoupení nabízíme velmi pěkný zděný byt 3+kk o podlahové ploše 91 m², který byl dokončen v roce 2019 a nachází se ve 2. nadzemním podlaží zatepleného a moderně vybaveného bytového domu.Dispozice bytu zahrnuje prostornou předsíň a chodbu, koupelnu s vanou, umyvadlem a místem pro pračku se sušičkou. Samostatné WC je umístěno hned vedle koupelny. Dominantou bytu je velkorysý obývací pokoj s kuchyní o ploše přibližně 45 m², orientovaný na jižní stranu směrem do ulice. Z této místnosti je přímý vstup na lodžii. Kuchyňská linka je plně vybavena vestavěnými spotřebiči – elektrickou varnou deskou, horkovzdušnou troubou, digestoří, myčkou a novou lednicí s mrazákem. Celý byt byl nově vymalován bílou barvou.Topení je dálkové s dálkovými odečty, v koupelně je navíc podlahové topení pro vyšší komfort. V bytě jsou plovoucí podlahy, v koupelně a na WC keramická dlažba. Jádro je zděné, voda i teplo jsou zajištěny dálkovým odečtem.Součástí nabídky je také uzamykatelná sklepní kóje o velikosti cca 3 m² a možnost pronájmu krytého parkovacího stání (2.000 Kč/měsíc), které se nachází ve stejném podlaží jako sklep. Vstup do domu je zabezpečen čipovým systémem a garážová vrata se ovládají pohodlně přes mobilní telefon.Velkou výhodou je možnost dokoupit stávající pronajaté i sousední parkovací místo, které je aktuálně do konce roku 2025 v pronájmu – ideální řešení pro dvouvozidlovou domácnost.Byt je ve výborném technickém stavu, ihned k nastěhování. Bytový dům je čistý a pravidelně udržovaný, úklid zajišťuje profesionální firma. Díky osobnímu vlastnictví lze koupi financovat hypotečním úvěrem nebo stavebním spořením – s vyřízením vám ochotně pomůže náš hypoteční specialista.
Pomocí naší hypoteční kalkulačky si můžete udělat orientační představu o výši měsíčních splátek hypotéky. O vše ostatní se pak postaráme my ve spolupráci s našimi obchodními partnery.
26 681 Kč
* Odhadovaná měsíční splátka vychází z výše úvěru Kč s pevnou úrokovou sazbou % po celou dobu trvání úvěru.
Prodáváte nemovitost a potřebujete zjistit její reálnou hodnotu?
Uživatel serveru RealityMIX.cz (dále jen „Server“) dostupného na internetové adrese (URL) https://www.realitymix.cz, který provozuje společnost DALTEN media s.r.o., se sídlem Na Harfě 916/9a, Praha 9, 190 00, IČO: 271 35 306 (dále jen „Správce“) jako provozovateli tohoto Serveru uděluje svůj výslovný souhlas v souladu s ustanovením § 5 zákona č. 101/2000 Sb. O ochraně osobních údajů a o změně některých zákonů, v platném znění (dále jen „zákon o ochraně osobních údajů“), se zpracováním uživatelem poskytnutých osobních údajů a dalších dat.
Uživatel poskytuje Správci osobní údaje v rozsahu: jméno, příjmení, e-mailová adresa, telefonický kontakt a další data, a to z důvodu projeveného zájmu o nemovitost, kde prostřednictvím služby Serveru Správce osloví Uživatel inzerenta uvedeného v detailu
nemovitosti - Reality Vysočina s.r.o. (IČ 28762631 ) se zájmem o jeho služby.
Uživatel tyto osobní údaje poskytuje dobrovolně a bere na vědomí, že součástí služeb Správce, které Správce Uživateli poskytuje, je vyhledání všech Uživateli vyhovujících (dle parametrů - cena, typ nemovitosti, lokalita atd.) nemovitostí. Správce za tímto účelem provozuje aplikace Hlídací pes a newsletter. Tyto služby je možné z každého zaslaného emailu odhlásit. Souhlas se zpracováním osobních údajů Uživatel poskytuje Správci na dobu neurčitou s tím, že svůj udělený souhlas může Uživatel kdykoliv na drese správce info@realitymix.cz odvolat. Správce garantuje Uživateli i další práva uvedené v ustanovení §11 a §21 zákoba č. 101/200 Sb. Ve znění pozdějších předpisů.
Více informací o zpracování údajů získáte zde (realitymix.cz/zasady-ochrany-osobnich-udaju)