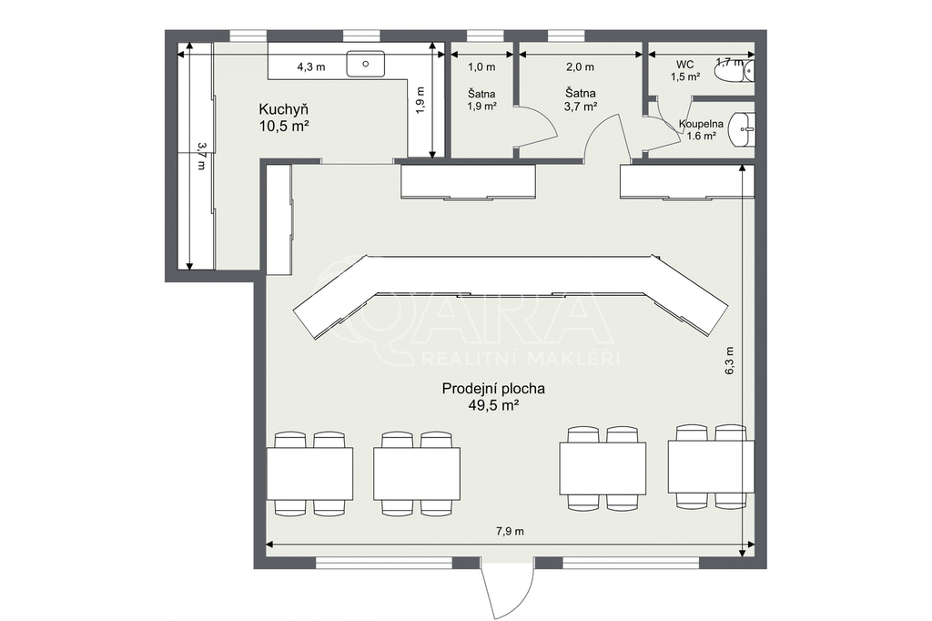
Nabízíme přenechání pronájmu kompletně vybavené provozovny pekárny o celkové ploše 62 m² na velmi frekventovaném místě mezi Jesenicí a Vestcem. Prostor může být využit také jako bistro, kavárna či lahůdky.
Součástí jednotky je prodejní plocha s posezením pro zákazníky, v letních měsících možnost venkovního posezení. Dále je zde k dispozici menší kuchyňka, šatna a toaleta s umyvadlem.
Jedná se o atraktivní lokalitu s vysokou průjezdností – denně zde projedou tisíce aut. Výhodou je také pohodlné parkování přímo před provozovnou nebo na přilehlém parkovišti.
Prostor se přenechává včetně kompletního zařízení za odstupné. Aktuální nájemní smlouva je platná do 31. 8. 2028.
Pokud hledáte prostor pro vaše podnikání v zavedené lokalitě s vysokou frekvencí zákazníků, neváhejte mě kontaktovat, rád vás nemovitostí osobně provedu.
Uživatel serveru RealityMIX.cz (dále jen „Server“) dostupného na internetové adrese (URL) https://www.realitymix.cz, který provozuje společnost DALTEN media s.r.o., se sídlem Na Harfě 916/9a, Praha 9, 190 00, IČO: 271 35 306 (dále jen „Správce“) jako provozovateli tohoto Serveru uděluje svůj výslovný souhlas v souladu s ustanovením § 5 zákona č. 101/2000 Sb. O ochraně osobních údajů a o změně některých zákonů, v platném znění (dále jen „zákon o ochraně osobních údajů“), se zpracováním uživatelem poskytnutých osobních údajů a dalších dat.
Uživatel poskytuje Správci osobní údaje v rozsahu: jméno, příjmení, e-mailová adresa, telefonický kontakt a další data, a to z důvodu projeveného zájmu o nemovitost, kde prostřednictvím služby Serveru Správce osloví Uživatel inzerenta uvedeného v detailu
nemovitosti - QARA s.r.o. (IČ 01740113) se zájmem o jeho služby. Tato společnost je součástí seskupení/sítě/franšízového modelu realitních kanceláří, jejich seznam můžete zobrazit kliknutím na tento odkaz.
QARA s.r.o. Ostrava (IČ 01740113) , QARA s.r.o. Brno (IČ 01740113) , QARA s.r.o. (IČ 01740113)
Uživatel tyto osobní údaje poskytuje dobrovolně a bere na vědomí, že součástí služeb Správce, které Správce Uživateli poskytuje, je vyhledání všech Uživateli vyhovujících (dle parametrů - cena, typ nemovitosti, lokalita atd.) nemovitostí. Správce za tímto účelem provozuje aplikace Hlídací pes a newsletter. Tyto služby je možné z každého zaslaného emailu odhlásit. Souhlas se zpracováním osobních údajů Uživatel poskytuje Správci na dobu neurčitou s tím, že svůj udělený souhlas může Uživatel kdykoliv na drese správce info@realitymix.cz odvolat. Správce garantuje Uživateli i další práva uvedené v ustanovení §11 a §21 zákoba č. 101/200 Sb. Ve znění pozdějších předpisů.
Více informací o zpracování údajů získáte zde (realitymix.cz/zasady-ochrany-osobnich-udaju)