Vánoční sleva při podpisu rezervační nebo kupní smlouvy do 15.12.2025 - Pozor akční nabídka končí 15.12.2025
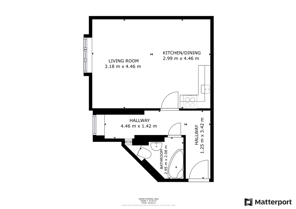
Nabízím k prodeji světlý a prostorný byt 1+1 o velikosti 46m2 v osobním vlastnictví po rekonstrukci ve 4NP cihlového domu bez výtahu.
Byt má novou kuchyňskou linku vybavenou s vestavěnými spotřebiči. Byt má zajímavě členitou chodbu, kterou lze využít na šatní skříň nebo pracovnu případně místo pro Vaše zvíře. Koupelna nabízí vanu a prostor pro pračku a toaletu.
V posledním patře domu jsou pouze dva byty, přímo na chodbě je k dispozici další větraná místnost - pracovna, sklad, případně ložnice (součást bytové jednotky). Možnost vstupu na prostornou půdu a využití volné společné plochy k uskladnění věcí, které nejsou potřeba k denní potřebě, případné lze věšet prádlo.
K bytu náleží sklep (6m2)
Nízké měsíční poplatky SVJ.
Dostupnost na metro od domu stanice Vysočanská a Kolbenova několik minut pěšky, nebo tramvajová zastávka Poštovská, stejně tak obchodní centrum Fénix.
K dispozici je také cyklostezka vedoucí přes centrum města až do Modřan. Parkování je možné přímo před domem.
Byt je volný i k okamžitému nastěhování. Možnost financování hypotékou.
V případě zájmu o více infomací nebo prohlídku mě kontaktujte.
Pomocí naší hypoteční kalkulačky si můžete udělat orientační představu o výši měsíčních splátek hypotéky. O vše ostatní se pak postaráme my ve spolupráci s našimi obchodními partnery.
25 871 Kč
* Odhadovaná měsíční splátka vychází z výše úvěru Kč s pevnou úrokovou sazbou % po celou dobu trvání úvěru.
Prodáváte nemovitost a potřebujete zjistit její reálnou hodnotu?
Uživatel serveru RealityMIX.cz (dále jen „Server“) dostupného na internetové adrese (URL) https://www.realitymix.cz, který provozuje společnost DALTEN media s.r.o., se sídlem Na Harfě 916/9a, Praha 9, 190 00, IČO: 271 35 306 (dále jen „Správce“) jako provozovateli tohoto Serveru uděluje svůj výslovný souhlas v souladu s ustanovením § 5 zákona č. 101/2000 Sb. O ochraně osobních údajů a o změně některých zákonů, v platném znění (dále jen „zákon o ochraně osobních údajů“), se zpracováním uživatelem poskytnutých osobních údajů a dalších dat.
Uživatel poskytuje Správci osobní údaje v rozsahu: jméno, příjmení, e-mailová adresa, telefonický kontakt a další data, a to z důvodu projeveného zájmu o nemovitost, kde prostřednictvím služby Serveru Správce osloví Uživatel inzerenta uvedeného v detailu
nemovitosti - Milan Lolo (IČ 76319717) se zájmem o jeho služby.
Uživatel tyto osobní údaje poskytuje dobrovolně a bere na vědomí, že součástí služeb Správce, které Správce Uživateli poskytuje, je vyhledání všech Uživateli vyhovujících (dle parametrů - cena, typ nemovitosti, lokalita atd.) nemovitostí. Správce za tímto účelem provozuje aplikace Hlídací pes a newsletter. Tyto služby je možné z každého zaslaného emailu odhlásit. Souhlas se zpracováním osobních údajů Uživatel poskytuje Správci na dobu neurčitou s tím, že svůj udělený souhlas může Uživatel kdykoliv na drese správce info@realitymix.cz odvolat. Správce garantuje Uživateli i další práva uvedené v ustanovení §11 a §21 zákoba č. 101/200 Sb. Ve znění pozdějších předpisů.
Více informací o zpracování údajů získáte zde (realitymix.cz/zasady-ochrany-osobnich-udaju)