Pronájem nebytových prostor 170 m2, Praha 10 - Vinohrady, ul. Chorvatská, v blízkosti metro A Flóra
Pronájem obchodních a kancelářských prostor o ploše 170m2, v přízemí činžovního domu se samostatným vchodem, ulice Chorvatská, Praha 10 - Vinohrady/Vršovice, v blízkosti metra A Flóra.
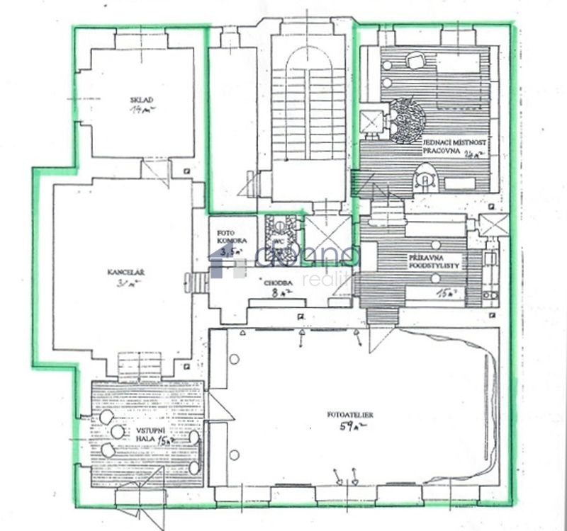
Vhodné: školící a vzdělávací centrum, kanceláře, internetový obchod, fotoateliér, fyzioterapie.....
- vstupní prostor 15 m2 (možnost využití jako recepce nebo čekárna)
- jedna místnost (kancelář) 31 m2 se skladovým prostorem 14 m2
- velká prosvětlená místnost 59 m2 + vstup do dalšího odděleného prostoru 15 m2, zde je umístěna malá kuchyňka s pultíkem vč. lednice a
myčky nádobí + další skladový prostor (šatna) 21 m2
- samostatná toaleta, šatna, sprchový kout
- celý objekt je vytápěn samostatným plynovým kotlem
K dispozici od 1.1.2026.
Nájem 32 000 Kč + poplatky 400,-Kč/os., elektřina a plyn se převádí na nájemce. Kauce 1x nájem, provize.
Majitel si vyhrazuje právo výběru nájemce.
PENB se připravuje.
Cena:
32 000 Kč / (za měsíc)
Poznámka:
+ poplatky 400,-Kč/os., elektřina a plyn se převádí na nájemce. Kauce 1x nájem, provize
Uživatel serveru RealityMIX.cz (dále jen „Server“) dostupného na internetové adrese (URL) https://www.realitymix.cz, který provozuje společnost DALTEN media s.r.o., se sídlem Na Harfě 916/9a, Praha 9, 190 00, IČO: 271 35 306 (dále jen „Správce“) jako provozovateli tohoto Serveru uděluje svůj výslovný souhlas v souladu s ustanovením § 5 zákona č. 101/2000 Sb. O ochraně osobních údajů a o změně některých zákonů, v platném znění (dále jen „zákon o ochraně osobních údajů“), se zpracováním uživatelem poskytnutých osobních údajů a dalších dat.
Uživatel poskytuje Správci osobní údaje v rozsahu: jméno, příjmení, e-mailová adresa, telefonický kontakt a další data, a to z důvodu projeveného zájmu o nemovitost, kde prostřednictvím služby Serveru Správce osloví Uživatel inzerenta uvedeného v detailu
nemovitosti - Realitní kancelář Donna s.r.o. (IČ 02518546) se zájmem o jeho služby.
Uživatel tyto osobní údaje poskytuje dobrovolně a bere na vědomí, že součástí služeb Správce, které Správce Uživateli poskytuje, je vyhledání všech Uživateli vyhovujících (dle parametrů - cena, typ nemovitosti, lokalita atd.) nemovitostí. Správce za tímto účelem provozuje aplikace Hlídací pes a newsletter. Tyto služby je možné z každého zaslaného emailu odhlásit. Souhlas se zpracováním osobních údajů Uživatel poskytuje Správci na dobu neurčitou s tím, že svůj udělený souhlas může Uživatel kdykoliv na drese správce info@realitymix.cz odvolat. Správce garantuje Uživateli i další práva uvedené v ustanovení §11 a §21 zákoba č. 101/200 Sb. Ve znění pozdějších předpisů.
Více informací o zpracování údajů získáte zde (realitymix.cz/zasady-ochrany-osobnich-udaju)