Prostorný a světlý byt 3+kk s balkonem, 96 m², Vestec u Prahy
Hledáte moderní, klidné a prostorné bydlení kousek od Prahy? Pak vás jistě zaujme tento světlý byt 3+kk s balkonem, který nabízí pohodlí, soukromí a skvělou dostupnost do centra města. Nachází se v oblíbené lokalitě Vestec a je připraven k nastěhování.
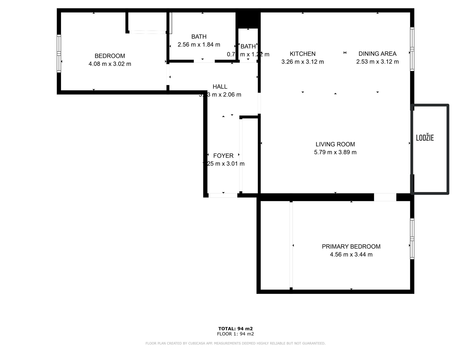
Byt se nachází ve 2. patře cihlového domu a díky umístění v posledním podlaží poskytuje maximální míru soukromí a klid. Celková podlahová plocha činí 92 m², balkon má dalších 4 m² – celkem tedy 96 m² obytného prostoru.
Dispozice zahrnuje prostorný obývací pokoj s kuchyňským koutem, dvě samostatné ložnice, prostornou koupelnu, samostatné WC a balkon přístupný z obývacího pokoje. Byt je v dobrém stavu, bez nutnosti větších investic.
Parkování je zajištěno na venkovních stáních přímo u domu.
Lokalita Vestec nabízí kompletní občanskou vybavenost – v pěší vzdálenosti najdete školku, školu, poštu, obchody a další služby. Skvělá je také dopravní dostupnost – zastávka autobusu je hned u domu a autem se pohodlně dostanete do Prahy po dálnici D1.
Tento byt je ideální volbou pro rodiny nebo páry, kteří hledají kvalitní bydlení v klidné a zároveň dobře dostupné lokalitě.
Pomocí naší hypoteční kalkulačky si můžete udělat orientační představu o výši měsíčních splátek hypotéky. O vše ostatní se pak postaráme my ve spolupráci s našimi obchodními partnery.
39 678 Kč
* Odhadovaná měsíční splátka vychází z výše úvěru Kč s pevnou úrokovou sazbou % po celou dobu trvání úvěru.
Prodáváte nemovitost a potřebujete zjistit její reálnou hodnotu?
Uživatel serveru RealityMIX.cz (dále jen „Server“) dostupného na internetové adrese (URL) https://www.realitymix.cz, který provozuje společnost DALTEN media s.r.o., se sídlem Na Harfě 916/9a, Praha 9, 190 00, IČO: 271 35 306 (dále jen „Správce“) jako provozovateli tohoto Serveru uděluje svůj výslovný souhlas v souladu s ustanovením § 5 zákona č. 101/2000 Sb. O ochraně osobních údajů a o změně některých zákonů, v platném znění (dále jen „zákon o ochraně osobních údajů“), se zpracováním uživatelem poskytnutých osobních údajů a dalších dat.
Uživatel poskytuje Správci osobní údaje v rozsahu: jméno, příjmení, e-mailová adresa, telefonický kontakt a další data, a to z důvodu projeveného zájmu o nemovitost, kde prostřednictvím služby Serveru Správce osloví Uživatel inzerenta uvedeného v detailu
nemovitosti - CENTURY 21 4fin Reality Praha, Opletalova (IČ 06542107) se zájmem o jeho služby. Tato společnost je součástí seskupení/sítě/franšízového modelu realitních kanceláří, jejich seznam můžete zobrazit kliknutím na tento odkaz.
CENTURY 21 4fin Reality Praha, Opletalova (IČ 06542107) , CENTURY 21 4fin Reality Ústí nad Orlicí (IČ 06542107) , CENTURY 21 4fin Reality Olomouc (IČ 06542107) , CENTURY 21 4fin Reality Ústí nad Labem (IČ 06542107) , CENTURY 21 4fin Reality Tábor (IČ 06542107) , CENTURY 21 4fin Reality Better together (IČ 06542107) , CENTURY 21 4fin Reality - pobočka Most (IČ 06542107) , 4fin Reality neinzerující Centrála (podřízena Century 21) (IČ 06542107)
Uživatel tyto osobní údaje poskytuje dobrovolně a bere na vědomí, že součástí služeb Správce, které Správce Uživateli poskytuje, je vyhledání všech Uživateli vyhovujících (dle parametrů - cena, typ nemovitosti, lokalita atd.) nemovitostí. Správce za tímto účelem provozuje aplikace Hlídací pes a newsletter. Tyto služby je možné z každého zaslaného emailu odhlásit. Souhlas se zpracováním osobních údajů Uživatel poskytuje Správci na dobu neurčitou s tím, že svůj udělený souhlas může Uživatel kdykoliv na drese správce info@realitymix.cz odvolat. Správce garantuje Uživateli i další práva uvedené v ustanovení §11 a §21 zákoba č. 101/200 Sb. Ve znění pozdějších předpisů.
Více informací o zpracování údajů získáte zde (realitymix.cz/zasady-ochrany-osobnich-udaju)