Prodej zavedené komerční nemovitosti, Albrechtice u Lanškrouna
Exkluzivně nabízíme k prodeji zavedený domov seniorů včetně kompletního vybavení, který představuje jedinečnou investiční příležitost s možností okamžitého pokračování provozu a generování zisku.
Základní informace o nemovitosti
Pozemek: 3.942 m² (možnost další výstavby)
Zastavěná plocha hlavní budovy: 390 m²
Užitná plocha: 930 m²
Budova má 3 nadzemní podlaží
Součástí jsou také nebytové prostory a samostatná garsoniéra (2+1, cca 40 m²)
Nemovitost prošla rekonstrukcí
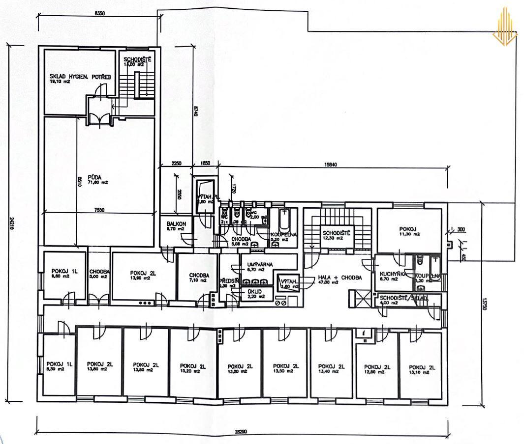
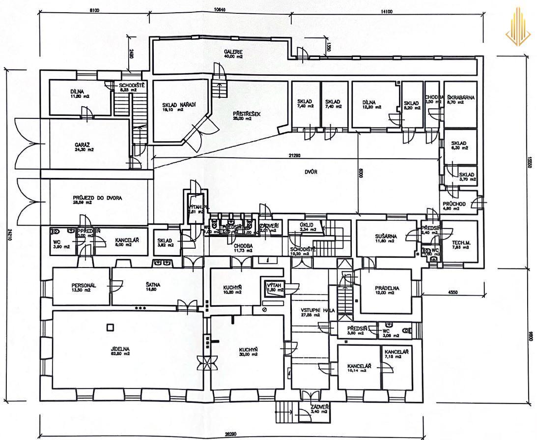
Dispozice a provoz
1. nadzemní podlaží:
jídelna
kuchyně
technické zázemí
kanceláře a šatny
2. a 3. podlaží:
pokoje klientů
umývárny
společenské místnosti
Objekt je plně vybaven, včetně pokojů se speciálními zdravotnickými lůžky a zázemím pro péči.
Technické parametry
Vytápění: infrapanely
Voda: 2 vrtané studny s čerpadly
Plyn: není zaveden
Vnitřní výtah pro komfort klientů
Bezbariérový přístup + venkovní rampa až do nejvyššího patra
Další zázemí
Součástí objektu je garsoniéra (2+1, cca 40 m²) vhodná pro:
majitele
správce objektu
personál
Vytápění zde zajišťuje elektrokotel, v obývacím pokoji jsou navíc kamna pro příjemnou atmosféru.
Investiční potenciál
Zavedený provoz s možností okamžitého převzetí včetně personálu
Stabilní a rostoucí segment (sociální služby)
Možnost dalšího rozšíření díky velikosti pozemku
Nemovitost však není vázána pouze na provoz domova seniorů:
lze ji přestavět na bytové jednotky,
případně po větších úpravách i na apartmánový dům či ubytovací zařízení.
Lokalita
6 km od Lanškrouna
31 km od Žamberka
70 km od Olomouce
Klidná lokalita s dobrou dostupností, ideální pro sociální služby i rezidenční využití.
Uživatel serveru RealityMIX.cz (dále jen „Server“) dostupného na internetové adrese (URL) https://www.realitymix.cz, který provozuje společnost DALTEN media s.r.o., se sídlem Na Harfě 916/9a, Praha 9, 190 00, IČO: 271 35 306 (dále jen „Správce“) jako provozovateli tohoto Serveru uděluje svůj výslovný souhlas v souladu s ustanovením § 5 zákona č. 101/2000 Sb. O ochraně osobních údajů a o změně některých zákonů, v platném znění (dále jen „zákon o ochraně osobních údajů“), se zpracováním uživatelem poskytnutých osobních údajů a dalších dat.
Uživatel poskytuje Správci osobní údaje v rozsahu: jméno, příjmení, e-mailová adresa, telefonický kontakt a další data, a to z důvodu projeveného zájmu o nemovitost, kde prostřednictvím služby Serveru Správce osloví Uživatel inzerenta uvedeného v detailu
nemovitosti - Prime Living s.r.o. (IČ 23026898) se zájmem o jeho služby.
Uživatel tyto osobní údaje poskytuje dobrovolně a bere na vědomí, že součástí služeb Správce, které Správce Uživateli poskytuje, je vyhledání všech Uživateli vyhovujících (dle parametrů - cena, typ nemovitosti, lokalita atd.) nemovitostí. Správce za tímto účelem provozuje aplikace Hlídací pes a newsletter. Tyto služby je možné z každého zaslaného emailu odhlásit. Souhlas se zpracováním osobních údajů Uživatel poskytuje Správci na dobu neurčitou s tím, že svůj udělený souhlas může Uživatel kdykoliv na drese správce info@realitymix.cz odvolat. Správce garantuje Uživateli i další práva uvedené v ustanovení §11 a §21 zákoba č. 101/200 Sb. Ve znění pozdějších předpisů.
Více informací o zpracování údajů získáte zde (realitymix.cz/zasady-ochrany-osobnich-udaju)