Pronájem nebytových prostor na ul. Středová, Albrechtice u ČT
Nabízíme k pronájmu soubor nebytových prostorů, tvořené skladovacími prostory, sociálním zařízením a expedicí. (ideální např. pro E-shop, vstup přímo z ulice).
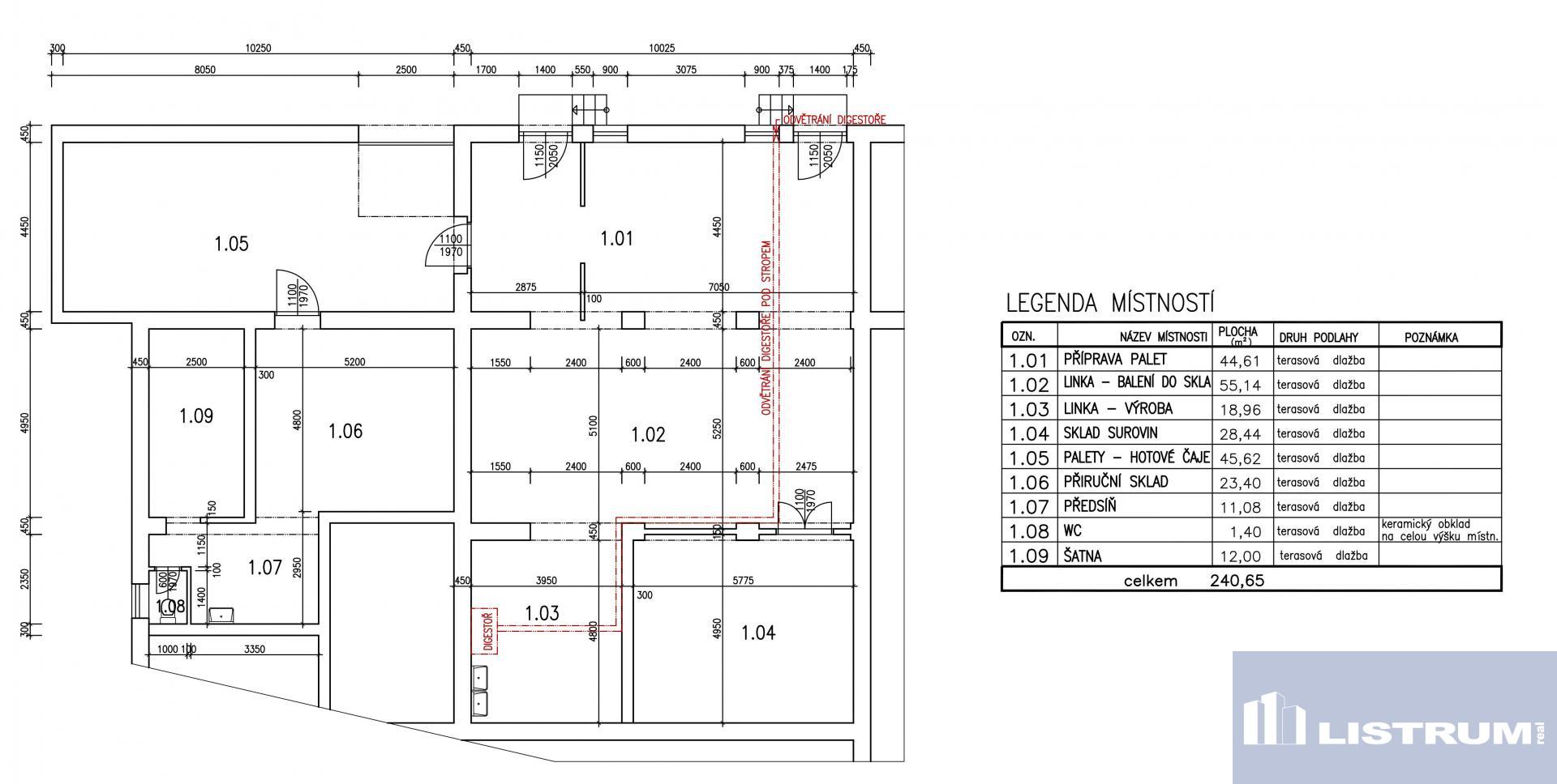
Prostory mají celkovou plochu cca. 240 m2. Možno pronajmout pouze jako celek. Výška stropu cca. 2,5 m, únosnost podlahy 3.000 kg/m2.
Možno využívat pro skladování, lehkou výrobu, apod. Sekční vjezdová vrata jsou dimenzována na dodávku a výška nákladové hrany cca. 1 metr.
Topení je řešeno centrálním vytápěním celé budovy.
Samostatné měření elektřiny a vody. Příkon elektřiny 3 x 80A.
Velmi dobrý technický stav, kdy objekt je z větší části po rekonstrukci.
Parkování na vlastním parkovišti u objektu dimenzováno na dodávky. Dojezd z Havířova MHD.
Nízké náklady na vytápění z důvodu vlastní kotelny.
K dispozici ihned.
Majitelem nebyl doposud předložen PENB, proto uvádíme hodnotu G.
Měsíční nájemné 88,-Kč/m2/měs + zálohy na energie (voda, teplo, elektřina), kauce 3 měsíční nájem,-Kč, provize RK ve výši měsíčního nájmu + DPH.
Uživatel serveru RealityMIX.cz (dále jen „Server“) dostupného na internetové adrese (URL) https://www.realitymix.cz, který provozuje společnost DALTEN media s.r.o., se sídlem Na Harfě 916/9a, Praha 9, 190 00, IČO: 271 35 306 (dále jen „Správce“) jako provozovateli tohoto Serveru uděluje svůj výslovný souhlas v souladu s ustanovením § 5 zákona č. 101/2000 Sb. O ochraně osobních údajů a o změně některých zákonů, v platném znění (dále jen „zákon o ochraně osobních údajů“), se zpracováním uživatelem poskytnutých osobních údajů a dalších dat.
Uživatel poskytuje Správci osobní údaje v rozsahu: jméno, příjmení, e-mailová adresa, telefonický kontakt a další data, a to z důvodu projeveného zájmu o nemovitost, kde prostřednictvím služby Serveru Správce osloví Uživatel inzerenta uvedeného v detailu
nemovitosti - Listrum real s.r.o. (IČ 27812332) se zájmem o jeho služby.
Uživatel tyto osobní údaje poskytuje dobrovolně a bere na vědomí, že součástí služeb Správce, které Správce Uživateli poskytuje, je vyhledání všech Uživateli vyhovujících (dle parametrů - cena, typ nemovitosti, lokalita atd.) nemovitostí. Správce za tímto účelem provozuje aplikace Hlídací pes a newsletter. Tyto služby je možné z každého zaslaného emailu odhlásit. Souhlas se zpracováním osobních údajů Uživatel poskytuje Správci na dobu neurčitou s tím, že svůj udělený souhlas může Uživatel kdykoliv na drese správce info@realitymix.cz odvolat. Správce garantuje Uživateli i další práva uvedené v ustanovení §11 a §21 zákoba č. 101/200 Sb. Ve znění pozdějších předpisů.
Více informací o zpracování údajů získáte zde (realitymix.cz/zasady-ochrany-osobnich-udaju)