Prodej pozemku pro výstavbu celoročně obytného domu – skvělá alternativa rodinného bydlení v přírodě
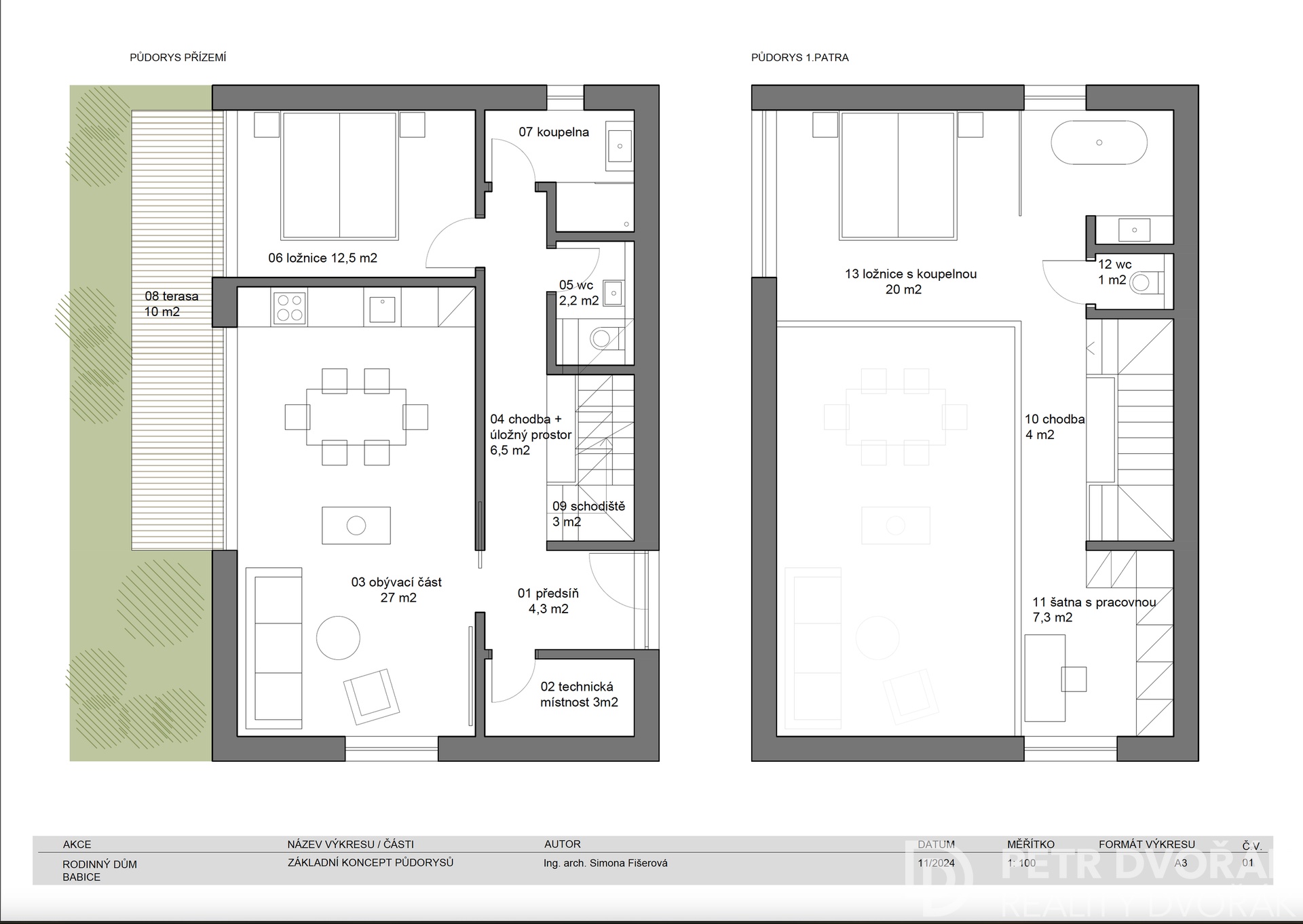
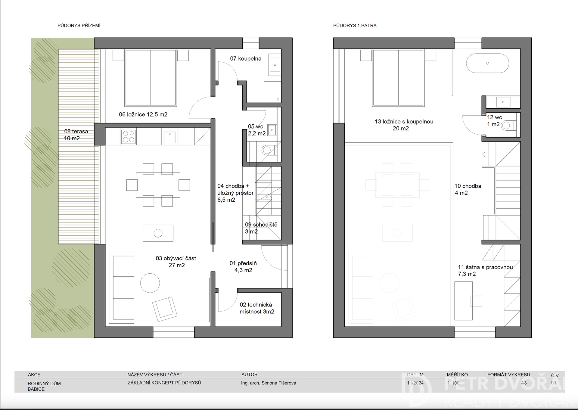
Nabízíme pozemek o velikosti 470 m² v atraktivní lokalitě obce Babice u Říčan. Na pozemku se nachází chata o zastavěné ploše 58 m², která je určena k demolici. Skutečnou hodnotou této nabídky je pozemek s možností výstavby nového celoročně obytného domu o zastavěné ploše až 80 m² a podlahové ploše až 160 m² při dvou podlažích. Jedná se o ideální příležitost pro ty, kteří hledají trvalé bydlení v přírodě s výbornou dostupností do Prahy.
Jedinečné umístění v sousedství školy Open Gate
Pozemek sousedí s otevřeným prostranstvím prestižní školy Open Gate, kde se volně pasou koně, což vytváří klidné a výjimečné prostředí. Lokalita kombinuje blízkost přírody s perfektní dostupností – autem jste v centru Prahy do 30 minut, vlakem z Kolovrat za 20 minut. Do Kolovrat je to 10 minut jízdy autem.
Technické parametry a infrastruktura
Elektřina: 220 V i 380 V (přívod do spodní části)
Voda: Vlastní vrt i kopaná studna
Odpad: Septik o kapacitě 1,5 m³
Oplocený pozemek s vrátky přímo k výběhu koní
Zděný bazén 5 × 4 m (připravený k obnově)
Možnost trvalého pobytu – evidenční číslo
Komfortní zázemí a občanská vybavenost
Obec Babice nabízí obchod s potravinami, kavárnu, hospodu, tenisové kurty, rugbyové hřiště i celoroční plavecký bazén ve škole Open Gate. Jedná se o lokalitu, která nabízí nejen klid a přírodu, ale i pohodlné zázemí pro každodenní život.
Možnosti výstavby dle vašich představ
V galerii naleznete inspiraci pro výstavbu moderního domu s otevřeným loftovým konceptem a pochozí střechou, která může sloužit jako terasa. Alternativou je tradiční řešení se sedlovou střechou a dalším pokojem, které může lépe vyhovovat rodinnému bydlení.
Prohlídky a kontakt
Prohlídky probíhají výhradně v sobotu odpoledne, pouze po předchozí domluvě. Vyhrazeno pro vážné zájemce.
Takové příležitosti se objevují zřídka – pozemek s výjimečnou atmosférou a potenciálem pro moderní celoroční bydlení. Nečekejte, až ho objeví někdo jiný – kontaktujte nás ještě dnes.
Pomocí naší hypoteční kalkulačky si můžete udělat orientační představu o výši měsíčních splátek hypotéky. O vše ostatní se pak postaráme my ve spolupráci s našimi obchodními partnery.
12 548 Kč
* Odhadovaná měsíční splátka vychází z výše úvěru Kč s pevnou úrokovou sazbou % po celou dobu trvání úvěru.
Uživatel serveru RealityMIX.cz (dále jen „Server“) dostupného na internetové adrese (URL) https://www.realitymix.cz, který provozuje společnost DALTEN media s.r.o., se sídlem Na Harfě 916/9a, Praha 9, 190 00, IČO: 271 35 306 (dále jen „Správce“) jako provozovateli tohoto Serveru uděluje svůj výslovný souhlas v souladu s ustanovením § 5 zákona č. 101/2000 Sb. O ochraně osobních údajů a o změně některých zákonů, v platném znění (dále jen „zákon o ochraně osobních údajů“), se zpracováním uživatelem poskytnutých osobních údajů a dalších dat.
Uživatel poskytuje Správci osobní údaje v rozsahu: jméno, příjmení, e-mailová adresa, telefonický kontakt a další data, a to z důvodu projeveného zájmu o nemovitost, kde prostřednictvím služby Serveru Správce osloví Uživatel inzerenta uvedeného v detailu
nemovitosti - Reality Dvořák s.r.o. (IČ 04643445) se zájmem o jeho služby.
Uživatel tyto osobní údaje poskytuje dobrovolně a bere na vědomí, že součástí služeb Správce, které Správce Uživateli poskytuje, je vyhledání všech Uživateli vyhovujících (dle parametrů - cena, typ nemovitosti, lokalita atd.) nemovitostí. Správce za tímto účelem provozuje aplikace Hlídací pes a newsletter. Tyto služby je možné z každého zaslaného emailu odhlásit. Souhlas se zpracováním osobních údajů Uživatel poskytuje Správci na dobu neurčitou s tím, že svůj udělený souhlas může Uživatel kdykoliv na drese správce info@realitymix.cz odvolat. Správce garantuje Uživateli i další práva uvedené v ustanovení §11 a §21 zákoba č. 101/200 Sb. Ve znění pozdějších předpisů.
Více informací o zpracování údajů získáte zde (realitymix.cz/zasady-ochrany-osobnich-udaju)