Naše společnost Vám zprostředkuje možný prodej RD v obci Bechlín napůl cesty od Roudnice nad Labem a z druhé strany Štětí. Dům je mimo hlavní komunikaci umístěn v zástavbě jiných domů.
Na pozemku se nachází kromě tohoto patrového prostorného domu i několik přístavků, které byli využívány jako dílny, či prádelna, dále obrovská stodola, garáž a sklep.
Dle získaných informací víme, že dům je více 100 let starý, přístavba domu byla přistavěna v letech sedmdesátých.
Střecha na domě má cca 15 let novou krytinu, nad stodolou je půl střechy nové, druhá polovina přeložena. Stodola je průchozí z obou stran, takže z ulice se do ní dostaneme.
Dům je napojen na kanalizaci. Vodovodní přípojka je před domem, pitná voda je odebírána ze studny. Přípojka plynu je taktéž na domě.
Dům je vytápěn kotlem na tuhá paliva a ohřev vody bojlerem.
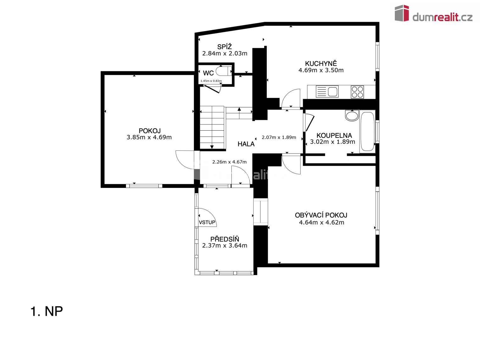
V 1 NP jsou dispozice 2+1 dle matterportu o velikosti 90 m², a to ložnice, obývací pokoj, kuchyně s jídelnou a koupelna s vanou, kde je umístěn i zmíněny kotel. Za kuchyní je malá místnost, využívána jako špajz, je zde přístup ke studni a bojleru.
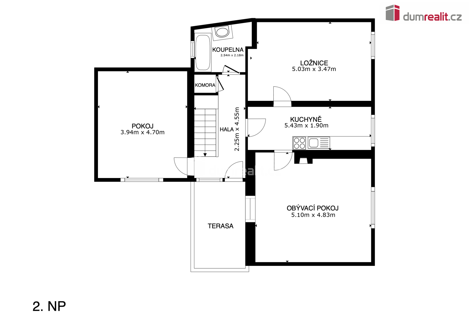
V 2 NP je dispozice 3+1 dle matterportu o velikosti 86 m², a to dvě ložnice, obývací pokoj, kuchyně, koupelna s vanou.
WC je v domě jedno a to v mezipatře před výstupem po dřevěném schodišti do patra.
Podlahy jsou převážně betonové ( v jedné místnosti zůstal rákosový strop ) s podlahovou krytinou jako je linoleum, dlažba nebo dřevo.
Okna jsou již převážně plastová vyměněna cca před 3 roky v oboustranném dřevodekoru.
Tento dům ohraničen cihlovou zdí a přístavkama krásně lemuje pozemek se záhrádkou cca 299 m² a dvorek. Zastavěná plocha na pozemku je 728 m² do čehož jsou započítány kromě domu i přístavby a stodola.
Dům pro velkou rodinu nejlépe s podnikatelským záměrem, kdy využijete velkou stodolu, po shlédnutí matterportu, Vám ráda osobně představí a ukáže makléřka nemovitosti Jana Čmejlová.
V případě zájmu o prohlídku kontaktujte makléřku nemovitosti Janu Čmejlovou, která s Vámi ráda naplánuje prohlídku. Ev. číslo: 651748.
Pomocí naší hypoteční kalkulačky si můžete udělat orientační představu o výši měsíčních splátek hypotéky. O vše ostatní se pak postaráme my ve spolupráci s našimi obchodními partnery.
21 458 Kč
* Odhadovaná měsíční splátka vychází z výše úvěru Kč s pevnou úrokovou sazbou % po celou dobu trvání úvěru.
Uživatel serveru RealityMIX.cz (dále jen „Server“) dostupného na internetové adrese (URL) https://www.realitymix.cz, který provozuje společnost DALTEN media s.r.o., se sídlem Na Harfě 916/9a, Praha 9, 190 00, IČO: 271 35 306 (dále jen „Správce“) jako provozovateli tohoto Serveru uděluje svůj výslovný souhlas v souladu s ustanovením § 5 zákona č. 101/2000 Sb. O ochraně osobních údajů a o změně některých zákonů, v platném znění (dále jen „zákon o ochraně osobních údajů“), se zpracováním uživatelem poskytnutých osobních údajů a dalších dat.
Uživatel poskytuje Správci osobní údaje v rozsahu: jméno, příjmení, e-mailová adresa, telefonický kontakt a další data, a to z důvodu projeveného zájmu o nemovitost, kde prostřednictvím služby Serveru Správce osloví Uživatel inzerenta uvedeného v detailu
nemovitosti - Dumrealit.cz (IČ 00537861) se zájmem o jeho služby. Tato společnost je součástí seskupení/sítě/franšízového modelu realitních kanceláří, jejich seznam můžete zobrazit kliknutím na tento odkaz.
Dumrealit.cz (IČ 00537861) , HOME 4 PEOPLE (IČ 29132886) , Reality 11 (IČ 29132886) , REAL ESTATE CZECH REPUBLIC a.s. (IČ 29132886) , Národní Realitní Holding a.s. (IČ 02918897)
Uživatel tyto osobní údaje poskytuje dobrovolně a bere na vědomí, že součástí služeb Správce, které Správce Uživateli poskytuje, je vyhledání všech Uživateli vyhovujících (dle parametrů - cena, typ nemovitosti, lokalita atd.) nemovitostí. Správce za tímto účelem provozuje aplikace Hlídací pes a newsletter. Tyto služby je možné z každého zaslaného emailu odhlásit. Souhlas se zpracováním osobních údajů Uživatel poskytuje Správci na dobu neurčitou s tím, že svůj udělený souhlas může Uživatel kdykoliv na drese správce info@realitymix.cz odvolat. Správce garantuje Uživateli i další práva uvedené v ustanovení §11 a §21 zákoba č. 101/200 Sb. Ve znění pozdějších předpisů.
Více informací o zpracování údajů získáte zde (realitymix.cz/zasady-ochrany-osobnich-udaju)