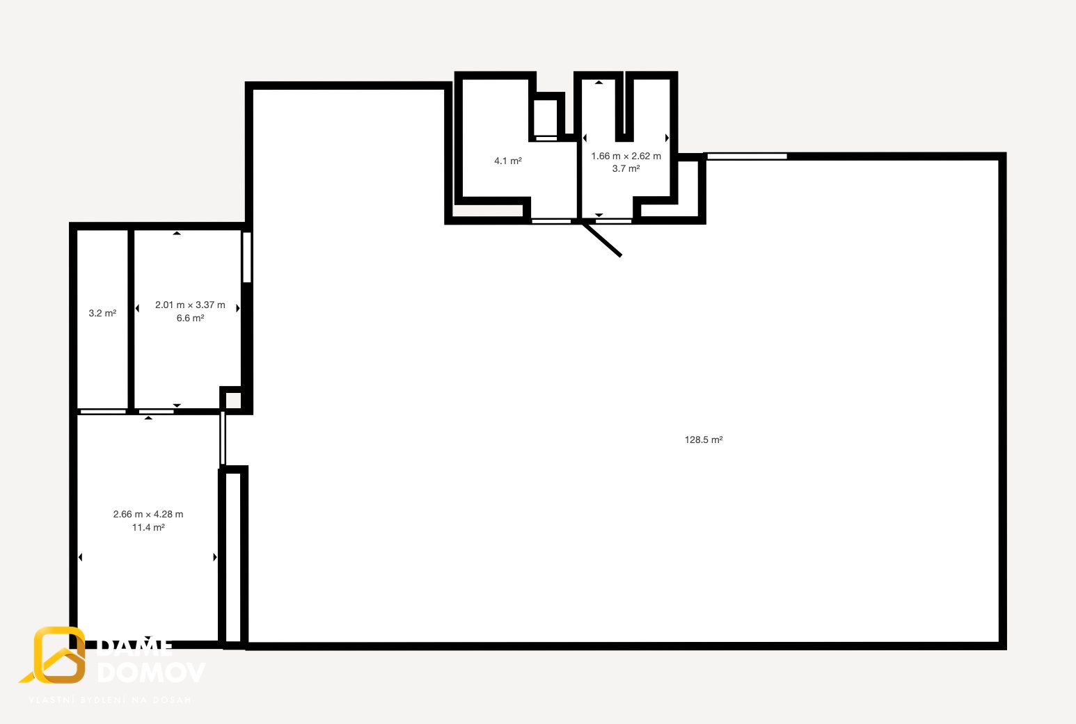
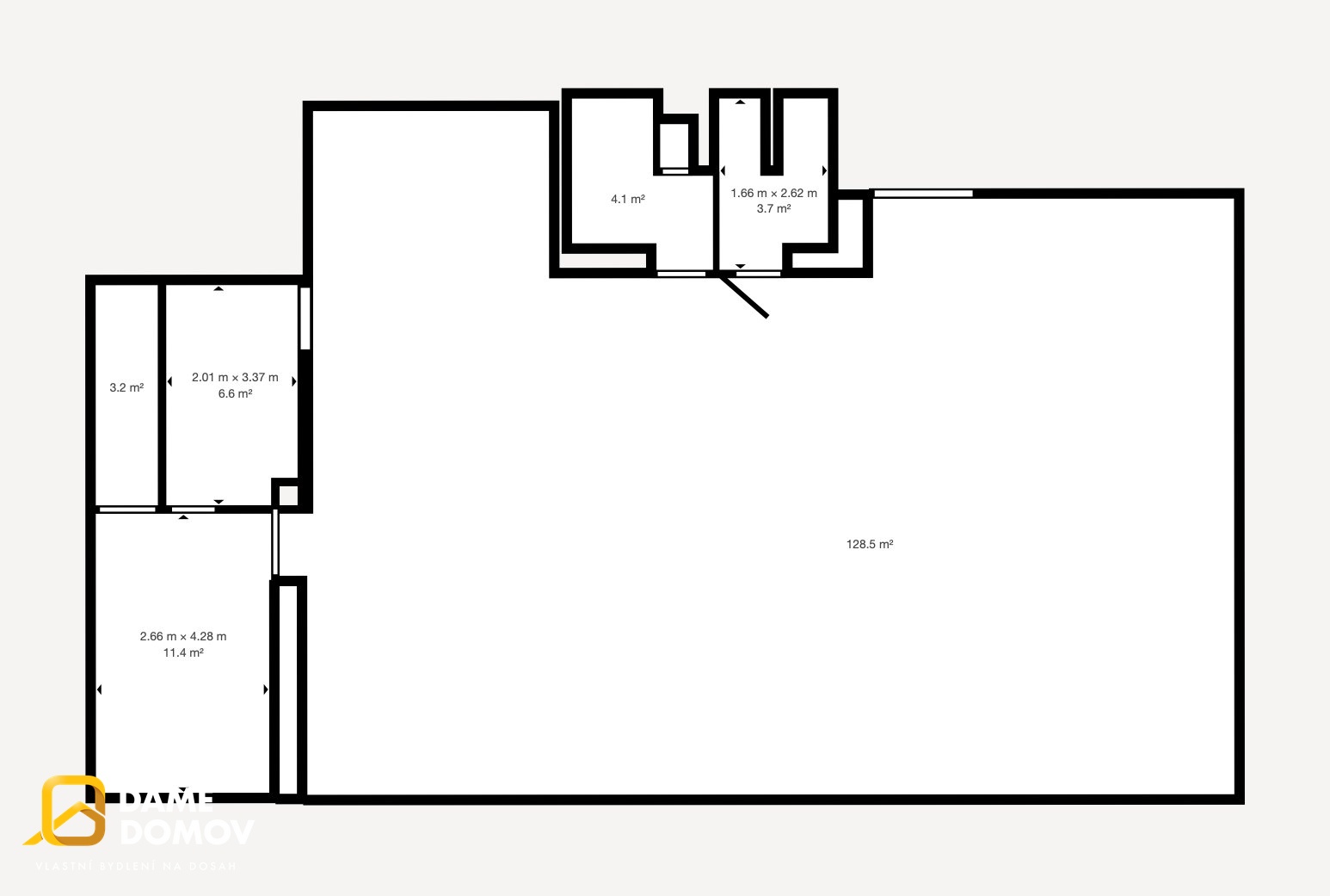
V obci Bělov, opravdu pár minut od Otrokovic, nabízíme k prodeji zajímavý objekt s bohatou historií – bývalou Bělovskou hospodu, dnes upravenou na dům s prostory pro uskladnění aut, nebo motorek a se zázemím.
Nemovitost je v dobrém technickém stavu a je napojena na elektřinu, obecní vodovod i kanalizaci. Dominantou je hlavní místnost – „sál“ – s vjezdem přes elektricky ovládaná vrata kde uskladníte až 15 aut nebo mnoho motocyklů. Dále je zde kancelář, kuchyňka, sociální zázemí (toalety, sprcha) a sklep. Bočním průchodem se dostanete na zadní dvorek, včetně úložného prostoru a vstupu na půdu, která nabízí možnost rozšíření obytné či užitné části.
Současné využití objektu je ideální pro sběratele, nadšence do automobilů a motorek, nebo pro více vlastníků, kteří potřebují bezpečné a kryté parkování. Díky dispozici a poloze se po jednoduché úpravě nabízí i široké spektrum dalších možností pro Vaše potřeby. Rodinný dům pro bydlení, nebo pronájem, kombinace bydlení a podnikání, dílna, sklad, případně jiné činnosti pro veřejnost, nebo svou potřebu.
Bělov má základní občanskou vybavenost a výborné spojení – do Otrokovic pár minut, do Zlína cca 15 minut, rychlý nájezd na dálnici D55 směr Uherské Hradiště či Brno. Okolní příroda je ideální pro procházky a cyklovýlety.
Pokud Vás tato nabídka zaujala, neváhejte nás kontaktovat pro bližší informace k objektu, nebo domluvení prohlídky.
Pomocí naší hypoteční kalkulačky si můžete udělat orientační představu o výši měsíčních splátek hypotéky. O vše ostatní se pak postaráme my ve spolupráci s našimi obchodními partnery.
15 992 Kč
* Odhadovaná měsíční splátka vychází z výše úvěru Kč s pevnou úrokovou sazbou % po celou dobu trvání úvěru.
Uživatel serveru RealityMIX.cz (dále jen „Server“) dostupného na internetové adrese (URL) https://www.realitymix.cz, který provozuje společnost DALTEN media s.r.o., se sídlem Na Harfě 916/9a, Praha 9, 190 00, IČO: 271 35 306 (dále jen „Správce“) jako provozovateli tohoto Serveru uděluje svůj výslovný souhlas v souladu s ustanovením § 5 zákona č. 101/2000 Sb. O ochraně osobních údajů a o změně některých zákonů, v platném znění (dále jen „zákon o ochraně osobních údajů“), se zpracováním uživatelem poskytnutých osobních údajů a dalších dat.
Uživatel poskytuje Správci osobní údaje v rozsahu: jméno, příjmení, e-mailová adresa, telefonický kontakt a další data, a to z důvodu projeveného zájmu o nemovitost, kde prostřednictvím služby Serveru Správce osloví Uživatel inzerenta uvedeného v detailu
nemovitosti - Dáme domov s.r.o. (IČ 19369859) se zájmem o jeho služby.
Uživatel tyto osobní údaje poskytuje dobrovolně a bere na vědomí, že součástí služeb Správce, které Správce Uživateli poskytuje, je vyhledání všech Uživateli vyhovujících (dle parametrů - cena, typ nemovitosti, lokalita atd.) nemovitostí. Správce za tímto účelem provozuje aplikace Hlídací pes a newsletter. Tyto služby je možné z každého zaslaného emailu odhlásit. Souhlas se zpracováním osobních údajů Uživatel poskytuje Správci na dobu neurčitou s tím, že svůj udělený souhlas může Uživatel kdykoliv na drese správce info@realitymix.cz odvolat. Správce garantuje Uživateli i další práva uvedené v ustanovení §11 a §21 zákoba č. 101/200 Sb. Ve znění pozdějších předpisů.
Více informací o zpracování údajů získáte zde (realitymix.cz/zasady-ochrany-osobnich-udaju)