Upozornění: Tato nabídka je rezervována konkrétním zájemcem a v rezervační lhůtě není k dispozici! Byt o dispozici 3+kk a podlahové ploše 74 m² s e nachází v 1. nadzemním podlaží panelového domu.
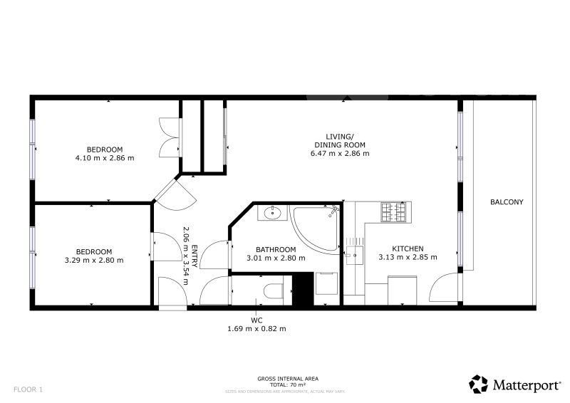
Po vstupu do bytu vás přivítá prostorná chodba, z níž je vlevo vstup do dvou neprůchozích pokojů.
Vpravo se nachází samostatné WC a velkorysá koupelna s vířivkou, místem pro pračku i sušičku.
Centrální částí bytu je obývací pokoj s moderním kuchyňským koutem, odkud je vstup na lodžii - ideální místo pro ranní kávu.
V roce 2024 prošel byt kompletní rekonstrukcí - opravdu od základu.
Byly provedeny nové rozvody elektřiny i vody, položeny nové podlahy, instalována klimatizace, kuchyňská linka se spotřebiči, nové dveře, koupelna i WC. Dispozice byla upravena tak, aby byt působil vzdušně, moderně a maximálně funkčně.
Byt se prodává vybavený - kuchyňská linka včetně spotřebičů, vestavěné skříně aj.
K bytu náleží sklep a parkování je možné přímo před domem.
Benátky nad Jizerou jsou menší město s kompletní občanskou vybaveností - v pěší vzdálenosti najdete Billa, Penny, Dolní náměstí s autobusovou zastávkou, školy, školky i další služby.
Díky své poloze mezi Prahou a Mladou Boleslaví patří k velmi vyhledávaným místům pro pohodlné rodinné bydlení.
Tento byt potěší každého, kdo hledá moderní, bezstarostné a klidné bydlení s výbornou dostupností.
Cena:
Rezervováno
Dispozice/podlahová plocha:
3+kk/74 m²
Číslo zakázky:
REALITYMIX-231825
Podrobné informace
Bezbariérový byt:ano
Dispozice bytu:3+kk
Číslo podlaží v domě:1
Počet podlaží objektu:4
Celková podlahová plocha:74 m²
Druh objektu:panelová
Stav objektu:velmi dobrý
Vlastnictví:osobní
Lodžie:6 m²
Vybaveno:ano
Umístění objektu:klidná část obce
Doprava:vlak, dálnice, silnice, MHD, autobus
Elektřina:Elektro - 230 V
Voda:Voda - dálkový vodovod
Telekomunikace:Telefon, Internet
Topení:Ústřední - dálkové
Odpad:Kanalizace
Ostatní rozvody:Satelit, Kabelová televize, Kabelové rozvody, Ostatní rozvody
Uživatel serveru RealityMIX.cz (dále jen „Server“) dostupného na internetové adrese (URL) https://www.realitymix.cz, který provozuje společnost DALTEN media s.r.o., se sídlem Na Harfě 916/9a, Praha 9, 190 00, IČO: 271 35 306 (dále jen „Správce“) jako provozovateli tohoto Serveru uděluje svůj výslovný souhlas v souladu s ustanovením § 5 zákona č. 101/2000 Sb. O ochraně osobních údajů a o změně některých zákonů, v platném znění (dále jen „zákon o ochraně osobních údajů“), se zpracováním uživatelem poskytnutých osobních údajů a dalších dat.
Uživatel poskytuje Správci osobní údaje v rozsahu: jméno, příjmení, e-mailová adresa, telefonický kontakt a další data, a to z důvodu projeveného zájmu o nemovitost, kde prostřednictvím služby Serveru Správce osloví Uživatel inzerenta uvedeného v detailu
nemovitosti - Bidli reality, a.s. (IČ 06790763) se zájmem o jeho služby. Tato společnost je součástí seskupení/sítě/franšízového modelu realitních kanceláří, jejich seznam můžete zobrazit kliknutím na tento odkaz.
Hypocentrum modré pyramidy - Praha (IČ ) , Hypocentrum modré pyramidy - Brno (IČ ) , Hypocentrum Modré pyramidy - Hradec Králové (IČ ) , Hypocentrum Modré pyramidy - České Budějovice (IČ ) , Hypocentrum Modré pyramidy - Pardubice (IČ ) , Hypocentrum Modré pyramidy - Plzeň (IČ ) , Hypocentrum Modré pyramidy - Ústí nad Labem (IČ ) , Hypocentrum Modré pyramidy - Ostrava (IČ ) , Hypocentrum Modré pyramidy - Olomouc (IČ ) , Bidli reality, a.s. (IČ 06790763)
Uživatel tyto osobní údaje poskytuje dobrovolně a bere na vědomí, že součástí služeb Správce, které Správce Uživateli poskytuje, je vyhledání všech Uživateli vyhovujících (dle parametrů - cena, typ nemovitosti, lokalita atd.) nemovitostí. Správce za tímto účelem provozuje aplikace Hlídací pes a newsletter. Tyto služby je možné z každého zaslaného emailu odhlásit. Souhlas se zpracováním osobních údajů Uživatel poskytuje Správci na dobu neurčitou s tím, že svůj udělený souhlas může Uživatel kdykoliv na drese správce info@realitymix.cz odvolat. Správce garantuje Uživateli i další práva uvedené v ustanovení §11 a §21 zákoba č. 101/200 Sb. Ve znění pozdějších předpisů.
Více informací o zpracování údajů získáte zde (realitymix.cz/zasady-ochrany-osobnich-udaju)