Pronájem částečně zařízeného 3+kk/T, park. stání, 75,7 m2, novostavba, Benešov, ul. Křižíkova
Nově uvolněno! K dispozici od 22.12.2025.
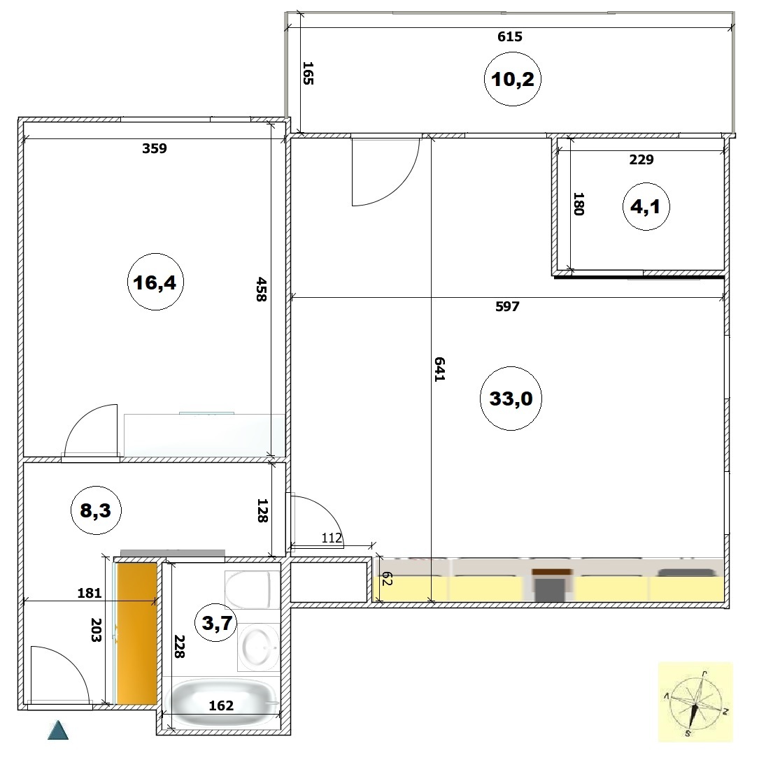
Nabízíme k pronájmu krásný, velmi světlý a dobře dispozičně vyřešený byt v novostavbě (kolaudace 2010), Benešov, ul. Křižíkova.
Zámecký park Konopiště 900 m od domu!
Velká terasa (10,2m2) s pergolou na jižní stranu. Parkovací stání se zamykací parkovací zábranou přímo u vchodu do domu. Absolutní klid a výborná dostupnost do Prahy (20 min. autem a 35 min. vlakem).
Byt 3+kk, 65,5 m2, terasa 10,2 m2 a sklep 2 m2, 2. patro ze 3. Velký obývací pokoj se čtyřmi okny a vstupem na terasu.
Částečně zařízený nábytkem - viz foto. Kuchyňská linka se sklokeramickou deskou, horkovzdušnou troubou, myčkou, digestoří a lednicí s mrazákem + místem pro pračku. Dvě vestavěné v předsíni a ložnici. Na podlahách dlažba a plovoucí laminát. Vytápění ÚT s digitálními měřiči. Koupelna s vanou a s WC. Orientace oken J a Z. K bytu náleží zděný sklep s plnými dveřmi – 2 m2. Kabelová televize a internet UPC (Vodafone). K dispozici kolárna x kočárkárna.
Veškerá občanská vybavenost v místě (MŠ, ZŠ, obchody, restaurace, nemocnice, golfové hřiště, fotbalový a hokejový stadion).
Cena: 20.000,-Kč + zálohy na služby 3.900,-Kč/3os. + elektřina cca 1.500,-Kč/měs. Vratná kauce 25.000,-Kč, provize pro RK 20.000,-Kč + 21%DPH.
K dispozici od 22.12.2025.
Cena:
19 990 Kč / (za měsíc)
Poznámka:
+ zálohy na služby 3.910,-Kč/3os. + elektřina cca 1.500,-Kč/měs. Vratná kauce 25.000,-Kč, provize pro RK 20.000,-Kč + 21%DPH.
Dispozice/podlahová plocha:
3+kk/68 m²
Číslo zakázky:
REALITYMIX-25337
Podrobné informace
Dispozice bytu:3+kk
Číslo podlaží v domě:3
Počet podlaží objektu:4
Užitná plocha:68 m²
Celková podlahová plocha:68 m²
Druh objektu:cihlová
Stav objektu:novostavba
Vlastnictví:osobní
Terasa:10 m²
Umístění objektu:klidná část obce
Elektřina:Elektro - 230 V, Elektro - 400 V
Voda:Voda - dálkový vodovod
Topení:Ústřední - dálkové
Energetická náročnost budovy:B - Velmi úsporná
Energetický ukazatel podle vyhlášky:č. 264/2020 Sb.
Uživatel serveru RealityMIX.cz (dále jen „Server“) dostupného na internetové adrese (URL) https://www.realitymix.cz, který provozuje společnost DALTEN media s.r.o., se sídlem Na Harfě 916/9a, Praha 9, 190 00, IČO: 271 35 306 (dále jen „Správce“) jako provozovateli tohoto Serveru uděluje svůj výslovný souhlas v souladu s ustanovením § 5 zákona č. 101/2000 Sb. O ochraně osobních údajů a o změně některých zákonů, v platném znění (dále jen „zákon o ochraně osobních údajů“), se zpracováním uživatelem poskytnutých osobních údajů a dalších dat.
Uživatel poskytuje Správci osobní údaje v rozsahu: jméno, příjmení, e-mailová adresa, telefonický kontakt a další data, a to z důvodu projeveného zájmu o nemovitost, kde prostřednictvím služby Serveru Správce osloví Uživatel inzerenta uvedeného v detailu
nemovitosti - BLANÍK REALITY s.r.o. (IČ 27657558) se zájmem o jeho služby.
Uživatel tyto osobní údaje poskytuje dobrovolně a bere na vědomí, že součástí služeb Správce, které Správce Uživateli poskytuje, je vyhledání všech Uživateli vyhovujících (dle parametrů - cena, typ nemovitosti, lokalita atd.) nemovitostí. Správce za tímto účelem provozuje aplikace Hlídací pes a newsletter. Tyto služby je možné z každého zaslaného emailu odhlásit. Souhlas se zpracováním osobních údajů Uživatel poskytuje Správci na dobu neurčitou s tím, že svůj udělený souhlas může Uživatel kdykoliv na drese správce info@realitymix.cz odvolat. Správce garantuje Uživateli i další práva uvedené v ustanovení §11 a §21 zákoba č. 101/200 Sb. Ve znění pozdějších předpisů.
Více informací o zpracování údajů získáte zde (realitymix.cz/zasady-ochrany-osobnich-udaju)