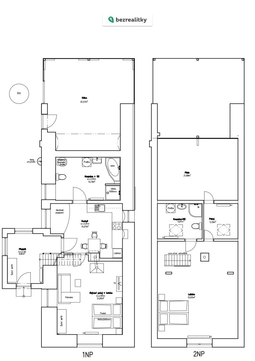
Nabízím k prodeji krásný zateplený kamenný dům v osobním vlastnictví, 20km od Písku, který se vyznačuje skvělou orientací na slunnou okrasnou zahradu s altánkem a komfortně zařízený byt s novou půdní vestavbou. Dům má dispozici 2+1 (třetí pokoj malý), obytná plocha 104m2 s dvěma koupelnami s WC a je ve velmi dobrém stavu. Dům je zateplen a vybaven. Vše to, co je vidět na fotografiích. Je k dispozici i nový interiérový návrh, který ještě více propojí bydlení se zahradou a změní nemovitost zcela v nadčasovou. Několik fotografií v náhledu.
Rozloha domu činí 128 m², přičemž se nemovitost pyšní i pozemkem, celková rozloha pozemku je 683 m². Upravená zahrad poskytuje dostatek prostoru pro zahradní aktivity či další možnosti využití. Provozní stránku zvyšuje možnost parkování přímo před domem, ale pohodlně si lze najet autem velkou bránou z ulice na nádherně zatravněnou plochu.
Energetický štítek budovy s označením B svědčí o její efektivní a úsporné provozní náročnosti. V nemovitosti najdete kvalitní řešení, která spojují historický charakter kamenné stavby s moderními standardy bydlení.
Vytápění je krbovými kamny na dřevo s výměníkem v prostoru obývací části. Nejenom, že rozvede teplo po celém domě, ale přes velké sklo kamen vytvoří příjemnou atmosféru, ideální pro posezení. Elektrická energie - E.ON. Dále je dům napojen na vodu ze studny a již nyní obec oznámila budoucí napojení na veřejný vodovod. Odpadní voda je odvedena do ČOV na pozemku. Okna plastová s izolačním dvojsklem, zateplení celého pláště budovy 10cm minerální vaty, 2 střešní okna.
Dům má obrovský potenciál, lze rozšířit o další přízemní i půdní pokoje (64m2). Ve 3D vizualizaci se změnou dispozice, se obývací část s kuchyní, krbem a jídelnou, přesouvá do výhodnější polohy pro ještě lepší propojení se zahradou a polohou altánku se zděným krbem. Neskutečně vzdušně na Vás bude působit posezení na centrální pohovce nad kterou je otevřený strop až do krovu. Dlouhé zasklení a pozice oken bude se světelnou atmosférou podtrhovat výhled na upravenou zahradu v plném Vašem soukromí, kam sousedé nevidí. Rozměry altánku jsou 6,5x3,6m, takže velice prostorný i třeba pro zaparkování auta nebo motorky.
Výborná dostupnost do Písku, Bechyně, Tábora, Českých Budějovic. Zastávka autobusu v obci. Tato nemovitost je určena výhradně přímým zájemcům o koupi. Na inzerát můžete také reagovat přímo na webu Bezrealitky.
Pomocí naší hypoteční kalkulačky si můžete udělat orientační představu o výši měsíčních splátek hypotéky. O vše ostatní se pak postaráme my ve spolupráci s našimi obchodními partnery.
22 268 Kč
* Odhadovaná měsíční splátka vychází z výše úvěru Kč s pevnou úrokovou sazbou % po celou dobu trvání úvěru.
reklama
reklama
Mapa
* Umístění na mapě je na základě GPS informací dodaných realitní kanceláří.
* Pozice na mapě je pouze orientační.
Souhlas se zpracováním osobních údajů
Uživatel serveru RealityMIX.cz (dále jen „Server“) dostupného na internetové adrese (URL) https://www.realitymix.cz, který provozuje společnost DALTEN media s.r.o., se sídlem Na Harfě 916/9a, Praha 9, 190 00, IČO: 271 35 306 (dále jen „Správce“) jako provozovateli tohoto Serveru uděluje svůj výslovný souhlas v souladu s ustanovením § 5 zákona č. 101/2000 Sb. O ochraně osobních údajů a o změně některých zákonů, v platném znění (dále jen „zákon o ochraně osobních údajů“), se zpracováním uživatelem poskytnutých osobních údajů a dalších dat.
Uživatel poskytuje Správci osobní údaje v rozsahu: jméno, příjmení, e-mailová adresa, telefonický kontakt a další data, a to z důvodu projeveného zájmu o nemovitost, kde prostřednictvím služby Serveru Správce osloví Uživatel inzerenta uvedeného v detailu
nemovitosti - Bezrealitky s.r.o. (IČ 08063168) se zájmem o jeho služby.
Uživatel tyto osobní údaje poskytuje dobrovolně a bere na vědomí, že součástí služeb Správce, které Správce Uživateli poskytuje, je vyhledání všech Uživateli vyhovujících (dle parametrů - cena, typ nemovitosti, lokalita atd.) nemovitostí. Správce za tímto účelem provozuje aplikace Hlídací pes a newsletter. Tyto služby je možné z každého zaslaného emailu odhlásit. Souhlas se zpracováním osobních údajů Uživatel poskytuje Správci na dobu neurčitou s tím, že svůj udělený souhlas může Uživatel kdykoliv na drese správce info@realitymix.cz odvolat. Správce garantuje Uživateli i další práva uvedené v ustanovení §11 a §21 zákoba č. 101/200 Sb. Ve znění pozdějších předpisů.
Více informací o zpracování údajů získáte zde (realitymix.cz/zasady-ochrany-osobnich-udaju)