Nabízíme k prodeji zateplený patrový kamenný dům v klidné části obce Svatkovice u Bernartic, který díky skvělé orientaci působí velmi slunně a příjemně. Obec se nachází přibližně 20 km od Písku.
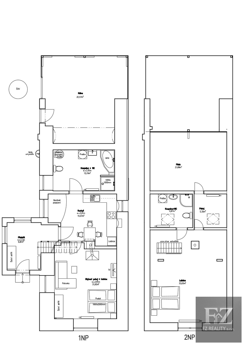
Celková plocha pozemku činí 675 m². Dům má dispozici 2+1 a užitnou plochu 104 m² s možností rozšíření o další dva pokoje (jeden v přízemí a druhý v podkroví) a navýšení užitné plochy o dalších cca 54 m². V přízemí se nachází prostorná předsíň, obývací pokoj, kuchyň a koupelna s vanou, sprchovým koutem a WC. V patře je velká obytná místnost, další menší pokoj a druhá koupelna s toaletou.
Vytápění celého domu zajišťují krbová kamna na dřevo s výměníkem a rozvodem do radiátorů, která kromě úsporného provozu vytváří i příjemnou atmosféru v obývacím pokoji. Nemovitost je napojena na elektřinu, odpad je řešen domácí ČOV na pozemku a voda je ze studny, přičemž v obci je plánovaná výstavba veřejného vodovodu.
Dům je osazen plastovými okny s izolačním dvojsklem, je zateplen (cca 10 cm minerální vaty) a energetická náročnost budovy je ve třídě B, což zaručuje nízké provozní náklady.
K domu náleží slunná okrasná zahrada o rozloze 550 m² s prostorným altánkem s krbem (cca 6,5 × 3,6 m) a bazénem, která je díky své poloze a okolnímu krytí velmi soukromá – působí „uzavřeně“ ze všech stran a nabízí tak ideální místo pro nerušený relax, rodinné posezení i zázemí pro volný čas. Parkování je možné před domem i po vjezdu velkou bránou na pozemek.
Velkou výhodou je právě potenciál budoucího rozšíření – v obou podlažích lze vytvořit další pokoje (orientačně až cca 54 m²). K dispozici máme i návrhy úprav dispozice a 3D vizualizaci, které ještě více propojí bydlení se zahradou a posunou nemovitost směrem k nadčasovému modernímu stylu.
V případě zájmu o bližší informace či prohlídku nás neváhejte kontaktovat.
Pomocí naší hypoteční kalkulačky si můžete udělat orientační představu o výši měsíčních splátek hypotéky. O vše ostatní se pak postaráme my ve spolupráci s našimi obchodními partnery.
22 268 Kč
* Odhadovaná měsíční splátka vychází z výše úvěru Kč s pevnou úrokovou sazbou % po celou dobu trvání úvěru.
Uživatel serveru RealityMIX.cz (dále jen „Server“) dostupného na internetové adrese (URL) https://www.realitymix.cz, který provozuje společnost DALTEN media s.r.o., se sídlem Na Harfě 916/9a, Praha 9, 190 00, IČO: 271 35 306 (dále jen „Správce“) jako provozovateli tohoto Serveru uděluje svůj výslovný souhlas v souladu s ustanovením § 5 zákona č. 101/2000 Sb. O ochraně osobních údajů a o změně některých zákonů, v platném znění (dále jen „zákon o ochraně osobních údajů“), se zpracováním uživatelem poskytnutých osobních údajů a dalších dat.
Uživatel poskytuje Správci osobní údaje v rozsahu: jméno, příjmení, e-mailová adresa, telefonický kontakt a další data, a to z důvodu projeveného zájmu o nemovitost, kde prostřednictvím služby Serveru Správce osloví Uživatel inzerenta uvedeného v detailu
nemovitosti - FZ REALITY s.r.o. (IČ 23231921) se zájmem o jeho služby.
Uživatel tyto osobní údaje poskytuje dobrovolně a bere na vědomí, že součástí služeb Správce, které Správce Uživateli poskytuje, je vyhledání všech Uživateli vyhovujících (dle parametrů - cena, typ nemovitosti, lokalita atd.) nemovitostí. Správce za tímto účelem provozuje aplikace Hlídací pes a newsletter. Tyto služby je možné z každého zaslaného emailu odhlásit. Souhlas se zpracováním osobních údajů Uživatel poskytuje Správci na dobu neurčitou s tím, že svůj udělený souhlas může Uživatel kdykoliv na drese správce info@realitymix.cz odvolat. Správce garantuje Uživateli i další práva uvedené v ustanovení §11 a §21 zákoba č. 101/200 Sb. Ve znění pozdějších předpisů.
Více informací o zpracování údajů získáte zde (realitymix.cz/zasady-ochrany-osobnich-udaju)