Tato nabídka představuje ideální investiční příležitost pro podnikatele, developery i firmy, které chtějí okamžitě realizovat svůj projekt bez zdlouhavého povolovacího procesu.
SCHVÁLENÝ PROJEKT
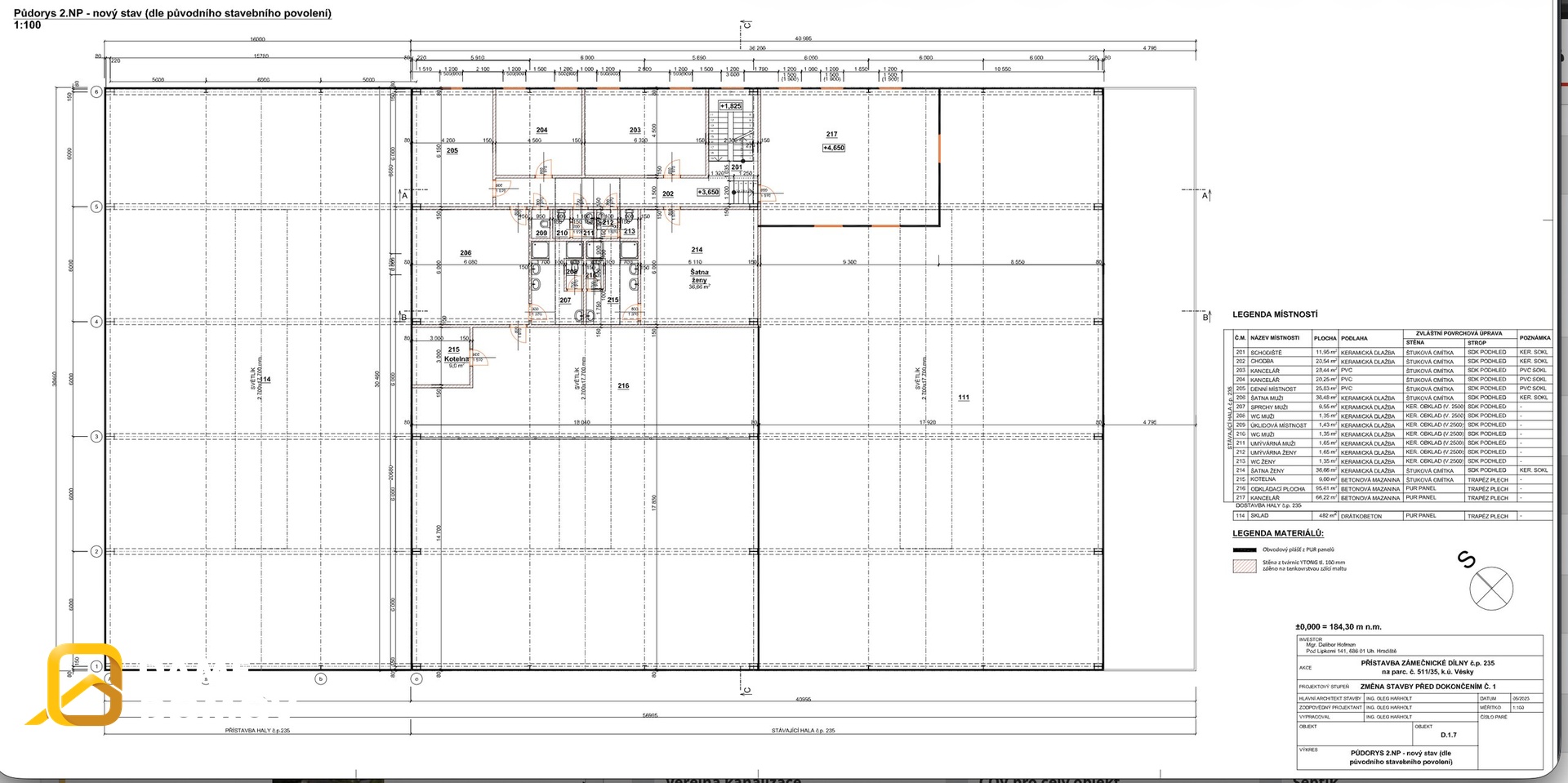
Součástí prodeje je kompletní projektová dokumentace a vydané stavební povolení na:
výrobní halu s administrativním zázemím.
Projekt počítá s moderním výrobním zázemím doplněným o kanceláře, sociální zázemí a technické prostory.
HLAVNÍ VÝHODY
celková plocha 8 012 m²
platné stavební povolení – možnost ihned stavět
projekt výrobní haly + administrativa
strategická poloha v blízkosti hlavních tahů
výborná dostupnost pro logistiku i zaměstnance
vhodné pro výrobu, skladování, logistiku i kombinovaný provoz
INVESTIČNÍ POTENCIÁL
Díky připravenému projektu a vyřešené administrativě výrazně šetříte čas i náklady.
Pozemek je ideální pro:
výrobní areál
skladové prostory
logistické centrum
sídlo firmy s administrativou
ZÁVĚR
Pokud hledáte pozemek, kde můžete okamžitě začít stavět, bez čekání na povolení, je tato nabídka přesně pro vás.
Pro více informací, projektovou dokumentaci nebo domluvení prohlídky mě neváhejte kontaktovat.
Pomocí naší hypoteční kalkulačky si můžete udělat orientační představu o výši měsíčních splátek hypotéky. O vše ostatní se pak postaráme my ve spolupráci s našimi obchodními partnery.
47 735 Kč
* Odhadovaná měsíční splátka vychází z výše úvěru Kč s pevnou úrokovou sazbou % po celou dobu trvání úvěru.
Uživatel serveru RealityMIX.cz (dále jen „Server“) dostupného na internetové adrese (URL) https://www.realitymix.cz, který provozuje společnost DALTEN media s.r.o., se sídlem Na Harfě 916/9a, Praha 9, 190 00, IČO: 271 35 306 (dále jen „Správce“) jako provozovateli tohoto Serveru uděluje svůj výslovný souhlas v souladu s ustanovením § 5 zákona č. 101/2000 Sb. O ochraně osobních údajů a o změně některých zákonů, v platném znění (dále jen „zákon o ochraně osobních údajů“), se zpracováním uživatelem poskytnutých osobních údajů a dalších dat.
Uživatel poskytuje Správci osobní údaje v rozsahu: jméno, příjmení, e-mailová adresa, telefonický kontakt a další data, a to z důvodu projeveného zájmu o nemovitost, kde prostřednictvím služby Serveru Správce osloví Uživatel inzerenta uvedeného v detailu
nemovitosti - Dáme domov s.r.o. (IČ 19369859) se zájmem o jeho služby.
Uživatel tyto osobní údaje poskytuje dobrovolně a bere na vědomí, že součástí služeb Správce, které Správce Uživateli poskytuje, je vyhledání všech Uživateli vyhovujících (dle parametrů - cena, typ nemovitosti, lokalita atd.) nemovitostí. Správce za tímto účelem provozuje aplikace Hlídací pes a newsletter. Tyto služby je možné z každého zaslaného emailu odhlásit. Souhlas se zpracováním osobních údajů Uživatel poskytuje Správci na dobu neurčitou s tím, že svůj udělený souhlas může Uživatel kdykoliv na drese správce info@realitymix.cz odvolat. Správce garantuje Uživateli i další práva uvedené v ustanovení §11 a §21 zákoba č. 101/200 Sb. Ve znění pozdějších předpisů.
Více informací o zpracování údajů získáte zde (realitymix.cz/zasady-ochrany-osobnich-udaju)