Dnes vám ukážu byt, který zvenku působí docela nenápadně, ale uvnitř má víc prostoru, než byste čekali.
Původně šlo o klasickou 2+1 s 56 m², ale v roce 2014 prošel velkou proměnou.
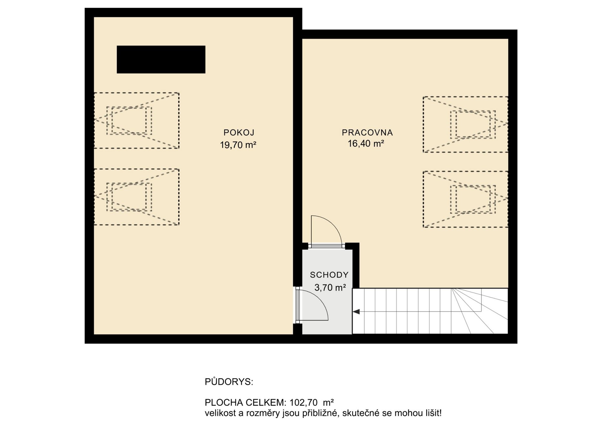
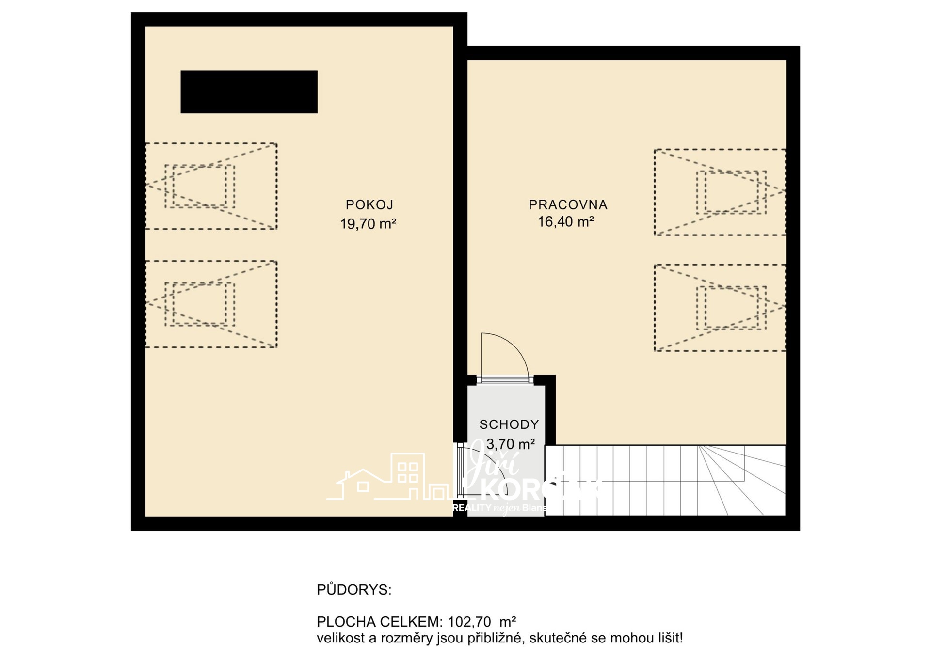
Díky přístavbě do podkroví se rozšířil na celkových přibližně 102 m² (dle prohlášení vlastníka) a vznikl z něj atraktivní prostorný mezonet.
V podkroví najdete dva samostatné pokoje, ideální třeba jako ložnice a dětský pokoj nebo pracovna.
V dolním patře je velký obývací pokoj volně navazující na kuchyní, kde se pohodlně sejde celá rodina.
Tenhle byt najdete v ulici Mahenova, v klidné části Blanska, kde je přitom vše na dosah.
Jen pár minut chůze odtud máte centrum města, obchody, školu, školku i poštu.
Pro ty, kdo dojíždějí, je to ideální místo — vlakové i autobusové nádraží jsou vzdálené do deseti minut pěšky.
Ať už míříte do Brna nebo kamkoli jinam, dopravní dostupnost je tu opravdu výborná.
K tomu prostorná koupelna, technická místnost a vlastní plynový kotel, takže si sami určujete,
kdy a jak topíte i ohříváte vodu.
Celý dům je klasický podsklepený cihlový objekt ze 70. let, se třemi podlažími, napojený na veřejný vodovod, kanalizaci, elektřinu i plyn.
Okolí domu je klidné, bez rušivých vlivů, se spoustou zeleně a pohodovým sousedstvím.
Pokud hledáte v Blansku byt s pořádným prostorem, dobrou adresou a atmosférou rodinného bydlení, tenhle mezonet na Mahenové si rozhodně zaslouží vaši pozornost.
Zavolejte mi, domluvíme si prohlídku — rád vám ho osobně ukážu.
Pomocí naší hypoteční kalkulačky si můžete udělat orientační představu o výši měsíčních splátek hypotéky. O vše ostatní se pak postaráme my ve spolupráci s našimi obchodními partnery.
31 568 Kč
* Odhadovaná měsíční splátka vychází z výše úvěru Kč s pevnou úrokovou sazbou % po celou dobu trvání úvěru.
Prodáváte nemovitost a potřebujete zjistit její reálnou hodnotu?
Uživatel serveru RealityMIX.cz (dále jen „Server“) dostupného na internetové adrese (URL) https://www.realitymix.cz, který provozuje společnost DALTEN media s.r.o., se sídlem Na Harfě 916/9a, Praha 9, 190 00, IČO: 271 35 306 (dále jen „Správce“) jako provozovateli tohoto Serveru uděluje svůj výslovný souhlas v souladu s ustanovením § 5 zákona č. 101/2000 Sb. O ochraně osobních údajů a o změně některých zákonů, v platném znění (dále jen „zákon o ochraně osobních údajů“), se zpracováním uživatelem poskytnutých osobních údajů a dalších dat.
Uživatel poskytuje Správci osobní údaje v rozsahu: jméno, příjmení, e-mailová adresa, telefonický kontakt a další data, a to z důvodu projeveného zájmu o nemovitost, kde prostřednictvím služby Serveru Správce osloví Uživatel inzerenta uvedeného v detailu
nemovitosti - Jiří Korčák - REALITY (IČ 75632381) se zájmem o jeho služby.
Uživatel tyto osobní údaje poskytuje dobrovolně a bere na vědomí, že součástí služeb Správce, které Správce Uživateli poskytuje, je vyhledání všech Uživateli vyhovujících (dle parametrů - cena, typ nemovitosti, lokalita atd.) nemovitostí. Správce za tímto účelem provozuje aplikace Hlídací pes a newsletter. Tyto služby je možné z každého zaslaného emailu odhlásit. Souhlas se zpracováním osobních údajů Uživatel poskytuje Správci na dobu neurčitou s tím, že svůj udělený souhlas může Uživatel kdykoliv na drese správce info@realitymix.cz odvolat. Správce garantuje Uživateli i další práva uvedené v ustanovení §11 a §21 zákoba č. 101/200 Sb. Ve znění pozdějších předpisů.
Více informací o zpracování údajů získáte zde (realitymix.cz/zasady-ochrany-osobnich-udaju)