Skladovací a administrativní prostory k pronájmu – Blansko, ul. Sušilova (Písečná)
K dispozici ihned
Hledáte prostory pro skladování, podnikání nebo administrativu v dobré dostupnosti z Brna?
Nabízíme k okamžitému pronájmu skladový a provozní objekt v Blansku, lokalita Písečná, na ulici Sušilova.
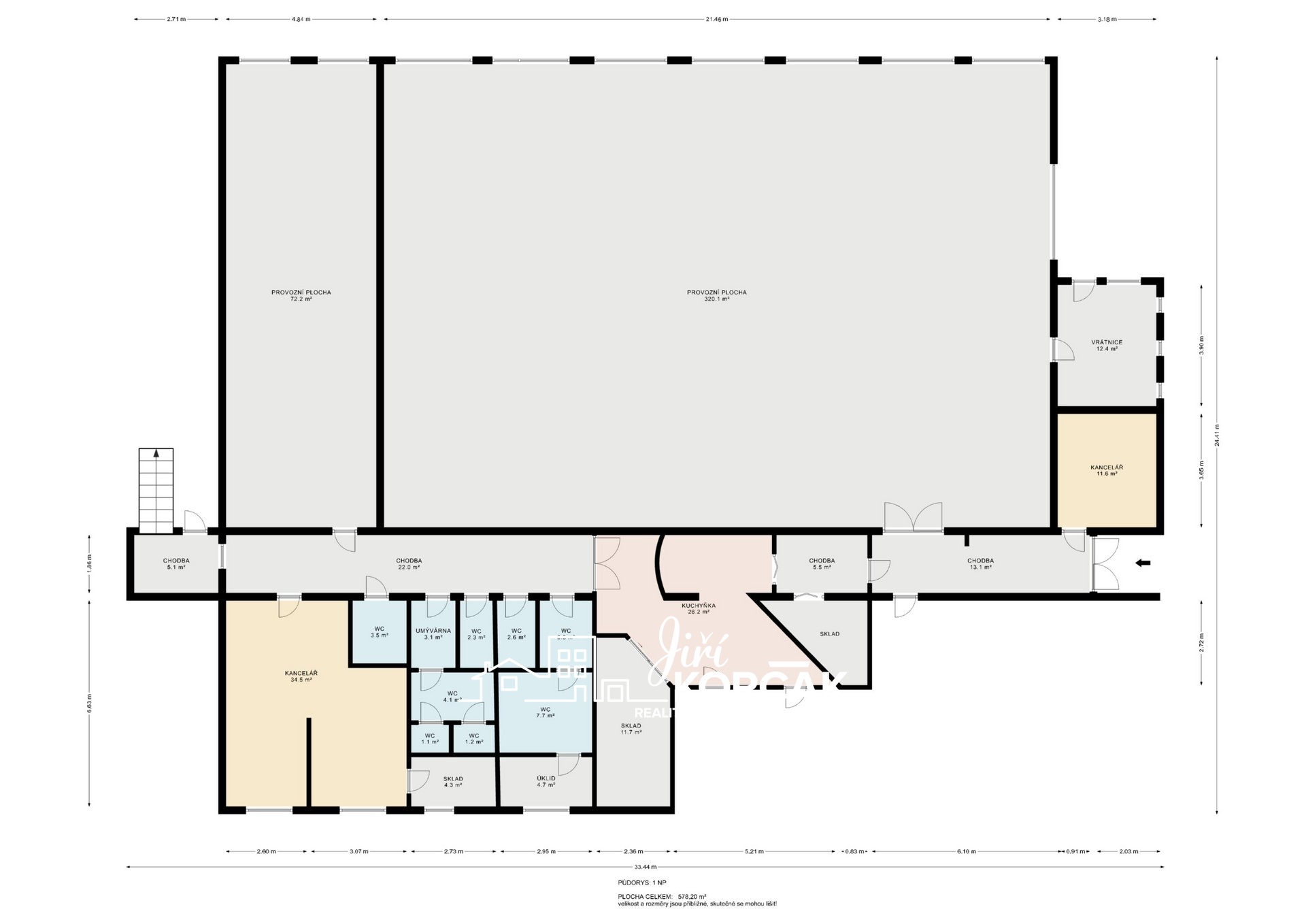
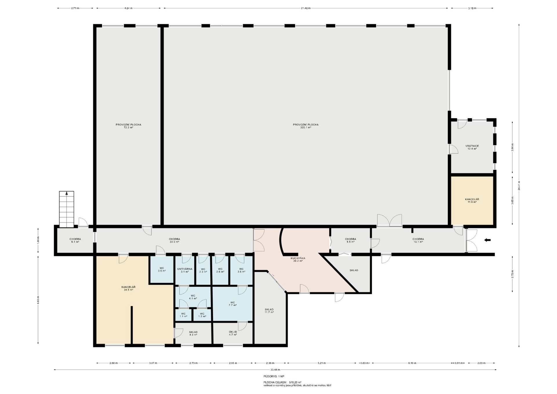
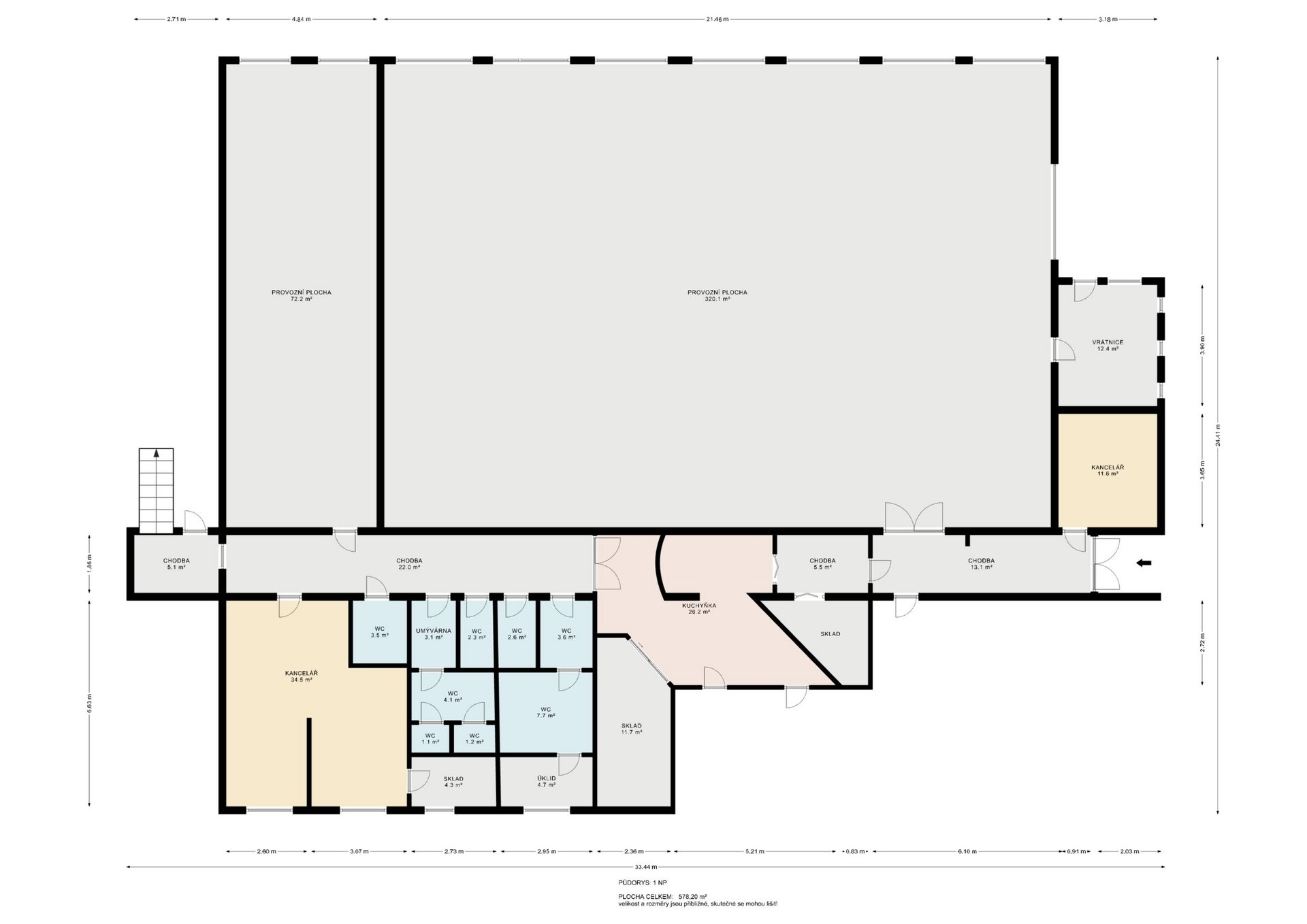
Dispozice objektu:
- Skladová hala o výměře 300 m² (rozměry 14,5 x 20,4 m) se světlou výškou 7,5 m
- Ideální pro uskladnění zboží na paletách (kapacita cca 300 palet)
- Hala je vybavena regálovým systémem a vysokozdvižným vozíkem – vše v ceně nájmu
Navazující prostor o velikosti 95 m² – vhodný jako sklad, dílna nebo administrativní zázemí.
Vjezdová vrata v úrovni terénu, elektrické ovládání
Další prostory:
- Kancelářské a provozní místnosti: 241 m²
- Sociální zařízení (včetně sprch): 38 m²
- Kuchyňka k dispozici
Vybavení a výhody:
- Betonová podlaha, sklad temperovaný
- ostatní prostory plně vytápěné (vlastní plynová kotelna)
- možnost umístění velkoplošného reklamního banneru na fasádě (v ceně)
- zpevněná parkovací plocha před objektem: 180 m²
Cena pronájmu:
Skladové prostory (400 m²) včetně regálů a VZV: 70 000 Kč/měsíc + energie
Ostatní prostory (280 m²): 20 000 Kč/měsíc + energie
Preferujeme pronájem jako celku, ale v případě zájmu je možné domluvit i částečný pronájem.
V případě zájmu lze halu pronajmout bez vybavení – cena bude upravena. (Demontáž regálů jde k tíži nájemce.)
Finanční podmínky:
Při podpisu nájemní smlouvy se skládají dvě vratné kauce a nájemné na následující měsíc.
Provize realitní kanceláře činí částku odpovídající jednomu měsíčnímu nájmu.
Zaujala vás tato nabídka?
Ozvěte se mi pro více informací nebo si rovnou domluvme prohlídku.
Rád vám prostory osobně ukážu a zodpovím všechny dotazy.
Uživatel serveru RealityMIX.cz (dále jen „Server“) dostupného na internetové adrese (URL) https://www.realitymix.cz, který provozuje společnost DALTEN media s.r.o., se sídlem Na Harfě 916/9a, Praha 9, 190 00, IČO: 271 35 306 (dále jen „Správce“) jako provozovateli tohoto Serveru uděluje svůj výslovný souhlas v souladu s ustanovením § 5 zákona č. 101/2000 Sb. O ochraně osobních údajů a o změně některých zákonů, v platném znění (dále jen „zákon o ochraně osobních údajů“), se zpracováním uživatelem poskytnutých osobních údajů a dalších dat.
Uživatel poskytuje Správci osobní údaje v rozsahu: jméno, příjmení, e-mailová adresa, telefonický kontakt a další data, a to z důvodu projeveného zájmu o nemovitost, kde prostřednictvím služby Serveru Správce osloví Uživatel inzerenta uvedeného v detailu
nemovitosti - Jiří Korčák - REALITY (IČ 75632381) se zájmem o jeho služby.
Uživatel tyto osobní údaje poskytuje dobrovolně a bere na vědomí, že součástí služeb Správce, které Správce Uživateli poskytuje, je vyhledání všech Uživateli vyhovujících (dle parametrů - cena, typ nemovitosti, lokalita atd.) nemovitostí. Správce za tímto účelem provozuje aplikace Hlídací pes a newsletter. Tyto služby je možné z každého zaslaného emailu odhlásit. Souhlas se zpracováním osobních údajů Uživatel poskytuje Správci na dobu neurčitou s tím, že svůj udělený souhlas může Uživatel kdykoliv na drese správce info@realitymix.cz odvolat. Správce garantuje Uživateli i další práva uvedené v ustanovení §11 a §21 zákoba č. 101/200 Sb. Ve znění pozdějších předpisů.
Více informací o zpracování údajů získáte zde (realitymix.cz/zasady-ochrany-osobnich-udaju)