Představujeme k prodeji rodinný dům s mimořádným potenciálem. Ideální volba pro investory, pro zájemce o prostorné rodinné bydlení, nebo jako kombinace bydlení a podnikání pod jednou střechou.
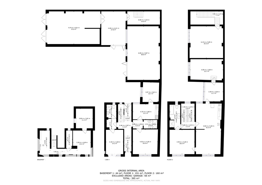
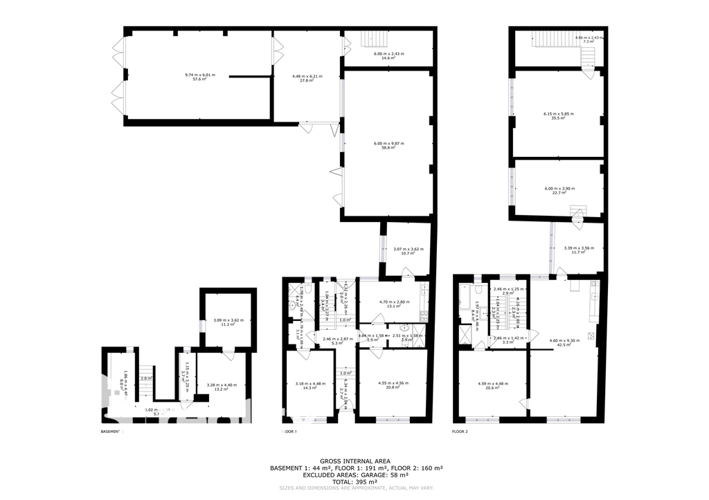
Nemovitost disponuje dvěma samostatnými bytovými jednotkami o dispozici 2+1(52m2) a 3+kk (105,9m2) a také nebytovým prostorem 1+kk (21,8m2), který je vhodný například pro menší kancelář, kosmetické nebo masážní studio, případně jako provozovna služeb. Tento prostor tak může generovat stabilní vedlejší příjem. Nebytový prostor nabízí také možnost změny užívání na bytovou jednotku. Jednotlivé byty jsou po rekonstrukci a bez nutných investic.
Součástí domu je prostorná garáž, která pohodlně pojme 4 automobily. Rodinný dům je navíc kompletně podsklepen, což poskytuje další úložný prostor. Dům nabízí také možnost rozšíření – součástí prodeje je také návrh projektové dokumentace na vybudování dalších dvou malometrážních bytových jednotek, což podstatně navyšuje investiční hodnotu celé nemovitosti. (projektová dokumentace je součástí ceny nemovitosti)
Významnou předností je strategická poloha. Ve fázi dokončení je nový úsek dálnice D1 (otevření 19.12. 2025), přičemž nejbližší nájezd od domu na dálnici je vzdálený přibližně 1,5 km. Díky tomu bude zajištěna rychlá a pohodlná dostupnost do Ostravy, Brna, Olomouce, Kroměříže i Prahy – velký benefit jak pro bydlení, tak budoucí podnikání.
Každá bytová jednotka má vlastní měřicí zařízení pro pohodlný a transparentní odečet energií. Veškerá elektroinstalace je v mědi, rozvody vody v plastu a odpadní vody jsou svedeny do kanalizace.
Nemovitost představuje skvělou příležitost s vysokým potenciálem růstu hodnoty. Pro více informací kontaktujte makléře.
Pomocí naší hypoteční kalkulačky si můžete udělat orientační představu o výši měsíčních splátek hypotéky. O vše ostatní se pak postaráme my ve spolupráci s našimi obchodními partnery.
32 349 Kč
* Odhadovaná měsíční splátka vychází z výše úvěru Kč s pevnou úrokovou sazbou % po celou dobu trvání úvěru.
Uživatel serveru RealityMIX.cz (dále jen „Server“) dostupného na internetové adrese (URL) https://www.realitymix.cz, který provozuje společnost DALTEN media s.r.o., se sídlem Na Harfě 916/9a, Praha 9, 190 00, IČO: 271 35 306 (dále jen „Správce“) jako provozovateli tohoto Serveru uděluje svůj výslovný souhlas v souladu s ustanovením § 5 zákona č. 101/2000 Sb. O ochraně osobních údajů a o změně některých zákonů, v platném znění (dále jen „zákon o ochraně osobních údajů“), se zpracováním uživatelem poskytnutých osobních údajů a dalších dat.
Uživatel poskytuje Správci osobní údaje v rozsahu: jméno, příjmení, e-mailová adresa, telefonický kontakt a další data, a to z důvodu projeveného zájmu o nemovitost, kde prostřednictvím služby Serveru Správce osloví Uživatel inzerenta uvedeného v detailu
nemovitosti - SMS reality s.r.o. (IČ 04095421) se zájmem o jeho služby.
Uživatel tyto osobní údaje poskytuje dobrovolně a bere na vědomí, že součástí služeb Správce, které Správce Uživateli poskytuje, je vyhledání všech Uživateli vyhovujících (dle parametrů - cena, typ nemovitosti, lokalita atd.) nemovitostí. Správce za tímto účelem provozuje aplikace Hlídací pes a newsletter. Tyto služby je možné z každého zaslaného emailu odhlásit. Souhlas se zpracováním osobních údajů Uživatel poskytuje Správci na dobu neurčitou s tím, že svůj udělený souhlas může Uživatel kdykoliv na drese správce info@realitymix.cz odvolat. Správce garantuje Uživateli i další práva uvedené v ustanovení §11 a §21 zákoba č. 101/200 Sb. Ve znění pozdějších předpisů.
Více informací o zpracování údajů získáte zde (realitymix.cz/zasady-ochrany-osobnich-udaju)