Ing. Martin Souček a Explicit Reality Vám nabízí k prodeji zavedený komerční objekt v Bojkovicích.
Hledáte skvělou investiční příležitost nebo prostor pro vlastní podnikání? Nabízíme k prodeji zavedený a plně funkční komerční objekt v centru Bojkovic, který kombinuje gastronomii a ubytování. Tento podnik s dlouholetou tradicí a stabilní klientelou nabízí nejen okamžitou možnost podnikání, ale i velký potenciál pro další rozvoj.
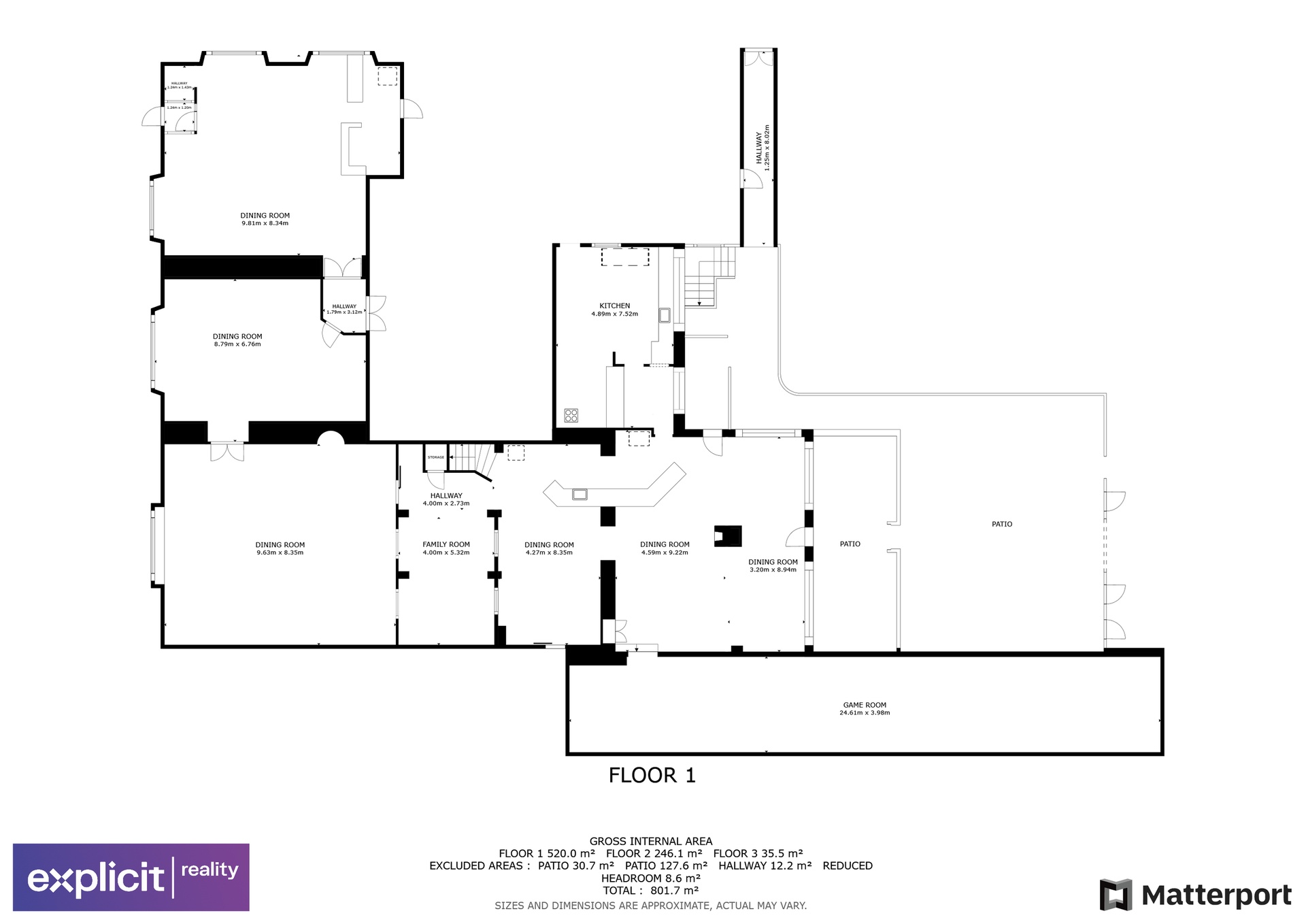
V přízemí objektu se nachází restaurace, pivnice a dva oddělené salónky, které poskytují dostatek prostoru pro hosty i soukromé akce. Restaurace i pivnice mají každý svůj bar. Celková kapacita objektu přesahuje 200 hostů, což z něj činí ideální místo pro pořádání větších akcí, oslav či firemních večírků. K dispozici jsou také dvě plně vybavené profesionální kuchyně, které umožňují plynulý provoz. Součástí objektu je prostorný dvůr s letní zahrádkou, kde si hosté mohou užít venkovní posezení. Velkým plusem jsou také dvě bowlingové dráhy, které dodávají místu jedinečný charakter a přitahují návštěvníky.
V horním patře se nachází čtyři vybavené samostatné pokoje, každý s vlastní koupelnou a toaletou. Tyto pokoje v současné době slouží jako penzion a poskytují stabilní příjem z krátkodobých i dlouhodobých pronájmů. Kromě toho je zde také kompletně vybavený byt, který může sloužit jako zázemí pro majitele nebo další možnost pronájmu.
Celý objekt disponuje také řadou dalších prostor, které zajišťují maximální komfort a funkčnost provozu. Mezi ně patří technické zázemí, prádelna, sušárna, zimní zahrada, šatny, kanceláře a letní kuchyň. K dispozici je zde i prostor pro kulečník, který je dalším atraktivním prvkem pro hosty.
Tento zavedený podnik je v plném provozu, vytápění je zajištěno plynovým kotlem a díky stálé klientele nabízí okamžitou návratnost investice. Je ideální volbou pro podnikatele, kteří chtějí pokračovat v úspěšném provozu restaurace a penzionu, nebo hledají prostor s širokým spektrem využití. Pokud hledáte perspektivní podnikatelskou příležitost, neváhejte mě kontaktovat pro více informací a domluvení osobní prohlídky.
Ing. Martin Souček - realitní makléř Explicit Reality.
Cena:
Cena na vyžádání
Poznámka:
dohodou, včetně poplatků, včetně provize, cena k jednání
Uživatel serveru RealityMIX.cz (dále jen „Server“) dostupného na internetové adrese (URL) https://www.realitymix.cz, který provozuje společnost DALTEN media s.r.o., se sídlem Na Harfě 916/9a, Praha 9, 190 00, IČO: 271 35 306 (dále jen „Správce“) jako provozovateli tohoto Serveru uděluje svůj výslovný souhlas v souladu s ustanovením § 5 zákona č. 101/2000 Sb. O ochraně osobních údajů a o změně některých zákonů, v platném znění (dále jen „zákon o ochraně osobních údajů“), se zpracováním uživatelem poskytnutých osobních údajů a dalších dat.
Uživatel poskytuje Správci osobní údaje v rozsahu: jméno, příjmení, e-mailová adresa, telefonický kontakt a další data, a to z důvodu projeveného zájmu o nemovitost, kde prostřednictvím služby Serveru Správce osloví Uživatel inzerenta uvedeného v detailu
nemovitosti - EXPLICIT REALITY, s.r.o. (IČ 06816860) se zájmem o jeho služby. Tato společnost je součástí seskupení/sítě/franšízového modelu realitních kanceláří, jejich seznam můžete zobrazit kliknutím na tento odkaz.
Explicit reality, Brno (IČ 76193403) , EXPLICIT REALITY, s.r.o. (IČ 06816860)
Uživatel tyto osobní údaje poskytuje dobrovolně a bere na vědomí, že součástí služeb Správce, které Správce Uživateli poskytuje, je vyhledání všech Uživateli vyhovujících (dle parametrů - cena, typ nemovitosti, lokalita atd.) nemovitostí. Správce za tímto účelem provozuje aplikace Hlídací pes a newsletter. Tyto služby je možné z každého zaslaného emailu odhlásit. Souhlas se zpracováním osobních údajů Uživatel poskytuje Správci na dobu neurčitou s tím, že svůj udělený souhlas může Uživatel kdykoliv na drese správce info@realitymix.cz odvolat. Správce garantuje Uživateli i další práva uvedené v ustanovení §11 a §21 zákoba č. 101/200 Sb. Ve znění pozdějších předpisů.
Více informací o zpracování údajů získáte zde (realitymix.cz/zasady-ochrany-osobnich-udaju)