Prodej rodinného domu 98 m², pozemek 186 m² - Bojkovice
ID 02610
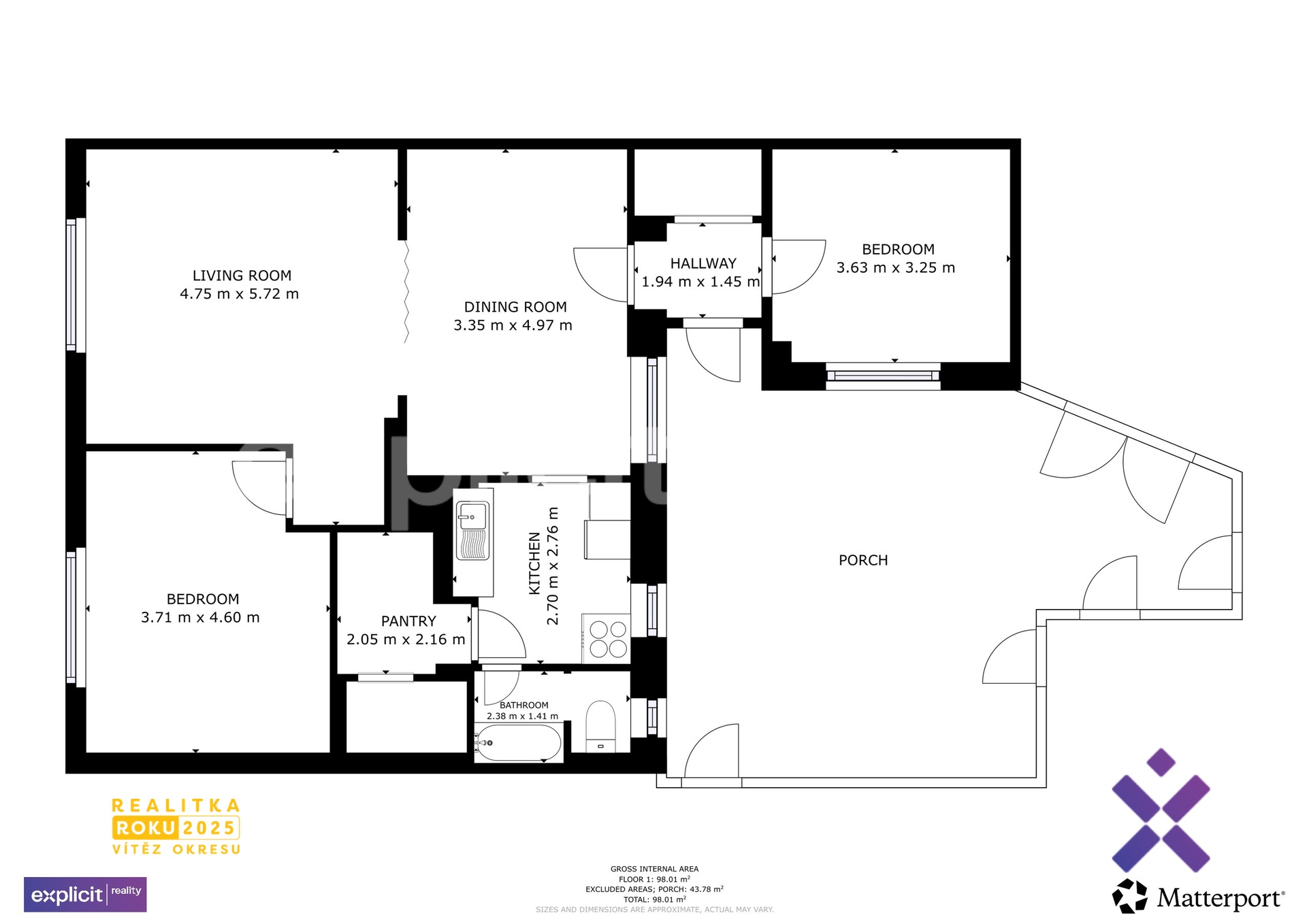
Ing. Martin Souček a Explicit Reality Vám nabízí k prodeji rodinný dům o dispozici 4+1 s podlahovou plochou 98 m² na pozemku o výměře 186 m², situovaný na ulici Mánesova v Bojkovicích. Nemovitost je určena k rekonstrukci, což novému majiteli otevírá široké možnosti úprav dle vlastních představ a potřeb.
Dispozice domu umožňuje oddělení společenské a klidové části. Vstup je ze dvora, odkud se vchází do menší chodby. Po pravé straně se nachází jeden z pokojů, po levé straně jsou přístupné ostatní místnosti. Dům nabízí celkem čtyři prázdné a nevybavené pokoje připravené k úpravám. Součástí je kuchyně s kuchyňskou linkou, volně stojící lednicí a pračkou, na kterou navazuje praktická špajzka.
K dispozici je koupelna a samostatné WC.
Uzavřený dvůr poskytuje soukromí i prostor pro další využití.
Dům je postaven z cihel Porotherm, elektřina je v původním hliníkovém provedení. K dispozici je plynová přípojka a nový kondenzační kotel, vytápění je možné rovněž klimatizační jednotkou. Střešní trámy jsou přibližně 30 let staré, přívod vody je nový a odpad je řešen septikem.
Nemovitost je vhodná pro zájemce hledající dům s potenciálem v klidné lokalitě s blízkostí přírody.
Budu se těšit na společné prohlídky tohoto domu.
Ing. Martin Souček, realitní makléř Explicit Reality.
Pomocí naší hypoteční kalkulačky si můžete udělat orientační představu o výši měsíčních splátek hypotéky. O vše ostatní se pak postaráme my ve spolupráci s našimi obchodními partnery.
11 134 Kč
* Odhadovaná měsíční splátka vychází z výše úvěru Kč s pevnou úrokovou sazbou % po celou dobu trvání úvěru.
Uživatel serveru RealityMIX.cz (dále jen „Server“) dostupného na internetové adrese (URL) https://www.realitymix.cz, který provozuje společnost DALTEN media s.r.o., se sídlem Na Harfě 916/9a, Praha 9, 190 00, IČO: 271 35 306 (dále jen „Správce“) jako provozovateli tohoto Serveru uděluje svůj výslovný souhlas v souladu s ustanovením § 5 zákona č. 101/2000 Sb. O ochraně osobních údajů a o změně některých zákonů, v platném znění (dále jen „zákon o ochraně osobních údajů“), se zpracováním uživatelem poskytnutých osobních údajů a dalších dat.
Uživatel poskytuje Správci osobní údaje v rozsahu: jméno, příjmení, e-mailová adresa, telefonický kontakt a další data, a to z důvodu projeveného zájmu o nemovitost, kde prostřednictvím služby Serveru Správce osloví Uživatel inzerenta uvedeného v detailu
nemovitosti - EXPLICIT REALITY, s.r.o. (IČ 06816860) se zájmem o jeho služby. Tato společnost je součástí seskupení/sítě/franšízového modelu realitních kanceláří, jejich seznam můžete zobrazit kliknutím na tento odkaz.
Explicit reality, Brno (IČ 76193403) , EXPLICIT REALITY, s.r.o. (IČ 06816860)
Uživatel tyto osobní údaje poskytuje dobrovolně a bere na vědomí, že součástí služeb Správce, které Správce Uživateli poskytuje, je vyhledání všech Uživateli vyhovujících (dle parametrů - cena, typ nemovitosti, lokalita atd.) nemovitostí. Správce za tímto účelem provozuje aplikace Hlídací pes a newsletter. Tyto služby je možné z každého zaslaného emailu odhlásit. Souhlas se zpracováním osobních údajů Uživatel poskytuje Správci na dobu neurčitou s tím, že svůj udělený souhlas může Uživatel kdykoliv na drese správce info@realitymix.cz odvolat. Správce garantuje Uživateli i další práva uvedené v ustanovení §11 a §21 zákoba č. 101/200 Sb. Ve znění pozdějších předpisů.
Více informací o zpracování údajů získáte zde (realitymix.cz/zasady-ochrany-osobnich-udaju)