Nabídka prodeje novostavby RD v obci Bořenovice u Holešova. RD je umístěn na rohovém pozemku v obci o rozloze 987m2.
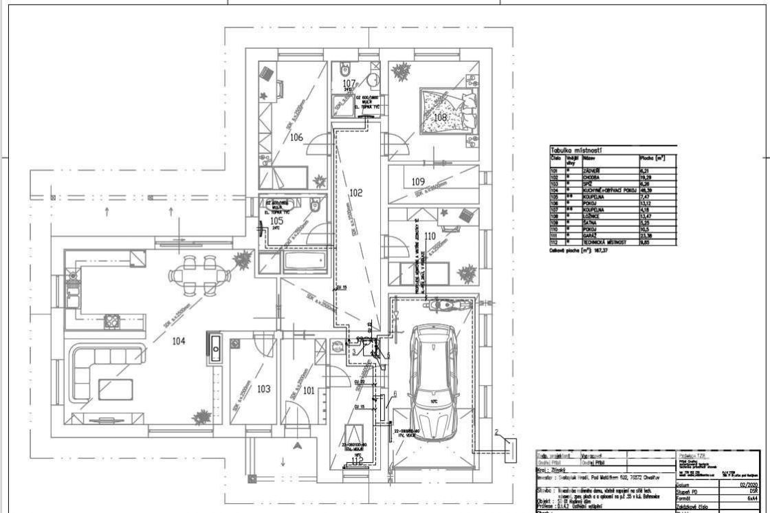
Na pozemku je umístěna stavba RD o velikosti 4+kk s užitnou plochou 167m2, typ domu bungalov, garáž je součástí domu.
. Uvedená cena odpovídá nynějšímu stavu nemovitosti na aktuálních fotografiích. Vnitřní prostory domu jsou pro lepší představivost na fotografiích vizualizovány. V domě jsou hotovy podlahové úpravy v kuchyni a koupelně včetně elektrického podlahového vytápění v celém domě.
Součástí prodeje je kompletní stavební dokumentace včetně platného stavebního povolení.
Investor se může rozhodnout na dokončení RD kompletně do detailu, dle jeho přání.
Elektřina včetně měření na pozemku, voda přes cestu u pozemku, odpady dle projektu přes vlastní domovní ČOV, vytápění bude řešeno tepelným čerpadlem.
Obec Bořenovice se nachází v okrese Kroměříž ve Zlínském kraji, od města Holešov vzdálena 4km, Kroměříž vzdálena 30 km a 10 km k dálnici D55.
Žije zde cca 200 obyvatel. V obci je obchod se smíšeným zbožím, zajištěna autobusová doprava do Holešova.
Pomocí naší hypoteční kalkulačky si můžete udělat orientační představu o výši měsíčních splátek hypotéky. O vše ostatní se pak postaráme my ve spolupráci s našimi obchodními partnery.
44 941 Kč
* Odhadovaná měsíční splátka vychází z výše úvěru Kč s pevnou úrokovou sazbou % po celou dobu trvání úvěru.
Uživatel serveru RealityMIX.cz (dále jen „Server“) dostupného na internetové adrese (URL) https://www.realitymix.cz, který provozuje společnost DALTEN media s.r.o., se sídlem Na Harfě 916/9a, Praha 9, 190 00, IČO: 271 35 306 (dále jen „Správce“) jako provozovateli tohoto Serveru uděluje svůj výslovný souhlas v souladu s ustanovením § 5 zákona č. 101/2000 Sb. O ochraně osobních údajů a o změně některých zákonů, v platném znění (dále jen „zákon o ochraně osobních údajů“), se zpracováním uživatelem poskytnutých osobních údajů a dalších dat.
Uživatel poskytuje Správci osobní údaje v rozsahu: jméno, příjmení, e-mailová adresa, telefonický kontakt a další data, a to z důvodu projeveného zájmu o nemovitost, kde prostřednictvím služby Serveru Správce osloví Uživatel inzerenta uvedeného v detailu
nemovitosti - Swiss Life Select Reality (IČ 24260444) se zájmem o jeho služby. Tato společnost je součástí seskupení/sítě/franšízového modelu realitních kanceláří, jejich seznam můžete zobrazit kliknutím na tento odkaz.
Fincentrum a.s. (IČ 24260444) , Swiss Life Select Reality (IČ 24260444)
Uživatel tyto osobní údaje poskytuje dobrovolně a bere na vědomí, že součástí služeb Správce, které Správce Uživateli poskytuje, je vyhledání všech Uživateli vyhovujících (dle parametrů - cena, typ nemovitosti, lokalita atd.) nemovitostí. Správce za tímto účelem provozuje aplikace Hlídací pes a newsletter. Tyto služby je možné z každého zaslaného emailu odhlásit. Souhlas se zpracováním osobních údajů Uživatel poskytuje Správci na dobu neurčitou s tím, že svůj udělený souhlas může Uživatel kdykoliv na drese správce info@realitymix.cz odvolat. Správce garantuje Uživateli i další práva uvedené v ustanovení §11 a §21 zákoba č. 101/200 Sb. Ve znění pozdějších předpisů.
Více informací o zpracování údajů získáte zde (realitymix.cz/zasady-ochrany-osobnich-udaju)