Hledáte zázemí pro pobyt na horách, které vám zároveň může sloužit i jako investice? Nebo zkrátka chcete žít na horách a neradi byste se starali o rodinný dům?
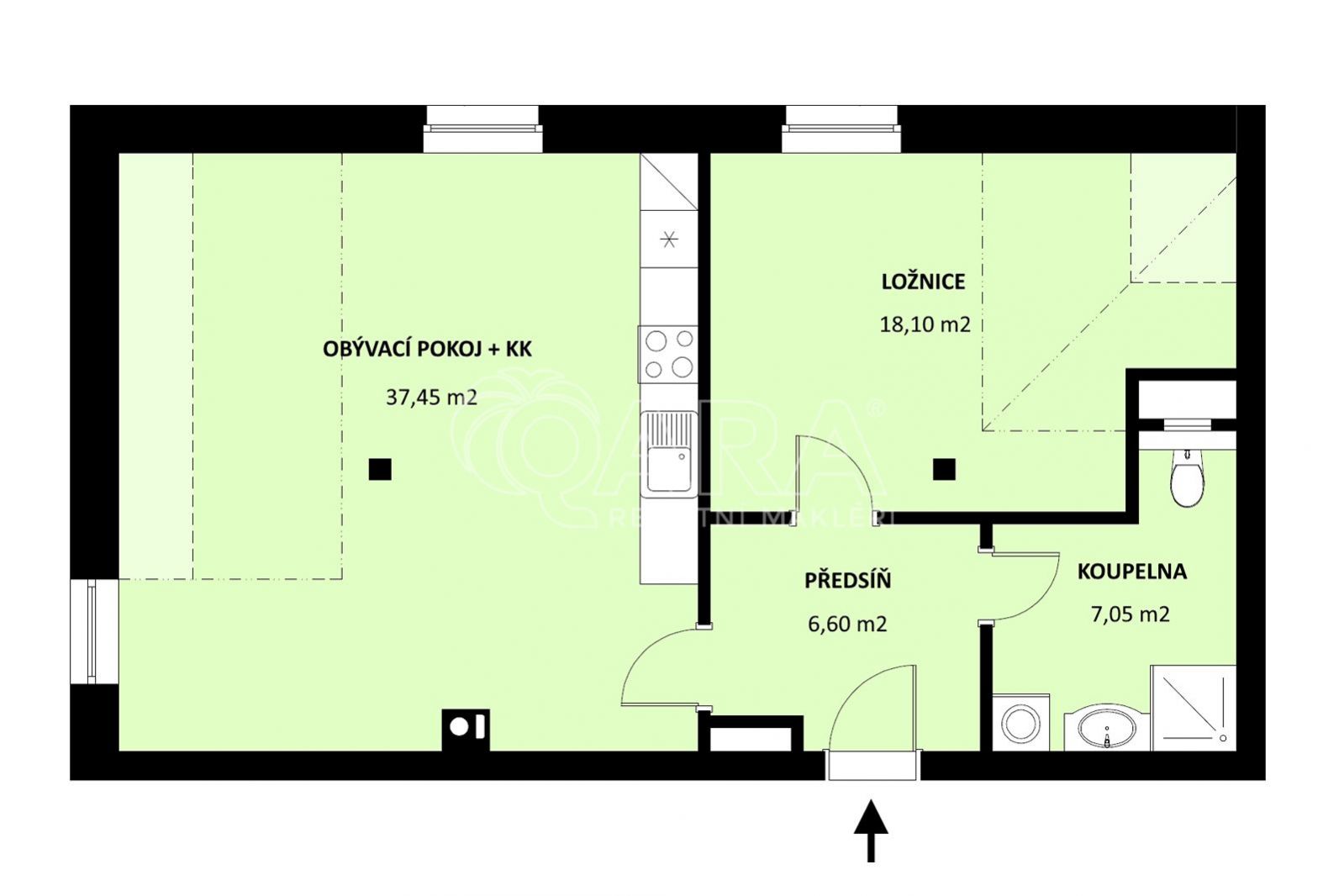
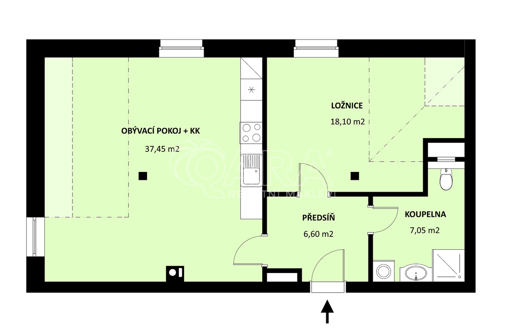
Pak je pro vás zajímavou možností koupě prostorného a kompletně zařízeného bytu 2+kk v obci Borová Lada nedaleko oblíbené Kvildy.
Tento byt se nachází ve 2. patře novostavby z roku 2024 a jistě oceníte celkové kvalitní zpracování jak domu, tak bytu vč. jeho vybavení. Dům je kromě vynikajících konstrukčních vlastností vybaven několika tepelnými čerpadly, což jej řadí k domům s minimální energetickou spotřebou.
Hned u vstupu do domu máte k dispozici sklep a před domem pak výhradní parkovací stání.
Skvělá je zejména lokalita, která poskytuje vyžití nejen fanouškům běžeckého lyžování, cyklistiky a turistiky. V dojezdových vzdálenostech jsou lyžařské areály Zadov (cca 20 min cesty) či rakouský Hochficht (75 min cesty).
I občanská vybavenost nahrává možnosti trvalého bydlení - přímo v obci se nachází mateřská i základní škola, pošta, restaurace, obchod se smíšeným zbožím či kavárna.
Přijeďte se podívat, jak lokalita a dispozice bytu vyhovují právě vašim potřebám.
Pomocí naší hypoteční kalkulačky si můžete udělat orientační představu o výši měsíčních splátek hypotéky. O vše ostatní se pak postaráme my ve spolupráci s našimi obchodními partnery.
32 268 Kč
* Odhadovaná měsíční splátka vychází z výše úvěru Kč s pevnou úrokovou sazbou % po celou dobu trvání úvěru.
Prodáváte nemovitost a potřebujete zjistit její reálnou hodnotu?
Uživatel serveru RealityMIX.cz (dále jen „Server“) dostupného na internetové adrese (URL) https://www.realitymix.cz, který provozuje společnost DALTEN media s.r.o., se sídlem Na Harfě 916/9a, Praha 9, 190 00, IČO: 271 35 306 (dále jen „Správce“) jako provozovateli tohoto Serveru uděluje svůj výslovný souhlas v souladu s ustanovením § 5 zákona č. 101/2000 Sb. O ochraně osobních údajů a o změně některých zákonů, v platném znění (dále jen „zákon o ochraně osobních údajů“), se zpracováním uživatelem poskytnutých osobních údajů a dalších dat.
Uživatel poskytuje Správci osobní údaje v rozsahu: jméno, příjmení, e-mailová adresa, telefonický kontakt a další data, a to z důvodu projeveného zájmu o nemovitost, kde prostřednictvím služby Serveru Správce osloví Uživatel inzerenta uvedeného v detailu
nemovitosti - QARA s.r.o. (IČ 01740113) se zájmem o jeho služby. Tato společnost je součástí seskupení/sítě/franšízového modelu realitních kanceláří, jejich seznam můžete zobrazit kliknutím na tento odkaz.
QARA s.r.o. Ostrava (IČ 01740113) , QARA s.r.o. Brno (IČ 01740113) , QARA s.r.o. (IČ 01740113)
Uživatel tyto osobní údaje poskytuje dobrovolně a bere na vědomí, že součástí služeb Správce, které Správce Uživateli poskytuje, je vyhledání všech Uživateli vyhovujících (dle parametrů - cena, typ nemovitosti, lokalita atd.) nemovitostí. Správce za tímto účelem provozuje aplikace Hlídací pes a newsletter. Tyto služby je možné z každého zaslaného emailu odhlásit. Souhlas se zpracováním osobních údajů Uživatel poskytuje Správci na dobu neurčitou s tím, že svůj udělený souhlas může Uživatel kdykoliv na drese správce info@realitymix.cz odvolat. Správce garantuje Uživateli i další práva uvedené v ustanovení §11 a §21 zákoba č. 101/200 Sb. Ve znění pozdějších předpisů.
Více informací o zpracování údajů získáte zde (realitymix.cz/zasady-ochrany-osobnich-udaju)