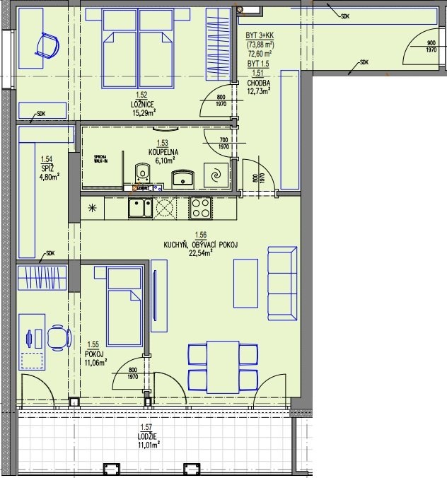
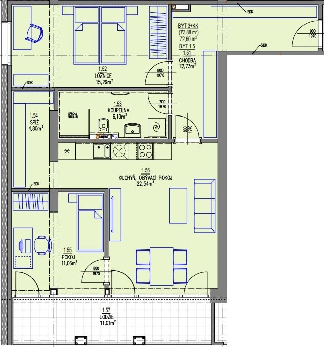
Prodej byty 3+kk, UP 72,6m², lodžie 11 m2 - Boskovice , ul. Mánesova CP 83,6 m2
Rezidence Mánesova – nové bydlení na dobré adrese v Boskovicích
Představujeme vám byt 3+kk v nově vznikající Rezidenci Mánesova, projektu situovaném v jedné z nejžádanějších lokalit Boskovic.
Rezidence Mánesova vznikne na místě bývalé kotelny, která byla již zdemolována. Na tomto pozemku vyroste zcela nový bytový dům, navržený s důrazem na kvalitu, úspornost a moderní architekturu.
Hlavní přednosti:
Promyšlené dispoziční řešení s důrazem na světlost, funkčnost a dostatek úložného prostoru
Velká okna a orientace na světové strany zajišťují dostatek denního světla
Kvalitní standardy vybavení – podlahy, dveře, obklady, sanita – možnost výběru podle vašeho vkusu
Energeticky úsporný provoz – nízké náklady na bydlení díky moderním technologiím
Lokalita, kde se dobře žije.
Rezidence Mánesova se nachází jen pár minut chůze od centra.
Vše potřebné budete mít po ruce:
Mateřské a základní školy
Obchody, lékaře a další služby
Sportoviště, cyklostezky, dětská hřiště
Městský park a kulturní zařízení
Proč právě tento byt?
Skvělá poloha a dostupnost služeb
Vysoký standard novostavby s možností úprav interiéru
Možnost přikoupení sklepa a parkovacího stání
Ideální pro mladé páry, jednotlivce i seniory
Výborná investice do budoucna
Průběh výstavby a financování:
Zahájení stavby: leden/únor 2026
Předpokládaná kolaudace: prosinec 2027
Financování projektu zajišťuje ČSOB, která zároveň projekt zaštiťuje jako úvěrující instituce.
Splátky jsou ukládány na projektový účet ČSOB, což garantuje bezpečnost a transparentnost celé transakce.
Kontaktujte nás pro více informací a osobní konzultaci.
Rezidence Mánesova – váš nový začátek na skvělé adrese.
Pomocí naší hypoteční kalkulačky si můžete udělat orientační představu o výši měsíčních splátek hypotéky. O vše ostatní se pak postaráme my ve spolupráci s našimi obchodními partnery.
32 608 Kč
* Odhadovaná měsíční splátka vychází z výše úvěru Kč s pevnou úrokovou sazbou % po celou dobu trvání úvěru.
Prodáváte nemovitost a potřebujete zjistit její reálnou hodnotu?
Uživatel serveru RealityMIX.cz (dále jen „Server“) dostupného na internetové adrese (URL) https://www.realitymix.cz, který provozuje společnost DALTEN media s.r.o., se sídlem Na Harfě 916/9a, Praha 9, 190 00, IČO: 271 35 306 (dále jen „Správce“) jako provozovateli tohoto Serveru uděluje svůj výslovný souhlas v souladu s ustanovením § 5 zákona č. 101/2000 Sb. O ochraně osobních údajů a o změně některých zákonů, v platném znění (dále jen „zákon o ochraně osobních údajů“), se zpracováním uživatelem poskytnutých osobních údajů a dalších dat.
Uživatel poskytuje Správci osobní údaje v rozsahu: jméno, příjmení, e-mailová adresa, telefonický kontakt a další data, a to z důvodu projeveného zájmu o nemovitost, kde prostřednictvím služby Serveru Správce osloví Uživatel inzerenta uvedeného v detailu
nemovitosti - ARTOSS realitní kancelář, s.r.o. (IČ 28309545) se zájmem o jeho služby. Tato společnost je součástí seskupení/sítě/franšízového modelu realitních kanceláří, jejich seznam můžete zobrazit kliknutím na tento odkaz.
ARTOSS realitní kancelář, s.r.o. Brno (IČ 28309545) , ARTOSS realitní kancelář, s.r.o. (IČ 28309545)
Uživatel tyto osobní údaje poskytuje dobrovolně a bere na vědomí, že součástí služeb Správce, které Správce Uživateli poskytuje, je vyhledání všech Uživateli vyhovujících (dle parametrů - cena, typ nemovitosti, lokalita atd.) nemovitostí. Správce za tímto účelem provozuje aplikace Hlídací pes a newsletter. Tyto služby je možné z každého zaslaného emailu odhlásit. Souhlas se zpracováním osobních údajů Uživatel poskytuje Správci na dobu neurčitou s tím, že svůj udělený souhlas může Uživatel kdykoliv na drese správce info@realitymix.cz odvolat. Správce garantuje Uživateli i další práva uvedené v ustanovení §11 a §21 zákoba č. 101/200 Sb. Ve znění pozdějších předpisů.
Více informací o zpracování údajů získáte zde (realitymix.cz/zasady-ochrany-osobnich-udaju)