Prodej, zahrada s mobilheimem 3+kk Břeclav, U Letiště, terasa, skleník, vlastní studna, CP:1017m2
Nabízíme k prodeji zahradu s mobilheimem o dispozici 3+kk v klidné lokalitě Břeclav, ulice U Letiště. Celková plocha pozemku činí 1 017 m².
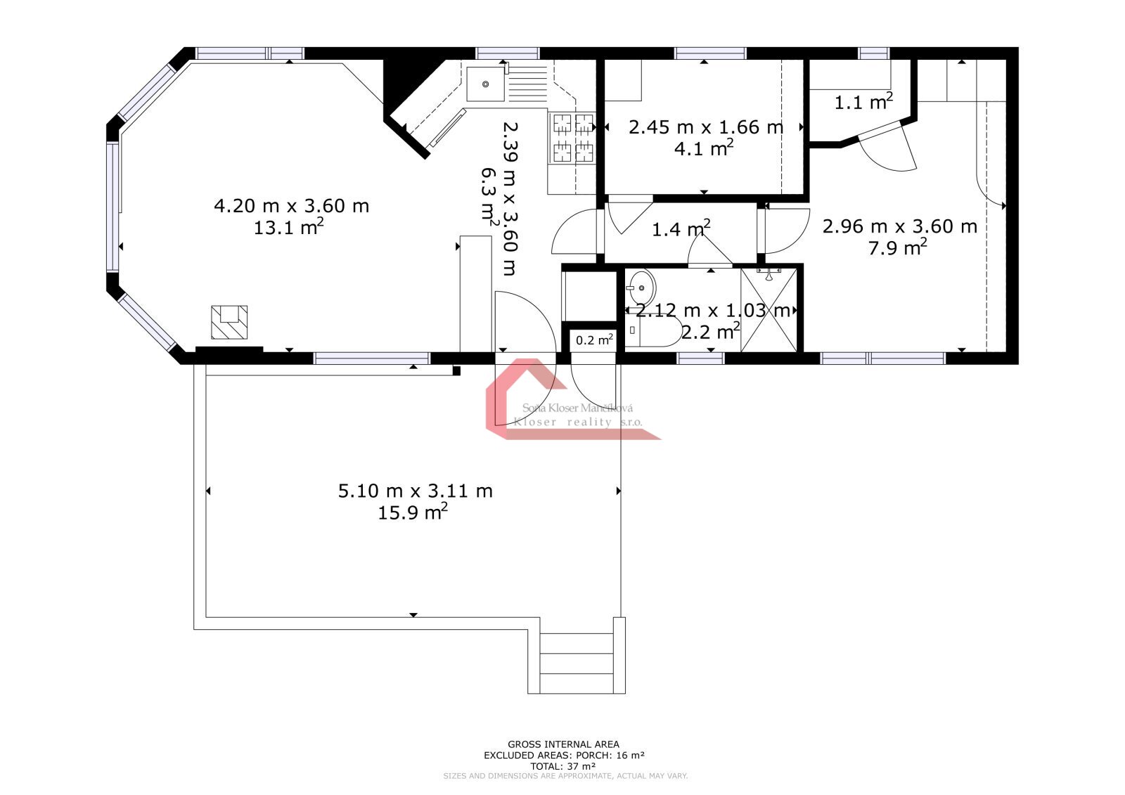
Mobilheim má obytnou plochu 53 m² a je doplněn o zastřešenou terasu o výměře 16 m². Dispozice 3+kk nabízí obývací část s kuchyní a dvě samostatné ložnice. Vytápění zajišťují krbová kamna, klimatizace s funkcí vytápění a přímotopy.
Pozemek je napojen na elektřinu (220/380 V), voda je řešena vlastní studnou a odpad septikem. Součástí je vjezd na pozemek s možností parkování.
Zahrada nabízí skleník, altán, ohniště, solární sprchu, dva přístřešky na dřevo a dostatek úložného prostoru. Dále je zde nízká dřevěná bouda na techniku - Darling a bojler. Součástí prodeje je také traktor na sekání trávy, viz. foto..
Pozemek je osázen vzrostlou zelení a poskytuje dostatek soukromí.
Dle veřejně přístupného územního plánu se jedná o plochu rekreace individuální (MRr.xi), kde je možné umístit stavby a zařízení pro rekreační využití. Přípustné jsou drobné stavby jako pergoly, zahradní domky, skleníky či zázemí pro zahradničení. Podmíněně lze realizovat rekreační objekty do jednoho nadzemního podlaží (s možností podkroví) při dodržení regulativů – maximální zastavěná plocha objektů na pozemku do cca 80 m² a zastavitelnost do 20 % plochy. Mobilheim je zde přípustný pro rekreační účely.
Nemovitost je vhodná pro rekreaci, zahradničení i jako investice. Klidná lokalita s dobrou dostupností do centra Břeclavi.
Charakter lokality
Jedná se o zahrádkářskou kolonii s rekreačním využitím (RI)
Převládají zde:
- zahrady
- chaty a mobilheimy
- drobné rekreační objekty
Lokalita je rozdělena do jednotlivých „řad“ (A, B, C…), běžné v těchto koloniích
Dostupnost
- velmi dobrý příjezd:
- z centra Břeclavi cca 5 minut
- přístup po asfaltové i zpevněné komunikaci
Možnost parkování často přímo na pozemku.
Pro více informací nebo domluvení prohlídky mě neváhejte kontaktovat.
Cena:
Cena na vyžádání
Poznámka:
informace o ceně v RK
Číslo zakázky:
REALITYMIX-26122
Podrobné informace
Zastavěná plocha:53 m²
Užitná plocha:53 m²
Plocha parcely:1017 m²
Druh objektu:montovaná
Stav objektu:dobrý
Počet podlaží objektu:1
Terasa:16 m²
Umístění objektu:okraj obce
Elektřina:Elektro - 230 V, Elektro - 400 V
Voda:Zdroj pro celý objekt
Topení:Lokální - tuhá paliva, Lokální - elektrické
Uživatel serveru RealityMIX.cz (dále jen „Server“) dostupného na internetové adrese (URL) https://www.realitymix.cz, který provozuje společnost DALTEN media s.r.o., se sídlem Na Harfě 916/9a, Praha 9, 190 00, IČO: 271 35 306 (dále jen „Správce“) jako provozovateli tohoto Serveru uděluje svůj výslovný souhlas v souladu s ustanovením § 5 zákona č. 101/2000 Sb. O ochraně osobních údajů a o změně některých zákonů, v platném znění (dále jen „zákon o ochraně osobních údajů“), se zpracováním uživatelem poskytnutých osobních údajů a dalších dat.
Uživatel poskytuje Správci osobní údaje v rozsahu: jméno, příjmení, e-mailová adresa, telefonický kontakt a další data, a to z důvodu projeveného zájmu o nemovitost, kde prostřednictvím služby Serveru Správce osloví Uživatel inzerenta uvedeného v detailu
nemovitosti - Soňa Kloser Mančíková reality s.r.o. (IČ 11748397) se zájmem o jeho služby.
Uživatel tyto osobní údaje poskytuje dobrovolně a bere na vědomí, že součástí služeb Správce, které Správce Uživateli poskytuje, je vyhledání všech Uživateli vyhovujících (dle parametrů - cena, typ nemovitosti, lokalita atd.) nemovitostí. Správce za tímto účelem provozuje aplikace Hlídací pes a newsletter. Tyto služby je možné z každého zaslaného emailu odhlásit. Souhlas se zpracováním osobních údajů Uživatel poskytuje Správci na dobu neurčitou s tím, že svůj udělený souhlas může Uživatel kdykoliv na drese správce info@realitymix.cz odvolat. Správce garantuje Uživateli i další práva uvedené v ustanovení §11 a §21 zákoba č. 101/200 Sb. Ve znění pozdějších předpisů.
Více informací o zpracování údajů získáte zde (realitymix.cz/zasady-ochrany-osobnich-udaju)