Prodej novostavby RD 5+kk s garáží a zahradou, CP 127 m2, Břežany u Znojma
Exkluzivní nabídka vydařené novostavby rodinného domu 5+kk s garáží a zahradou v Břežanech, okres Znojmo.
Jedná se o polorohový dům v klidné ulici s výhledem na jihozápad, který je právě dokončen a během března 2026 bude zkolaudován. K dispozici je prostorná garáž pro 1 vůz a dále 2 parkovací místa před garáží. Dům má velmi promyšlenou a praktickou dispozici s velmi citlivě vybranými kvalitními materiály a vkusně zvolenými barvami podlah, dveří, oken a drobných zařizovacích předmětů. Tento dům vyhovuje moderním standardům dnešního rodinného bydlení.
Dům disponuje energetickou třídou B, což zaručuje nízké provozní náklady. Je zcela dokončen, jen předzahrádka a zahrada již čekají na realizaci novým majitelem.
Celková plocha pozemku 429 m2, zahrada cca 350 m2, užitná plocha domu 127 m2.
Dům je zděný (ytong) se sedlovou střechou, nepodsklepený a zateplený.
Vybavení: plastová okna s trojskly, podlahové topení v celém domě včetně garáže, plynový kondenzační kotel zn. IMMERGAS, bojler 160 l, fotovoltaika na ohřev vody, příprava na předokenní žaluzie a klimatizaci, videotelefon, rekuperace vzduchu, sanitární výbava a zařizovací předměty zn. Ravak, Gelco a Hansgrohe, příprava na kabelový internet.
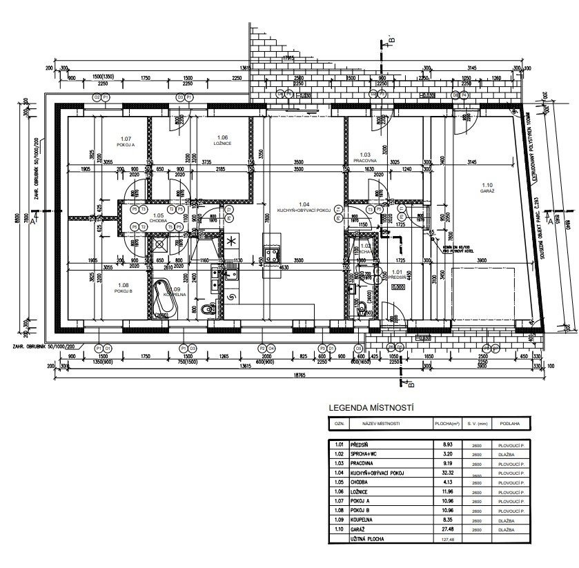
Výměry místností:
garáž s vraty na dálkové ovládání 27,48 m2 s umyvadlem/výlevkou a přípravou na pračku a sušičku, předsíň 8,93 m2, 1. koupelna s WC, umyvadlem a sprchovým koutem 3,20 m2, pracovna/šatna 9,19 m2, obývací pokoj s kuchyňským koutem 32,32 m2, chodba 4,13 m2, ložnice 11,96 m2, pokoj 10,96 m2, pokoj 10,96 m2, 2. koupelna s WC, vanou, sprchovým koutem a dvojumyvadlem 8,35 m2.
Zahrada s budoucí terasou je přístupná z garáže, z ložnice i z obývacího pokoje.
Veškeré IS – elektřina 220/380V, obecní vodovod, plyn, kanalizace.
Dešťová voda je svedena do retenční nádrže na zahradě (možnost zalévání).
Dům je k dispozici ihned, není zatížen žádným zástavním právem, možnost financovat hypotečním úvěrem.
V případě koupě domu na firmu, možný odpočet DPH.
Nabízíme Vám šanci získat svůj vlastní útulný domov, který se může stát místem plným klidu, lásky a pohody.
Buďte rychlí, tato příležitost nemusí trvat dlouho!
Dostupnost z Břežan do Brna je 30 min. autem, 25 min. do Znojma a 20 min od Městys Pohořelice.
V obci je veškerá občanská vybavenost - obecní úřad, pošta, mateřská školka, základní škola, restaurace, cukrárna, obchod - potraviny, rybník. Bližší informace v RK.
Cena:
Cena na vyžádání
Poznámka:
dohodou, cena k jednání
Datum k nastěhování:
24.03.2026
Číslo zakázky:
REALITYMIX-53368
Podrobné informace
Poloha objektu:rohový
Druh objektu:cihlová
Stav objektu:novostavba
Počet podlaží objektu:1
Typ domu:přízemní
Zastavěná plocha:127 m²
Plocha parcely:429 m²
Užitná plocha:127 m²
Ostatní:Bezbarierový přístup, Garáž, Parkoviště
Doprava:autobus
Komunikace:dlážděná
Elektřina:Elektro - 230 V
Voda:Voda - dálkový vodovod
Telekomunikace:Internet
Plyn:Plynovod
Topení:Ústřední - plynové
Odpad:Kanalizace
Energetická náročnost budovy:B - Velmi úsporná
Ukazatel energetické náročnosti budovy:68 kWh/m²
Energetický ukazatel podle vyhlášky:č. 264/2020 Sb.
Uživatel serveru RealityMIX.cz (dále jen „Server“) dostupného na internetové adrese (URL) https://www.realitymix.cz, který provozuje společnost DALTEN media s.r.o., se sídlem Na Harfě 916/9a, Praha 9, 190 00, IČO: 271 35 306 (dále jen „Správce“) jako provozovateli tohoto Serveru uděluje svůj výslovný souhlas v souladu s ustanovením § 5 zákona č. 101/2000 Sb. O ochraně osobních údajů a o změně některých zákonů, v platném znění (dále jen „zákon o ochraně osobních údajů“), se zpracováním uživatelem poskytnutých osobních údajů a dalších dat.
Uživatel poskytuje Správci osobní údaje v rozsahu: jméno, příjmení, e-mailová adresa, telefonický kontakt a další data, a to z důvodu projeveného zájmu o nemovitost, kde prostřednictvím služby Serveru Správce osloví Uživatel inzerenta uvedeného v detailu
nemovitosti - GAUTE, a.s. (IČ 25543709) se zájmem o jeho služby. Tato společnost je součástí seskupení/sítě/franšízového modelu realitních kanceláří, jejich seznam můžete zobrazit kliknutím na tento odkaz.
Bramley, s.r.o. (IČ 26306735) , GAUTE, a.s. (IČ 25543709)
Uživatel tyto osobní údaje poskytuje dobrovolně a bere na vědomí, že součástí služeb Správce, které Správce Uživateli poskytuje, je vyhledání všech Uživateli vyhovujících (dle parametrů - cena, typ nemovitosti, lokalita atd.) nemovitostí. Správce za tímto účelem provozuje aplikace Hlídací pes a newsletter. Tyto služby je možné z každého zaslaného emailu odhlásit. Souhlas se zpracováním osobních údajů Uživatel poskytuje Správci na dobu neurčitou s tím, že svůj udělený souhlas může Uživatel kdykoliv na drese správce info@realitymix.cz odvolat. Správce garantuje Uživateli i další práva uvedené v ustanovení §11 a §21 zákoba č. 101/200 Sb. Ve znění pozdějších předpisů.
Více informací o zpracování údajů získáte zde (realitymix.cz/zasady-ochrany-osobnich-udaju)