Předmětem nabídky je stavební pozemek přímo na návsi obce Březová Oleško. K pozemku bylo vydáno stavební povolení na výstavbu rodinného domu o třech bytových jednotkách!
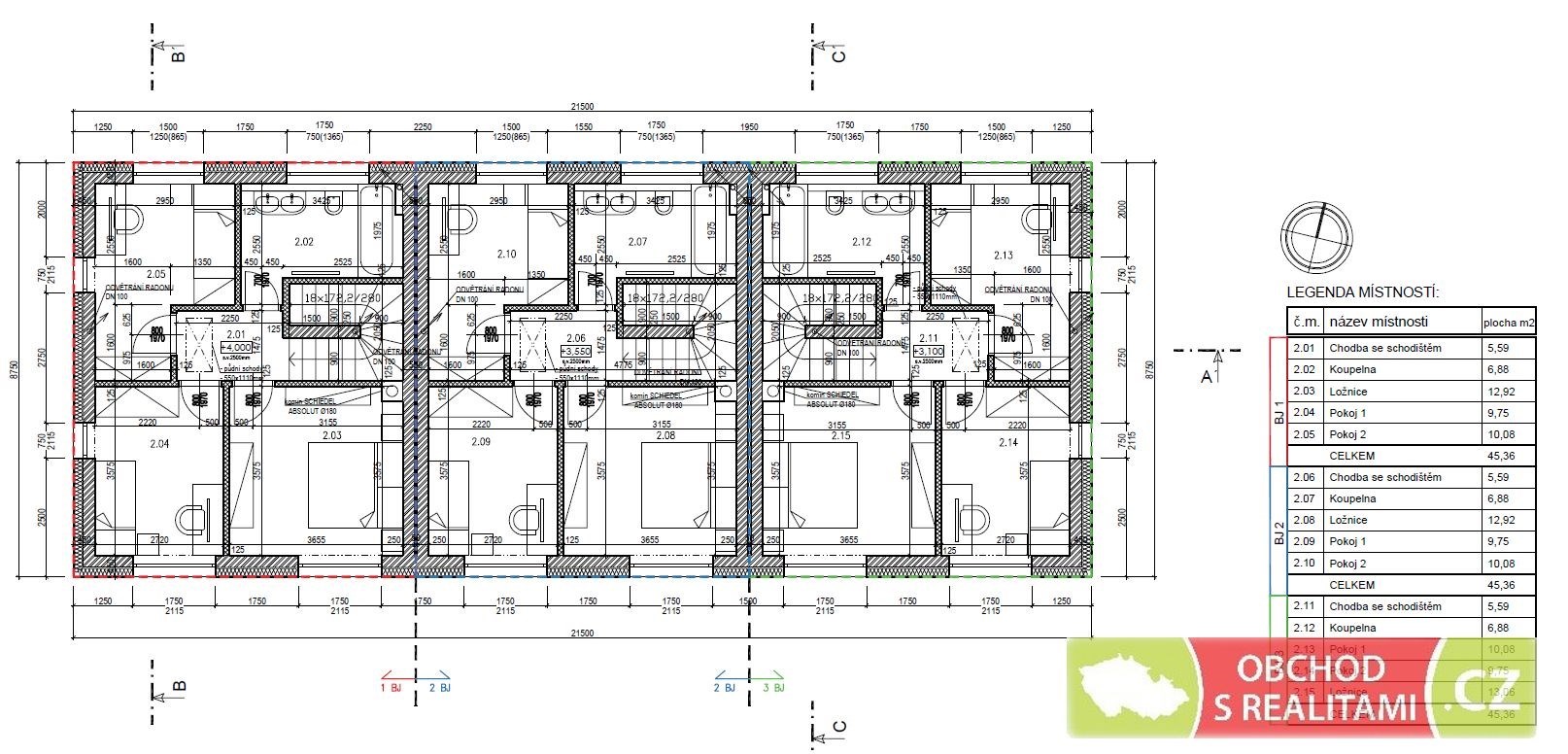
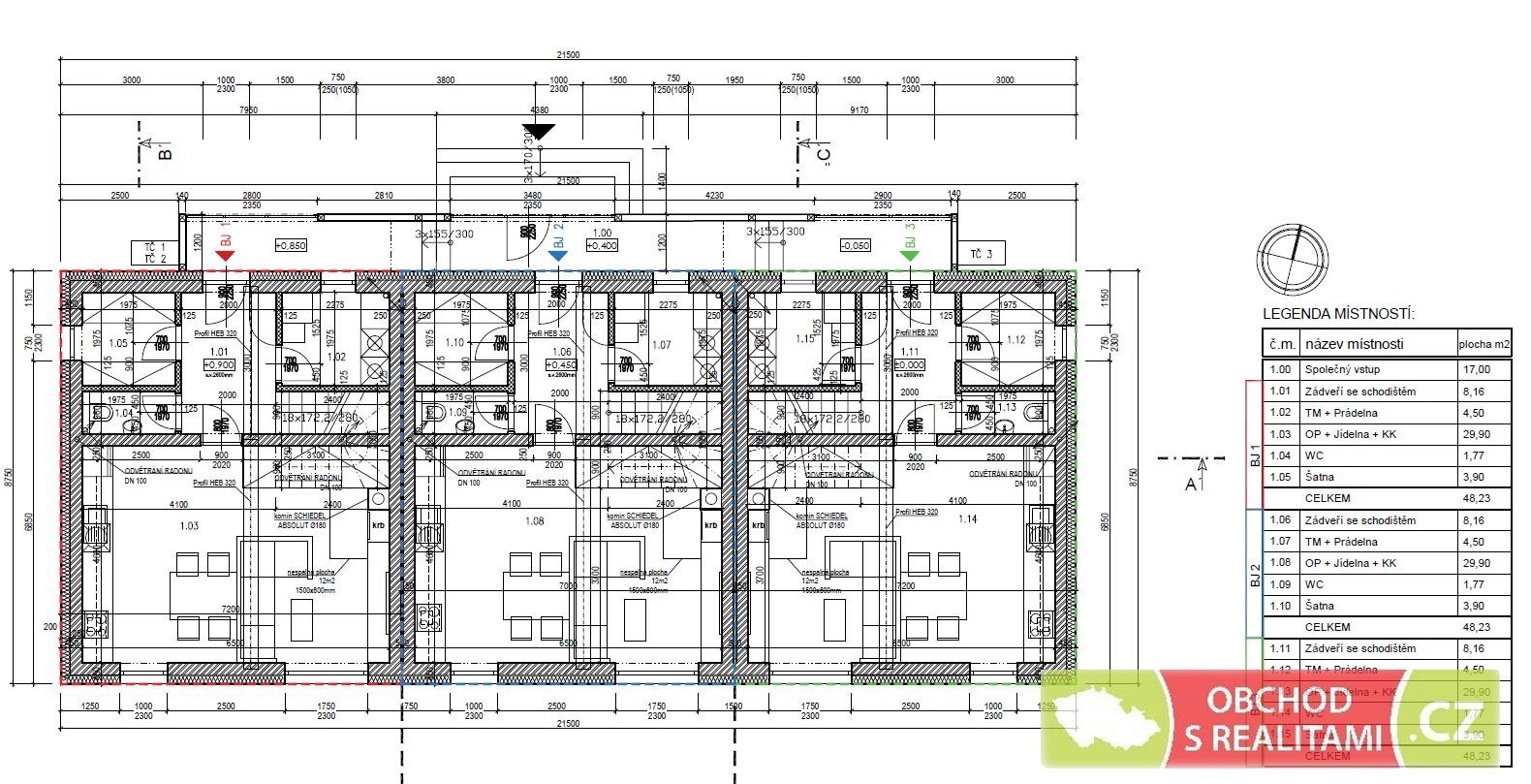
Každá z jednotek má dispozici 4+KK s užitnou plochou 94 m2. V dispozičním uspořádání každého z bytů nechybí technická místnost nebo šatna! Půdorysy s legendou i pohledy přikládáme.
DSP, včetně vyjádření dotčených orgánů, k dispozici.
Nejedná se o novou zástavbu na tzv. poli nebo chatovou osadu s malými pozemky a nízkou mírou soukromí.
Právě poloha pozemku je ojedinělou nabídkou v této lokalitě, jedná se o proluku ve stávající zástavbě!
Pozemek má optimální orientaci, když vstup na pozemek je ze severu a zahrada je orientována na jih.
Lokalita je oblíbenou pro nízký provoz aut (v obci Oleško silnice končí, pak už je jen stezka pro pěší nebo jízdní kola dolů k Vltavě, tranzitní doprava je tak v místě vyloučena), pohyb jen místních občanů nebo v sezóně chatařů. V okolí nejsou žádné negativní stavby nebo provozy, jen rodinné bydlení, lesy, pole nebo pastviny pro koně.
Přes náves projíždí autobus, výstupní i nástupní zastávky jsou tak jen desítky metrů od pozemku. Aktuální autobusové spojení je na vlakovou stanici Vrané na Vltavou nebo přes Dolní Břežany na metro trasy C Kačerov (v budoucnu lze očekávat spojení na metro trasy D Písnice).
U pozemku se nachází vodovodní řad, v rámci projektu je povolena přípojka!
U společnosti ČEZ bylo zažádáno o přípojku a uhrazen poplatek ve výši 50% za připojení.
Na vaše případné dotazy rád odpovím telefonicky / emailem nebo se můžeme sejít na místě.
Pomocí naší hypoteční kalkulačky si můžete udělat orientační představu o výši měsíčních splátek hypotéky. O vše ostatní se pak postaráme my ve spolupráci s našimi obchodními partnery.
36 439 Kč
* Odhadovaná měsíční splátka vychází z výše úvěru Kč s pevnou úrokovou sazbou % po celou dobu trvání úvěru.
Uživatel serveru RealityMIX.cz (dále jen „Server“) dostupného na internetové adrese (URL) https://www.realitymix.cz, který provozuje společnost DALTEN media s.r.o., se sídlem Na Harfě 916/9a, Praha 9, 190 00, IČO: 271 35 306 (dále jen „Správce“) jako provozovateli tohoto Serveru uděluje svůj výslovný souhlas v souladu s ustanovením § 5 zákona č. 101/2000 Sb. O ochraně osobních údajů a o změně některých zákonů, v platném znění (dále jen „zákon o ochraně osobních údajů“), se zpracováním uživatelem poskytnutých osobních údajů a dalších dat.
Uživatel poskytuje Správci osobní údaje v rozsahu: jméno, příjmení, e-mailová adresa, telefonický kontakt a další data, a to z důvodu projeveného zájmu o nemovitost, kde prostřednictvím služby Serveru Správce osloví Uživatel inzerenta uvedeného v detailu
nemovitosti - Obchod s realitami.cz (IČ 23253932) se zájmem o jeho služby.
Uživatel tyto osobní údaje poskytuje dobrovolně a bere na vědomí, že součástí služeb Správce, které Správce Uživateli poskytuje, je vyhledání všech Uživateli vyhovujících (dle parametrů - cena, typ nemovitosti, lokalita atd.) nemovitostí. Správce za tímto účelem provozuje aplikace Hlídací pes a newsletter. Tyto služby je možné z každého zaslaného emailu odhlásit. Souhlas se zpracováním osobních údajů Uživatel poskytuje Správci na dobu neurčitou s tím, že svůj udělený souhlas může Uživatel kdykoliv na drese správce info@realitymix.cz odvolat. Správce garantuje Uživateli i další práva uvedené v ustanovení §11 a §21 zákoba č. 101/200 Sb. Ve znění pozdějších předpisů.
Více informací o zpracování údajů získáte zde (realitymix.cz/zasady-ochrany-osobnich-udaju)