Brněnec, Chrastová Lhota RD po kompletní rekonstrukci
NADĚLTE SI DÁREK POD STROMEČEK
Vaše cesta do přírody vede po silnici I. třídy z Brna do Svitav!
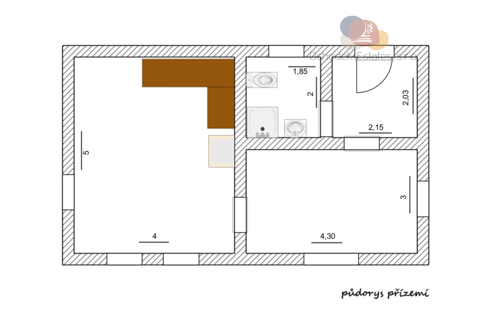
Tento domeček o dispozici 3+1 dostal ke svým stým narozeninám kompletní rekonstrukci. Z původního zůstaly vlastně jen základy, obvodové zdivo a hlavně genius loci vesnického domečku s klenbovým sklepem a dřevěným trámovým stropem.
Opravilo se tu opravdu vše na co si vzpomenete. Začněme s výčtem od sklepa, kde je vše vyčištěné, navezen nový makadam pro odvětrávání. V technické místnosti je elektrický kotel, který je využíván jako záložní zdroj tepla a nový bojler. V přízemí je prostorná předsíň, koupelna s WC, kuchyně a obývák. A právě tady vás na chvíli zastavím. Tady si zatopíte v krbu (10kW s výměníkem a rozvodem do celého domu i bojleru) a budete si užívat pohodu...
Odtud se po krásném dřevěném (jilm) schodišti dostanete do podkroví do ložnice a pokojíku.
Samozřejmě jsou tu i nová plastová okna s trojskly, kompletně udělané rozvody vody, odpadů i elektřiny, nové stropní trámoví s vyřezáváním dle původního vzhledu, celá nová střecha s pálenou taškou a zateplením 16-20cm minerální vatou. Dům je částečně zateplený 14cm polystyrenem, má novou fasádu.
Na pozemku ještě stále probíhají terénní úpravy. Potůček před domem je zatrubněný pro lepší příjezd i zaparkování, nad domem byla vytvořena suchá zídka pro vytvoření rovné terasy při vstupu z domu a je plánována úprava svažité zahrady a vytvoření kaskád pro lepší využití.
Už jsou hotové i stropy i podlahy. Než vám proběhne přepis na katastru, už si jen vyberete jakou si dáte krytinu v kuchyni a obýváku a jak bude vypadat kuchyňská linka.
Takže sbalit dva kufry a stěhujete se no nového, krásného, zrekonstruovaného, hotového!
Koupi tohoto domu vám doporučím pro kvalitu zpracování rekonstrukce, pro nádhernou přírodu okolo a pro velmi dobrou dostupnost do Brna i Svitav.
Tak zavolejte pro domluvení osobní prohlídky, budu se těšit na setkání.
David
Pozn.: Uvedená kupní cena je VČETNĚ zprostředkovatelského poplatku. Energetický štítek je zatím ve fázi zpracování, proto uvádíme třídu G. Předpoklad je C-D, doporučujeme doplnění FVE.
Pomocí naší hypoteční kalkulačky si můžete udělat orientační představu o výši měsíčních splátek hypotéky. O vše ostatní se pak postaráme my ve spolupráci s našimi obchodními partnery.
15 790 Kč
* Odhadovaná měsíční splátka vychází z výše úvěru Kč s pevnou úrokovou sazbou % po celou dobu trvání úvěru.
Uživatel serveru RealityMIX.cz (dále jen „Server“) dostupného na internetové adrese (URL) https://www.realitymix.cz, který provozuje společnost DALTEN media s.r.o., se sídlem Na Harfě 916/9a, Praha 9, 190 00, IČO: 271 35 306 (dále jen „Správce“) jako provozovateli tohoto Serveru uděluje svůj výslovný souhlas v souladu s ustanovením § 5 zákona č. 101/2000 Sb. O ochraně osobních údajů a o změně některých zákonů, v platném znění (dále jen „zákon o ochraně osobních údajů“), se zpracováním uživatelem poskytnutých osobních údajů a dalších dat.
Uživatel poskytuje Správci osobní údaje v rozsahu: jméno, příjmení, e-mailová adresa, telefonický kontakt a další data, a to z důvodu projeveného zájmu o nemovitost, kde prostřednictvím služby Serveru Správce osloví Uživatel inzerenta uvedeného v detailu
nemovitosti - Ochodek Estates s.r.o. (IČ 19934661) se zájmem o jeho služby.
Uživatel tyto osobní údaje poskytuje dobrovolně a bere na vědomí, že součástí služeb Správce, které Správce Uživateli poskytuje, je vyhledání všech Uživateli vyhovujících (dle parametrů - cena, typ nemovitosti, lokalita atd.) nemovitostí. Správce za tímto účelem provozuje aplikace Hlídací pes a newsletter. Tyto služby je možné z každého zaslaného emailu odhlásit. Souhlas se zpracováním osobních údajů Uživatel poskytuje Správci na dobu neurčitou s tím, že svůj udělený souhlas může Uživatel kdykoliv na drese správce info@realitymix.cz odvolat. Správce garantuje Uživateli i další práva uvedené v ustanovení §11 a §21 zákoba č. 101/200 Sb. Ve znění pozdějších předpisů.
Více informací o zpracování údajů získáte zde (realitymix.cz/zasady-ochrany-osobnich-udaju)