K dispozici skvělá investiční příležitost i prostorné rodinné bydlení v Brně. Tento unikátní byt o dispozici 6+2kk (aktuálně využívaný jako 5+kk a samostatná garsonka) nabízí obrovský potenciál díky své variabilitě a strategické poloze.
Technické parametry a stav bytu
Byt se nachází v revitalizovaném panelovém domě z roku, který prošel kvalitním zateplením a má novou střechu. Samotná jednotka prošla zásadní modernizací:
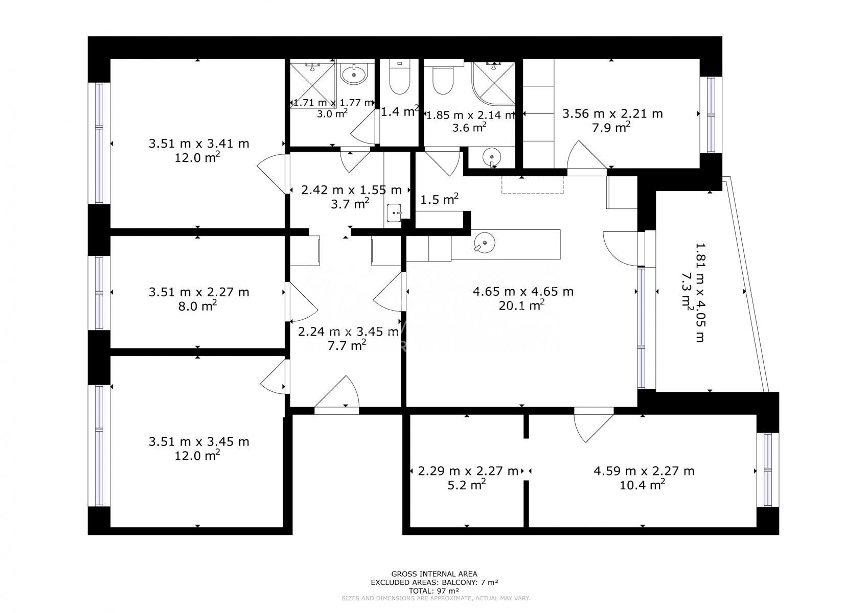
Výměra: 97 m and sup2; interiéru + 7 m and sup2; lodžie + 2 m and sup2; sklep.
Zděné jádro (2020): Nové rozvody a moderní koupelny.
Podlahy: Kvalitní vinyl v obývacím pokoji, praktická dlažba a lino v dalších částech.
Okna: Moderní plastová okna zajišťující skvělý tepelný komfort.
Flexibilní dispozice a investiční potenciál
Původní dispozice 5+1 byla chytře upravena. Aktuálně je prostor rozdělen na velkorysý byt 5+kk a přiléhající garsonku.
Pro rodinu: Možnost propojení do jednoho obrovského celku nebo využití garsonky pro dospívající dítě či jako kancelář.
Pro investory: Byt je ideální pro studentské bydlení. Díky počtu samostatných pokojů a dvěma kuchyňským koutům lze jednotku pronajímat po pokojích s velmi zajímavým výnosem.
Lokalita a dostupnost: Bořetická, Brno-Vinohrady
Dům se nachází na adrese Bořetická 4077, v klidné a vyhledávané části Brna s kompletní občanskou vybaveností.
Doprava do centra: Výborná dostupnost MHD. Trolejbusem nebo autobusem se dostanete do centra Brna (Hlavní nádraží) za cca 1520 minut.
Příroda a relax: Jen pár kroků od domu začínají zelené plochy a trasy pro procházky (např. CHKO Stránská skála nebo blízká Hády).
V okolí: Supermarkety, poliklinika, školy, školky a restaurace jsou v docházkové vzdálenosti. Parkování je možné v okolí domu.
Zaujala vás tato nabídka?
Tento byt kombinuje výhodu hotové rekonstrukce (zděné jádro, zateplení) s možností okamžitého pronájmu nebo pohodlného rodinného života.
Pomocí naší hypoteční kalkulačky si můžete udělat orientační představu o výši měsíčních splátek hypotéky. O vše ostatní se pak postaráme my ve spolupráci s našimi obchodními partnery.
38 422 Kč
* Odhadovaná měsíční splátka vychází z výše úvěru Kč s pevnou úrokovou sazbou % po celou dobu trvání úvěru.
Prodáváte nemovitost a potřebujete zjistit její reálnou hodnotu?
Uživatel serveru RealityMIX.cz (dále jen „Server“) dostupného na internetové adrese (URL) https://www.realitymix.cz, který provozuje společnost DALTEN media s.r.o., se sídlem Na Harfě 916/9a, Praha 9, 190 00, IČO: 271 35 306 (dále jen „Správce“) jako provozovateli tohoto Serveru uděluje svůj výslovný souhlas v souladu s ustanovením § 5 zákona č. 101/2000 Sb. O ochraně osobních údajů a o změně některých zákonů, v platném znění (dále jen „zákon o ochraně osobních údajů“), se zpracováním uživatelem poskytnutých osobních údajů a dalších dat.
Uživatel poskytuje Správci osobní údaje v rozsahu: jméno, příjmení, e-mailová adresa, telefonický kontakt a další data, a to z důvodu projeveného zájmu o nemovitost, kde prostřednictvím služby Serveru Správce osloví Uživatel inzerenta uvedeného v detailu
nemovitosti - QARA s.r.o. (IČ 01740113) se zájmem o jeho služby. Tato společnost je součástí seskupení/sítě/franšízového modelu realitních kanceláří, jejich seznam můžete zobrazit kliknutím na tento odkaz.
QARA s.r.o. Ostrava (IČ 01740113) , QARA s.r.o. Brno (IČ 01740113) , QARA s.r.o. (IČ 01740113)
Uživatel tyto osobní údaje poskytuje dobrovolně a bere na vědomí, že součástí služeb Správce, které Správce Uživateli poskytuje, je vyhledání všech Uživateli vyhovujících (dle parametrů - cena, typ nemovitosti, lokalita atd.) nemovitostí. Správce za tímto účelem provozuje aplikace Hlídací pes a newsletter. Tyto služby je možné z každého zaslaného emailu odhlásit. Souhlas se zpracováním osobních údajů Uživatel poskytuje Správci na dobu neurčitou s tím, že svůj udělený souhlas může Uživatel kdykoliv na drese správce info@realitymix.cz odvolat. Správce garantuje Uživateli i další práva uvedené v ustanovení §11 a §21 zákoba č. 101/200 Sb. Ve znění pozdějších předpisů.
Více informací o zpracování údajů získáte zde (realitymix.cz/zasady-ochrany-osobnich-udaju)