Kanceláře 95m2 Komárov, Konopná - blízko centra i dálnice
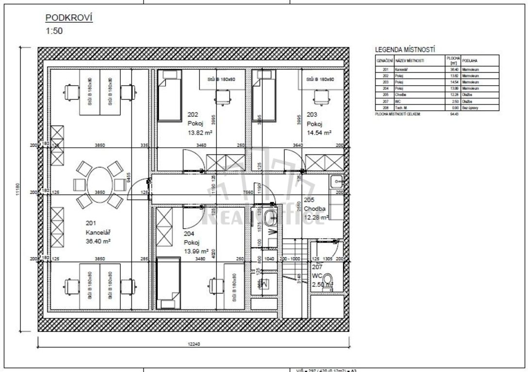
Nabízíme pronájem celého patra, tj. 4 klimatizovaných nezařízených místností se samostatnými vstupy o rozměrech 36m2, 14m2, 14m2, 14m2 a zázemí, tzn. celku o ploše cca 95 m2 v bezprostřední blízkosti centra města v lukrativní městské části Brno-Komárov na ulici Konopná.
Reprezentativní prostory se nachází ve 2.patře/2. (podkroví) cihlového zrekonstruovaného domu, který je celý využíván ke komerčním účelům. Společné prostory - chodba 12 m2, soc. zařízení 5 m2 (místnost s umyvadlem+sprchovým koutem a místnost s umyvadlem+WC). Prostory jsou orientovány do ulice i do dvora (v půdorysu č.201, 202, 203 a 204 - v této místnosti nyní také umyvadlo). V prostoru chodby je k dispozici kuchyňka s lednicí. Internet v ceně, wi-fi. Možnost parkování před domem. Dům střežen kamerovým systémem, otevírání vstupních dveří s kamerou. Prostory lze užívat pro klasickou kancelářskou/obchodní činnost, popř. i pro masáže, fyzioterapii a obdobné činnosti.
Měs. nájemné: 19.900 Kč + zál. na energie, (v případě plátců + DPH). Vratná kauce 1 nájem. Provize RK 1 nájem.
PENB nebyl zatím dodán, z legislativních důvodů uvádíme energ.tř. G.
V blízkosti je veškerá občanská vybavenost (pošta, restaurace, obchodní centrum, atd.). Výborná dostupnost na dálnici i do centra města (5-10min.). Volné ihned. Více info v RK.
Uživatel serveru RealityMIX.cz (dále jen „Server“) dostupného na internetové adrese (URL) https://www.realitymix.cz, který provozuje společnost DALTEN media s.r.o., se sídlem Na Harfě 916/9a, Praha 9, 190 00, IČO: 271 35 306 (dále jen „Správce“) jako provozovateli tohoto Serveru uděluje svůj výslovný souhlas v souladu s ustanovením § 5 zákona č. 101/2000 Sb. O ochraně osobních údajů a o změně některých zákonů, v platném znění (dále jen „zákon o ochraně osobních údajů“), se zpracováním uživatelem poskytnutých osobních údajů a dalších dat.
Uživatel poskytuje Správci osobní údaje v rozsahu: jméno, příjmení, e-mailová adresa, telefonický kontakt a další data, a to z důvodu projeveného zájmu o nemovitost, kde prostřednictvím služby Serveru Správce osloví Uživatel inzerenta uvedeného v detailu
nemovitosti - REAL OFFICE s.r.o. (IČ 27748561) se zájmem o jeho služby.
Uživatel tyto osobní údaje poskytuje dobrovolně a bere na vědomí, že součástí služeb Správce, které Správce Uživateli poskytuje, je vyhledání všech Uživateli vyhovujících (dle parametrů - cena, typ nemovitosti, lokalita atd.) nemovitostí. Správce za tímto účelem provozuje aplikace Hlídací pes a newsletter. Tyto služby je možné z každého zaslaného emailu odhlásit. Souhlas se zpracováním osobních údajů Uživatel poskytuje Správci na dobu neurčitou s tím, že svůj udělený souhlas může Uživatel kdykoliv na drese správce info@realitymix.cz odvolat. Správce garantuje Uživateli i další práva uvedené v ustanovení §11 a §21 zákoba č. 101/200 Sb. Ve znění pozdějších předpisů.
Více informací o zpracování údajů získáte zde (realitymix.cz/zasady-ochrany-osobnich-udaju)