Nabízíme k podnájmu jednotku R3.121 o celkové výměře 19,95 m2, která je k dispozici ihned. K dispozici je ve stejném komplexu několik jednotek ve velikosti 1+kk, 2+kk a 2+1 pro 2 až 4 osoby.
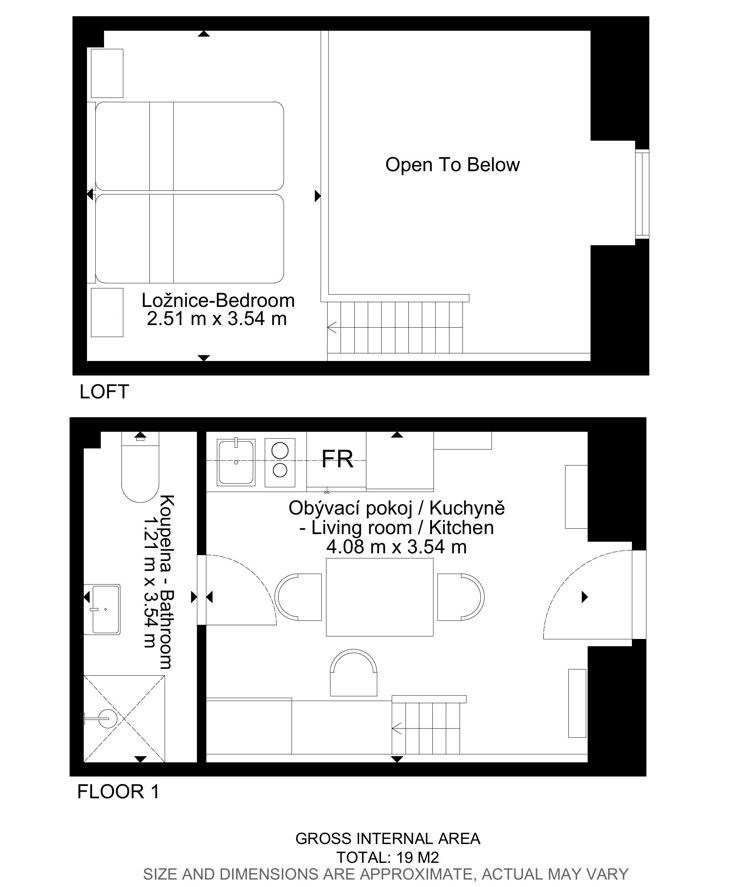
Jedná se o podnájem kompletně vybavené jednotky o dispozici 1+kk v nově zrekonstruovaném domě. Součástí vybavení kuchyně je plně zařízený kuchyňský kout, včetně lednice, mikrovlnné trouby, sklokeramické desky, digestoře a dřezu. Jednotka je vybavena dvěma pracovními stoly s židlemi, mezonetovým spaním s nočním stolkem a dostatečným prostorem na ukládání oblečení. Koupelna je také plně vybavená, a to sprchovým koutem, záchodem a umyvadlem se zrcadlem. K dispozici je příprava pro připojení vlastní pračky.
Benefity pro podnájemníky:
internetové připojení v jednotce k dispozici
zvýhodněná cena za parkování 1 690 Kč měsíčně
venkovní relax zóna vč. posezení, grilu, pingpongu
venkovní posilovna (zdarma) a vnitřní posilovna (placená)
nemáme nevrlé sousedy
Jednotky se nachází v lukrativní oblasti v bezprostřední blízkosti centra Brna. Samotné centrum Brna je dostupné v pěší vzdálenosti. V těsné blízkosti se nachází dva z největších dopravních uzlů v Brně – Mendlovo náměstí, které Vám zajistí bezproblémové spojení na brněnské univerzity a Hlavní nádraží, které Vám zajistí spojení po celém Brně. Jedná se o lokalitu, kde se zdržuje mnoho mladých lidí. V okolí se nachází několik obchodů, restaurací, barů, posiloven a ostatních služeb.
Jednotka je vhodná k různým účelům. Majitel si vyhrazuje právo vybrat si podnájemníka na základě vlastních požadavků.
Součástí inzerátu je videoprohlídka sousední totožné jednotky.
O aktuální dostupnosti a podmínkách Vás budeme rádi informovat.
Rádi se s Vámi setkáme na osobní prohlídce.
Cena:
15 900 Kč / (za měsíc)
Poznámka:
+ 4 420 na energie, poplatky a služby + vratná kauce + administrativní poplatek
Datum k nastěhování:
28.04.2026
Dispozice/podlahová plocha:
1+kk/20 m²
Číslo zakázky:
REALITYMIX-R3.121
Podrobné informace
Dispozice bytu:1+kk
Číslo podlaží v domě:1
Počet podlaží objektu:3
Celková podlahová plocha:20 m²
Druh objektu:cihlová
Stav objektu:velmi dobrý
Vlastnictví:jiné
Vybaveno:ano
Doprava:vlak, dálnice, silnice, MHD
Elektřina:Elektro - 230 V
Voda:Zdroj pro celý objekt, Voda - dálkový vodovod
Uživatel serveru RealityMIX.cz (dále jen „Server“) dostupného na internetové adrese (URL) https://www.realitymix.cz, který provozuje společnost DALTEN media s.r.o., se sídlem Na Harfě 916/9a, Praha 9, 190 00, IČO: 271 35 306 (dále jen „Správce“) jako provozovateli tohoto Serveru uděluje svůj výslovný souhlas v souladu s ustanovením § 5 zákona č. 101/2000 Sb. O ochraně osobních údajů a o změně některých zákonů, v platném znění (dále jen „zákon o ochraně osobních údajů“), se zpracováním uživatelem poskytnutých osobních údajů a dalších dat.
Uživatel poskytuje Správci osobní údaje v rozsahu: jméno, příjmení, e-mailová adresa, telefonický kontakt a další data, a to z důvodu projeveného zájmu o nemovitost, kde prostřednictvím služby Serveru Správce osloví Uživatel inzerenta uvedeného v detailu
nemovitosti - Icbreality s.r.o. (IČ 02710943) se zájmem o jeho služby.
Uživatel tyto osobní údaje poskytuje dobrovolně a bere na vědomí, že součástí služeb Správce, které Správce Uživateli poskytuje, je vyhledání všech Uživateli vyhovujících (dle parametrů - cena, typ nemovitosti, lokalita atd.) nemovitostí. Správce za tímto účelem provozuje aplikace Hlídací pes a newsletter. Tyto služby je možné z každého zaslaného emailu odhlásit. Souhlas se zpracováním osobních údajů Uživatel poskytuje Správci na dobu neurčitou s tím, že svůj udělený souhlas může Uživatel kdykoliv na drese správce info@realitymix.cz odvolat. Správce garantuje Uživateli i další práva uvedené v ustanovení §11 a §21 zákoba č. 101/200 Sb. Ve znění pozdějších předpisů.
Více informací o zpracování údajů získáte zde (realitymix.cz/zasady-ochrany-osobnich-udaju)