Prodej administrativní budovy 559,3 m² + garáž, Brno, ul. Míčkova
Nabízíme k prodeji administrativní budovu ve vyhledávané brněnské lokalitě, na pomezí Černých Polí a Husovic na ul. Míčkova. Jedná se o 4 podlažní rohový objekt. Součástí prodeje je jedno garážové stání a pozemek za garáží.
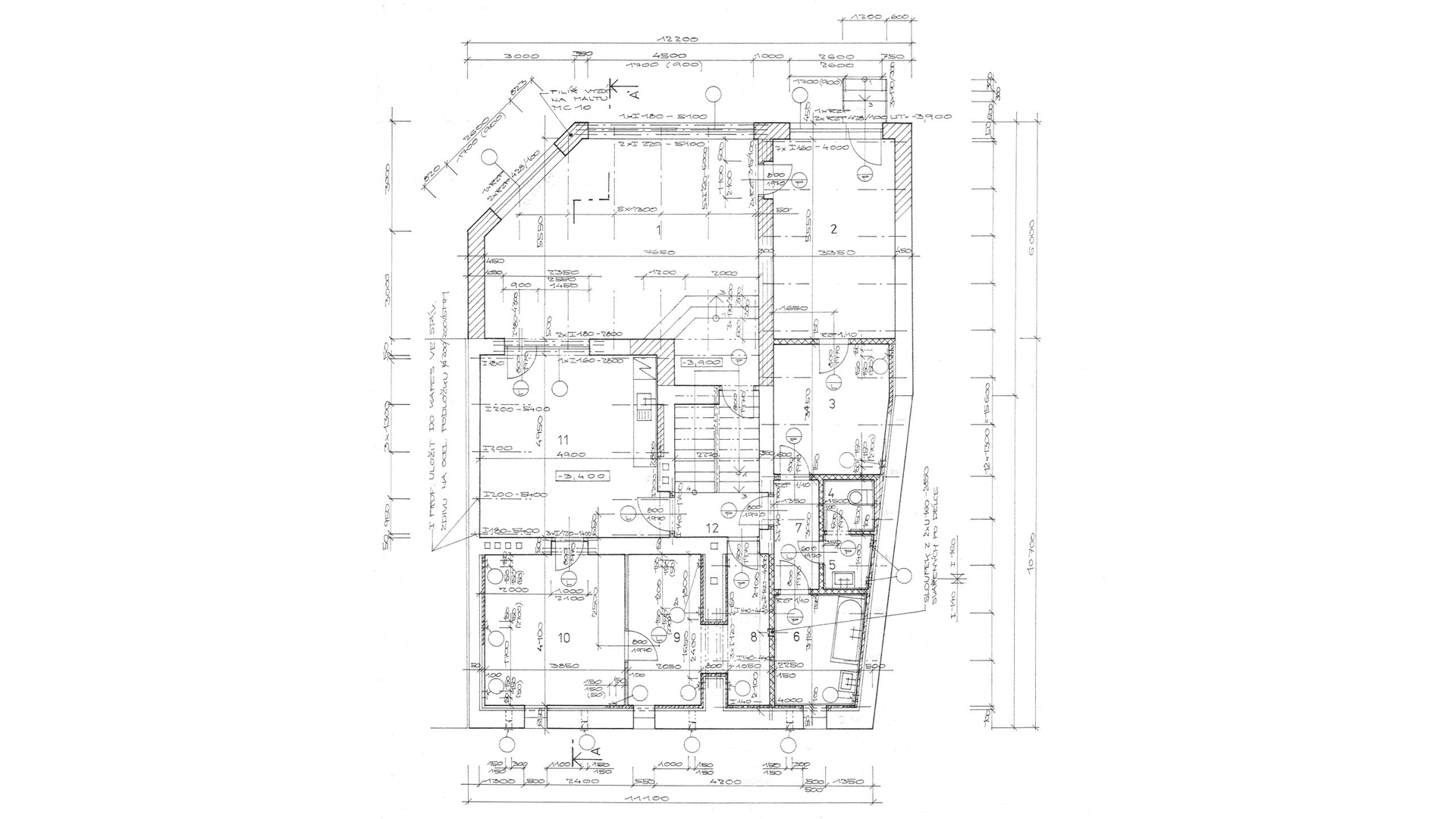
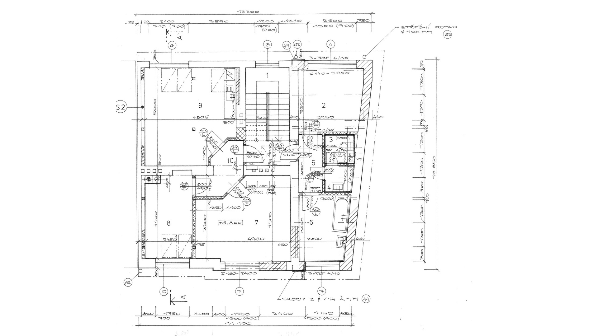
Zastavěná plocha: 233 m² + 20 m² garáž (vč. 1/10 podílu na zahradě 641 m2 za garáží)
Celková užitná plocha nemovitosti: 559,35 m²
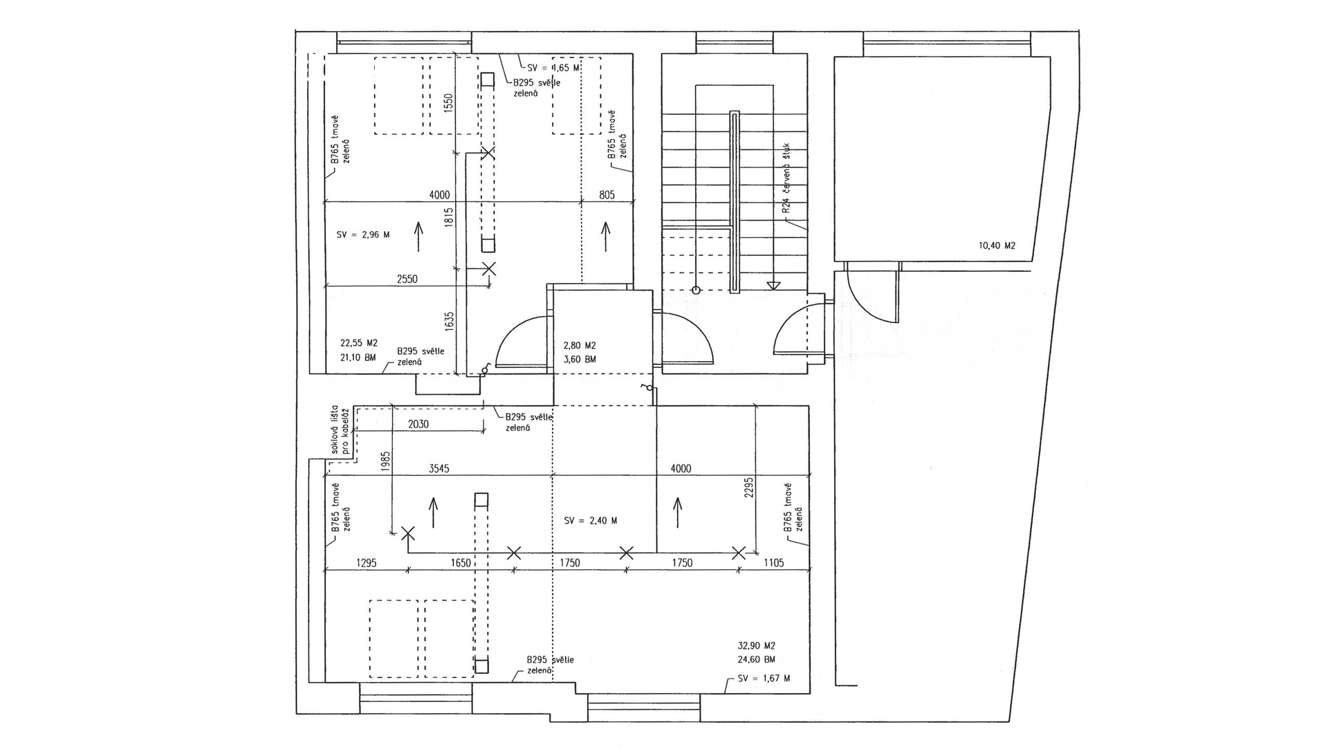
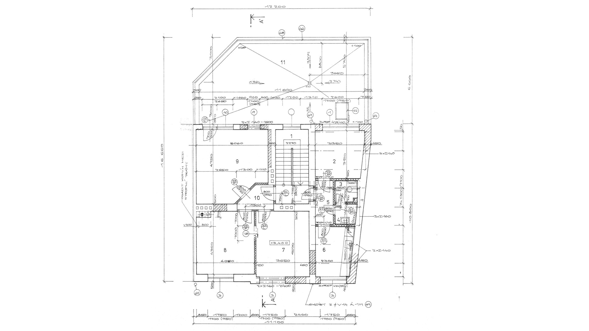
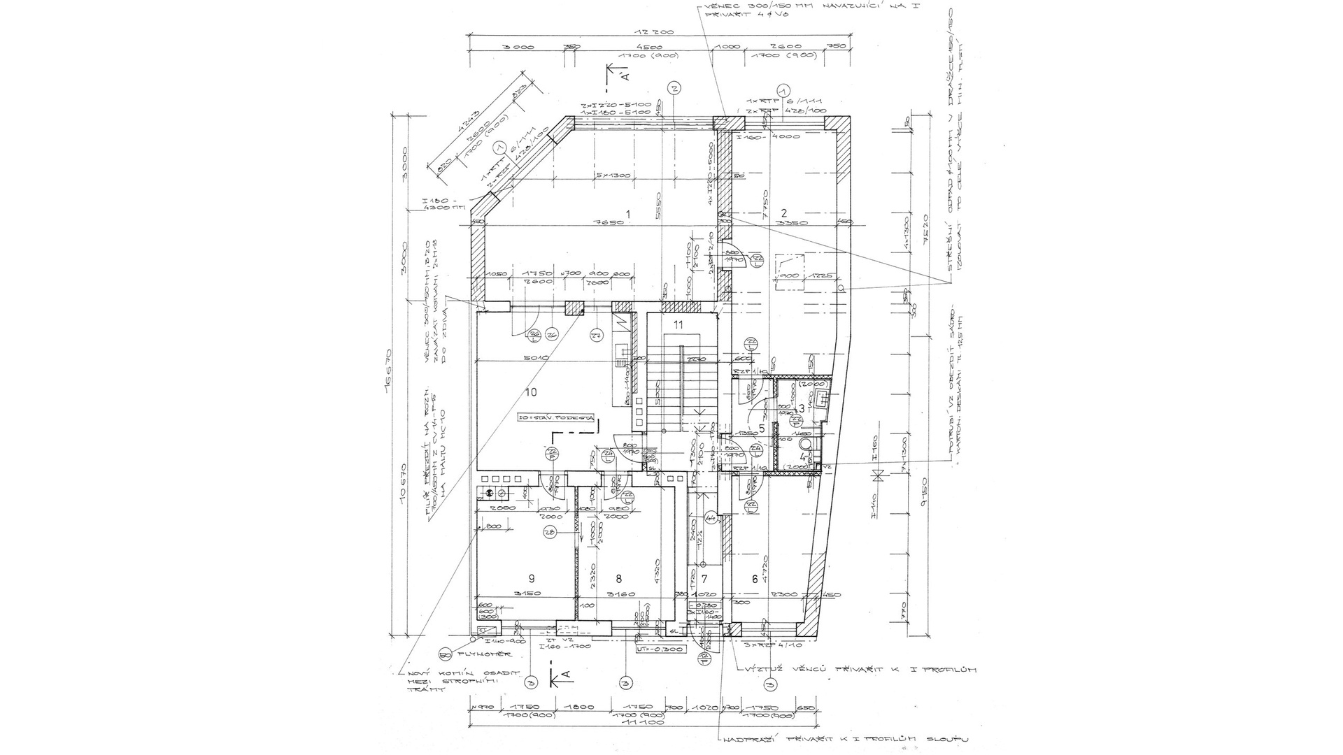
1.PP – 153,34 m2 – jedná se o plnohodnotné podlaží - nemovitost ve svahu (zasedačka, kanceláře, koupelna, kuchyňka, technická místnost, trezorová místnost, schodiště výstup na cca 10 m2 zahradu,)
1.NP – 147,02 m2 – (kanceláře, kuchyňka, WC, chodba, schodiště)
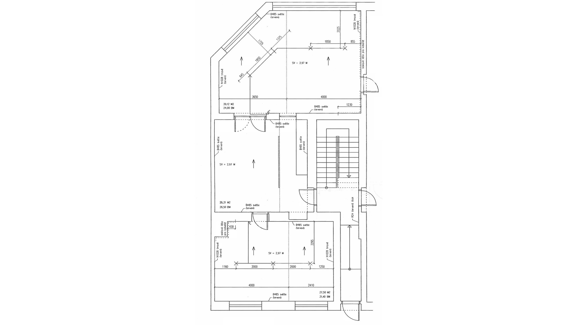
2.NP – 100,99 m2 kanceláře, kuchyňka, WC, schodiště + 61,62 m2 terasa s překrásným výhledem na Brno
3.NP – 96,38 m2 – podkrovní kanceláře, serverovna, schodiště
Nemovitost byla postavena v roce 1947 jako rodinný dům, je v průběžně udržovaném stavu, v roce 1995 byla provedena celková rekonstrukce domu včetně přístavby 1.PP a 1.NP směrem do zahrady a vybudování nového užitného podkroví. Dispozice umožňují zpětné přebudování na bydlení.
Průkaz energetické náročnosti budovy nebyl zpracován, proto uvádíme kategorii G.
Bližší informace rádi poskytneme v naší realitní kanceláři.
Pomocí naší hypoteční kalkulačky si můžete udělat orientační představu o výši měsíčních splátek hypotéky. O vše ostatní se pak postaráme my ve spolupráci s našimi obchodními partnery.
113 364 Kč
* Odhadovaná měsíční splátka vychází z výše úvěru Kč s pevnou úrokovou sazbou % po celou dobu trvání úvěru.
Uživatel serveru RealityMIX.cz (dále jen „Server“) dostupného na internetové adrese (URL) https://www.realitymix.cz, který provozuje společnost DALTEN media s.r.o., se sídlem Na Harfě 916/9a, Praha 9, 190 00, IČO: 271 35 306 (dále jen „Správce“) jako provozovateli tohoto Serveru uděluje svůj výslovný souhlas v souladu s ustanovením § 5 zákona č. 101/2000 Sb. O ochraně osobních údajů a o změně některých zákonů, v platném znění (dále jen „zákon o ochraně osobních údajů“), se zpracováním uživatelem poskytnutých osobních údajů a dalších dat.
Uživatel poskytuje Správci osobní údaje v rozsahu: jméno, příjmení, e-mailová adresa, telefonický kontakt a další data, a to z důvodu projeveného zájmu o nemovitost, kde prostřednictvím služby Serveru Správce osloví Uživatel inzerenta uvedeného v detailu
nemovitosti - REAL SPEKTRUM, a.s. (IČ 25314718) se zájmem o jeho služby.
Uživatel tyto osobní údaje poskytuje dobrovolně a bere na vědomí, že součástí služeb Správce, které Správce Uživateli poskytuje, je vyhledání všech Uživateli vyhovujících (dle parametrů - cena, typ nemovitosti, lokalita atd.) nemovitostí. Správce za tímto účelem provozuje aplikace Hlídací pes a newsletter. Tyto služby je možné z každého zaslaného emailu odhlásit. Souhlas se zpracováním osobních údajů Uživatel poskytuje Správci na dobu neurčitou s tím, že svůj udělený souhlas může Uživatel kdykoliv na drese správce info@realitymix.cz odvolat. Správce garantuje Uživateli i další práva uvedené v ustanovení §11 a §21 zákoba č. 101/200 Sb. Ve znění pozdějších předpisů.
Více informací o zpracování údajů získáte zde (realitymix.cz/zasady-ochrany-osobnich-udaju)