Skvělá investiční příležitost. Exkluzivně nabízíme k prodeji byt 2+1 na ulici Rybářská. Byty se zde snadno pronajímají, jak dlouhodobě, tak i krátkodobě. Poptávka je trvale vysoká díky blízkosti brněnského výstaviště. Návratnost investice do bytu v této části města je velmi dobrá a obsazenost nájemního bydlení zde dosahuje téměř 100 %.
Jedná se o byt 2+1 o výměře 55,40 m², včetně balkonu a sklepa. Byt je v původním stavu, staří budovy zhruba 60 let. Jednotka se nachází v 1. patře budovy, v přízemí se nachází sklepy, popelnice a také zadní vchod, který ústí do vnitrobloku s parkem a vzrostlou zelení. Předností tohoto bytu jsou dřevěné parkety v obou pokojích, které po renovaci mohou dále sloužit novému majiteli.
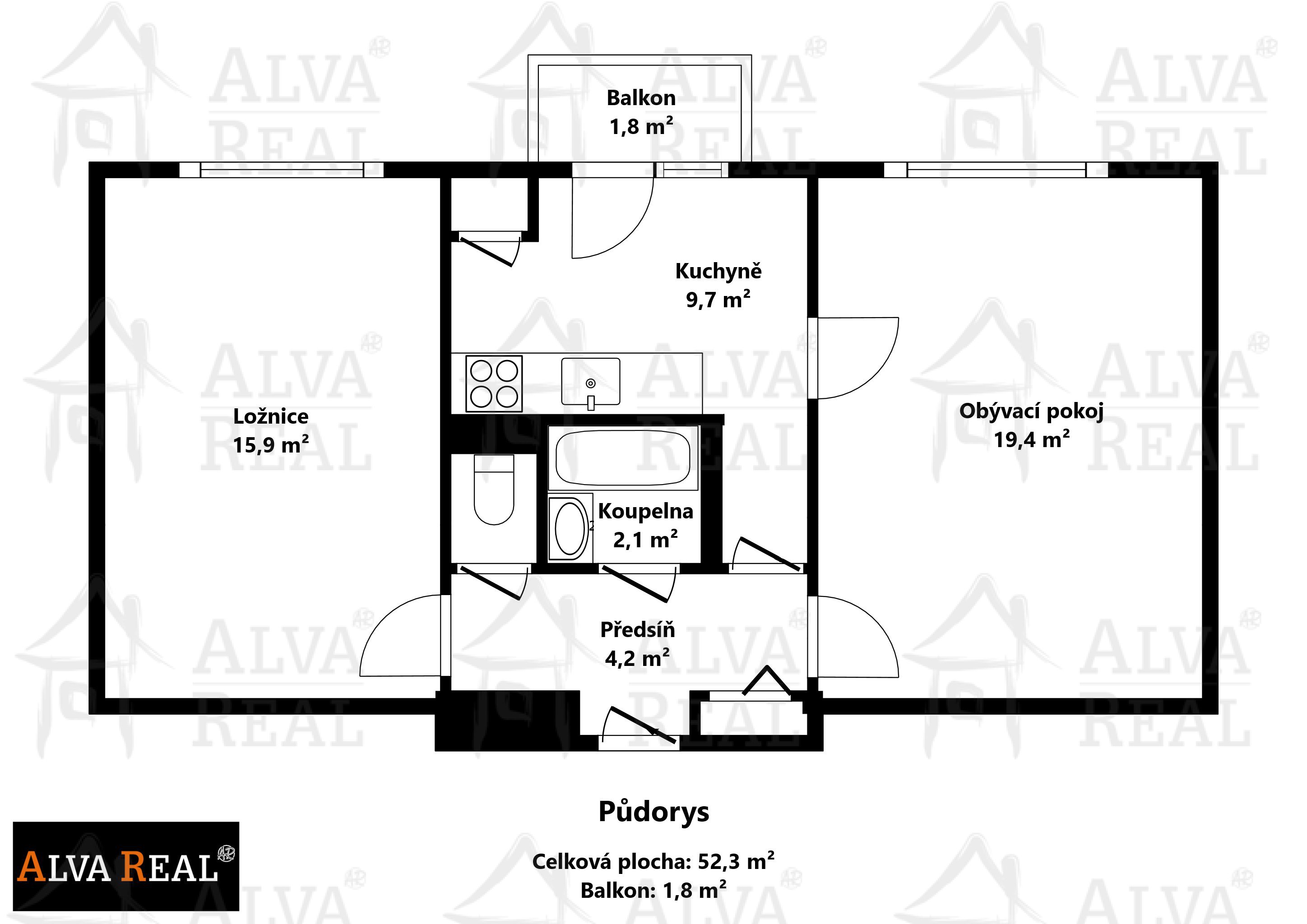
Dispozice: Obývací pokoj 19,4 m²; ložnice 15,9 m²; kuchyně 9,7 m²; koupelna 2,1 m²; WC 1 m²; předsíň 4,2 m²; balkon 1,8 m². K bytu náleží sklep, který se nachází v přízemí budovy o výměře 1,3 m².
Celkové měsíční náklady jsou cca 5.000 Kč včetně elektřiny v bytě. Plyn v bytě v současné chvíli odpojen.
Ulice Rybářská v Brně je skvělou volbou pro všechny, kteří hledají klidné bydlení v dobře dostupné části města. Nabízí pohodlí rezidenční čtvrti s výborným spojením do centra, které je vzdálené jen pár minut chůze či jízdy MHD. V okolí je vše potřebné – obchody, kavárny, restaurace, zdravotnické služby i zastávky městské dopravy.
Tato lokalita potěší také milovníky aktivního životního stylu. V blízkosti najdete dostatek zeleně, sportovišť a jako bonus i nově otevřenou náplavku u Svratky, která se rychle stala oblíbeným místem pro relax i setkávání. Rybářská je oblíbená mezi studenty, pracujícími i rodinami, a to díky bezpečí, kompletní občanské vybavenosti a příjemné atmosféře.
Pokud toužíte po místě, které kombinuje skvělou dostupnost, pohodlí a klidné prostředí, bydlení na Rybářské je ideální volbou.
V případě zájmu o prohlídku, kontaktujte makléře.
Cena:
Prodáno
Dispozice/podlahová plocha:
2+1/55 m²
Číslo zakázky:
REALITYMIX-723531
Podrobné informace
Dispozice bytu:2+1
Číslo podlaží v domě:2
Počet podlaží objektu:7
Užitná plocha:52 m²
Celková podlahová plocha:55 m²
Druh objektu:cihlová
Stav objektu:velmi dobrý
Vlastnictví:osobní
Druh bytu:V panelovém domě
Balkon:1 m²
Sklep:1 m²
Umístění objektu:centrum obce
Doprava:silnice, MHD, autobus
Občanská vybavenost:Škola, Školka, Zdravotnická zařízení, Pošta, Supermarket, Kompletní síť obchodů a služeb
Elektřina:Elektro - 230 V
Voda:Voda - dálkový vodovod, Voda - rozvod studené a teplé vody
Uživatel serveru RealityMIX.cz (dále jen „Server“) dostupného na internetové adrese (URL) https://www.realitymix.cz, který provozuje společnost DALTEN media s.r.o., se sídlem Na Harfě 916/9a, Praha 9, 190 00, IČO: 271 35 306 (dále jen „Správce“) jako provozovateli tohoto Serveru uděluje svůj výslovný souhlas v souladu s ustanovením § 5 zákona č. 101/2000 Sb. O ochraně osobních údajů a o změně některých zákonů, v platném znění (dále jen „zákon o ochraně osobních údajů“), se zpracováním uživatelem poskytnutých osobních údajů a dalších dat.
Uživatel poskytuje Správci osobní údaje v rozsahu: jméno, příjmení, e-mailová adresa, telefonický kontakt a další data, a to z důvodu projeveného zájmu o nemovitost, kde prostřednictvím služby Serveru Správce osloví Uživatel inzerenta uvedeného v detailu
nemovitosti - ALVA REAL s.r.o. (IČ 25505882) se zájmem o jeho služby.
Uživatel tyto osobní údaje poskytuje dobrovolně a bere na vědomí, že součástí služeb Správce, které Správce Uživateli poskytuje, je vyhledání všech Uživateli vyhovujících (dle parametrů - cena, typ nemovitosti, lokalita atd.) nemovitostí. Správce za tímto účelem provozuje aplikace Hlídací pes a newsletter. Tyto služby je možné z každého zaslaného emailu odhlásit. Souhlas se zpracováním osobních údajů Uživatel poskytuje Správci na dobu neurčitou s tím, že svůj udělený souhlas může Uživatel kdykoliv na drese správce info@realitymix.cz odvolat. Správce garantuje Uživateli i další práva uvedené v ustanovení §11 a §21 zákoba č. 101/200 Sb. Ve znění pozdějších předpisů.
Více informací o zpracování údajů získáte zde (realitymix.cz/zasady-ochrany-osobnich-udaju)