Hledáte byt, kde si můžete vše vytvořit přesně podle sebe? Místo, které nabídne prostor, potenciál a skvělou adresu?
Pak vás tento byt na ulici Marie Majerové rozhodně zaujme.
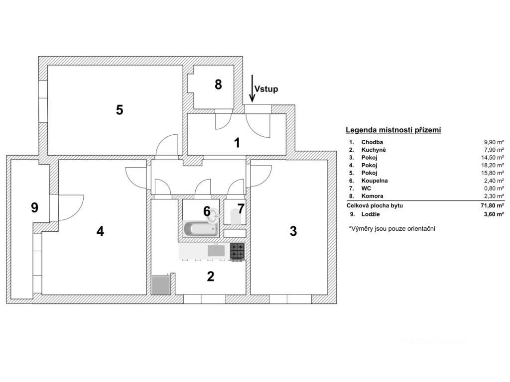
Nabízíme ke koupi prostorný a zajímavě řešený byt 3+1 o užitné ploše 72 m², který je určen ke kompletní rekonstrukci – ideální příležitost pro ty, kteří chtějí proměnit byt ve vysněné bydlení nebo výhodnou investici.
Byt disponuje lodžií o velikosti 3,6 m², která příjemně rozšiřuje obytný prostor, a nechybí ani sklep, praktický pro uskladnění věcí. Díky dispozici 3+1 nabízí byt dostatek prostoru pro rodinné bydlení, práci z domova i moderní otevřenou přestavbu dle vlastních představ.
Velkým benefitem je také možnost dokoupení krytého parkovacího stání, což je v Brně velmi cenný komfort.
Dispozice a výměry:
- dispozice: 3+1
- užitná plocha: 72 m²
- lodžie: 3,6 m²
- sklep: 2,65 m²
- stav: ke kompletní rekonstrukci
Lokalita:
Ulice Marie Majerové nabízí klidné bydlení s dobrou dostupností do centra města, občanskou vybavenost v dosahu a příjemné okolí pro každodenní život.
Tento byt je ideální volbou pro ty, kteří hledají prostor, lokalitu a možnost vytvořit si domov podle vlastních snů – bez kompromisů.
Pro více informací nebo domluvení prohlídky mě neváhejte kontaktovat.
Tahle nemovitost má obrovský potenciál – stačí ho jen objevit.
Pomocí naší hypoteční kalkulačky si můžete udělat orientační představu o výši měsíčních splátek hypotéky. O vše ostatní se pak postaráme my ve spolupráci s našimi obchodními partnery.
31 540 Kč
* Odhadovaná měsíční splátka vychází z výše úvěru Kč s pevnou úrokovou sazbou % po celou dobu trvání úvěru.
Prodáváte nemovitost a potřebujete zjistit její reálnou hodnotu?
Uživatel serveru RealityMIX.cz (dále jen „Server“) dostupného na internetové adrese (URL) https://www.realitymix.cz, který provozuje společnost DALTEN media s.r.o., se sídlem Na Harfě 916/9a, Praha 9, 190 00, IČO: 271 35 306 (dále jen „Správce“) jako provozovateli tohoto Serveru uděluje svůj výslovný souhlas v souladu s ustanovením § 5 zákona č. 101/2000 Sb. O ochraně osobních údajů a o změně některých zákonů, v platném znění (dále jen „zákon o ochraně osobních údajů“), se zpracováním uživatelem poskytnutých osobních údajů a dalších dat.
Uživatel poskytuje Správci osobní údaje v rozsahu: jméno, příjmení, e-mailová adresa, telefonický kontakt a další data, a to z důvodu projeveného zájmu o nemovitost, kde prostřednictvím služby Serveru Správce osloví Uživatel inzerenta uvedeného v detailu
nemovitosti - Nemovision reality s.r.o. (IČ 08351538) se zájmem o jeho služby.
Uživatel tyto osobní údaje poskytuje dobrovolně a bere na vědomí, že součástí služeb Správce, které Správce Uživateli poskytuje, je vyhledání všech Uživateli vyhovujících (dle parametrů - cena, typ nemovitosti, lokalita atd.) nemovitostí. Správce za tímto účelem provozuje aplikace Hlídací pes a newsletter. Tyto služby je možné z každého zaslaného emailu odhlásit. Souhlas se zpracováním osobních údajů Uživatel poskytuje Správci na dobu neurčitou s tím, že svůj udělený souhlas může Uživatel kdykoliv na drese správce info@realitymix.cz odvolat. Správce garantuje Uživateli i další práva uvedené v ustanovení §11 a §21 zákoba č. 101/200 Sb. Ve znění pozdějších předpisů.
Více informací o zpracování údajů získáte zde (realitymix.cz/zasady-ochrany-osobnich-udaju)