Prodej bytu 3+1, 79 m² Slovinská, Brno - Královo Pole,
Světlý byt 3+1 s velkými okny v atraktivní lokalitě Králova Pole, jen pár kroků od Slovanského náměstí.
Bydlení v jedné z TOP brněnských lokalit, kde máte vše po ruce a zároveň si můžete kdykoli odpočinout v příjemné zeleni na Slovaňáku.
Skvělým benefitem je možnost využívat zahradu ve vnitrobloku (k bytu náleží podíl na zahradě za domem) – pro odpočinek, posezení nebo hraní dětí.
Byt se nachází ve 4. nadzemním podlaží a jeho celková užitná plocha je 79 m² včetně zděného sklepa 8,4 m2. Díky velkým oknům a orientaci na východ i západ působí celý prostor světlým a vzdušným dojmem.
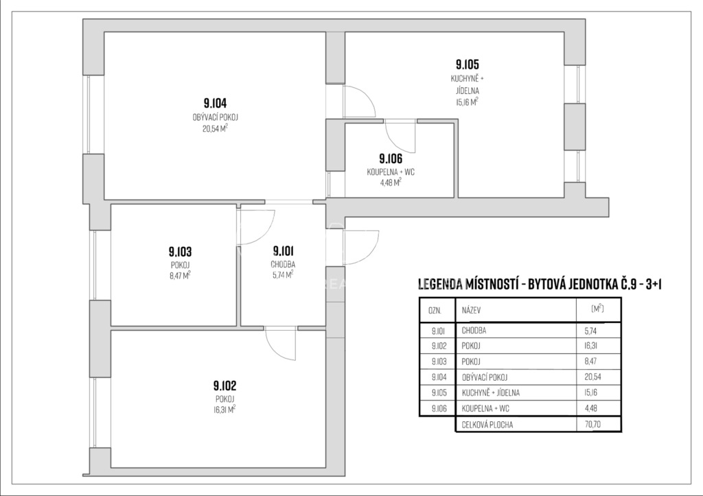
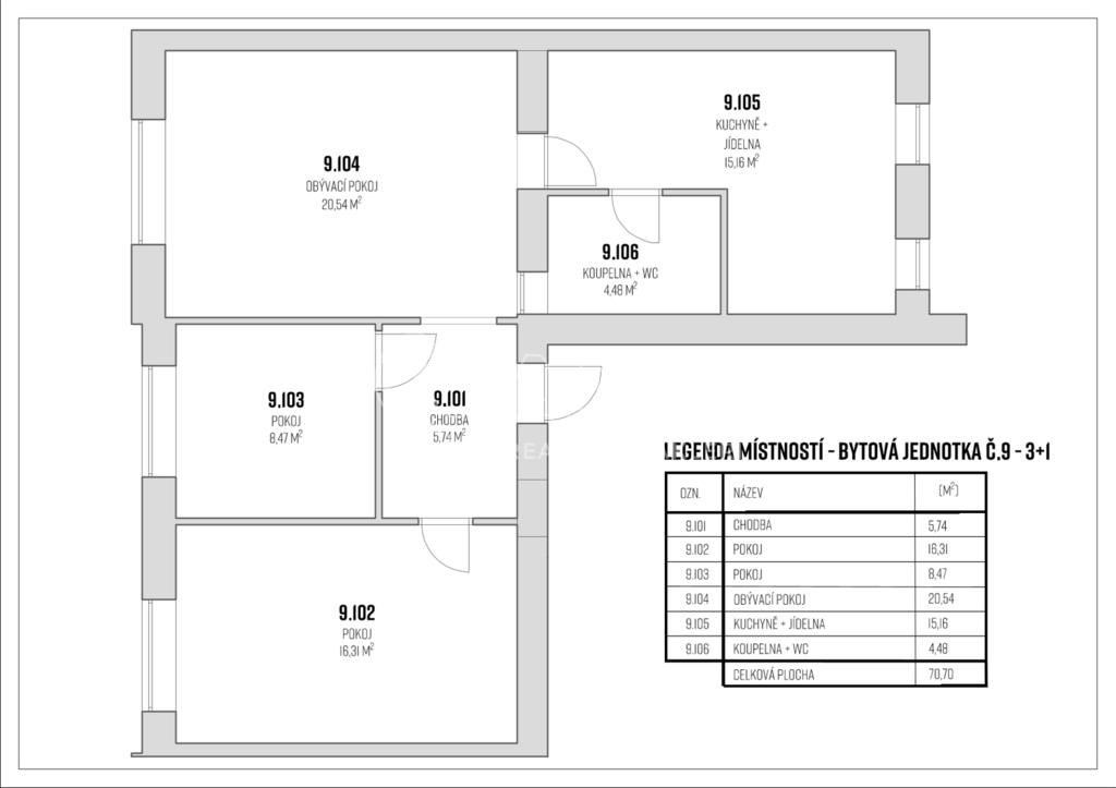
Dispozice bytu
Byt nabízí funkční uspořádání ideální pro rodinu i pár, kteří ocení dostatek prostoru i klidné zázemí.
• Obývací pokoj (20,54 m²) – prostorný a přirozeně prosvětlený, východní orientace
• Pokoj (16,31 m²) – dostatek místa pro velkou postel i šatní skříně, východní orientace
• Pokoj (8,47 m²) – ideální jako dětský pokoj či pracovna, východní orientace
• Jídelna s kuchyní (15,16 m²) – orientovaná na západ směrem do vnitrobloku a zahrady
• Koupelna s vanou a toaletou (4,48 m²)
• Chodba (5,74 m²) – účelná vstupní zóna
Uvedené výměry jsou pouze orientační
Balkony jsou umístěné zezadu domu s výhledem do zahrady a jsou přístupné ze společného schodiště.
Vytápění je řešeno vlastním plynovým kotlem, což přináší kontrolu nad náklady i tepelnou pohodou.
Aktuálně probíhá vyhotovení prohlášení vlastníka s vymezením jednotek.
PENB bude nově dodáno (prozatím uvedena třída G).
Lokalita
Královo Pole patří dlouhodobě k nejvyhledávanějším částem Brna díky skvělé dostupnosti, zeleni a kompletní občanské vybavenosti. Jde o lokalitu, kde si nemovitosti drží hodnotu a stabilně rostou.
V pěší vzdálenosti najdete obchody, kavárny, restaurace, základní školu, gymnázium, mateřskou školu, sportoviště a samozřejmě MHD.
Pomocí naší hypoteční kalkulačky si můžete udělat orientační představu o výši měsíčních splátek hypotéky. O vše ostatní se pak postaráme my ve spolupráci s našimi obchodními partnery.
33 483 Kč
* Odhadovaná měsíční splátka vychází z výše úvěru Kč s pevnou úrokovou sazbou % po celou dobu trvání úvěru.
Prodáváte nemovitost a potřebujete zjistit její reálnou hodnotu?
Uživatel serveru RealityMIX.cz (dále jen „Server“) dostupného na internetové adrese (URL) https://www.realitymix.cz, který provozuje společnost DALTEN media s.r.o., se sídlem Na Harfě 916/9a, Praha 9, 190 00, IČO: 271 35 306 (dále jen „Správce“) jako provozovateli tohoto Serveru uděluje svůj výslovný souhlas v souladu s ustanovením § 5 zákona č. 101/2000 Sb. O ochraně osobních údajů a o změně některých zákonů, v platném znění (dále jen „zákon o ochraně osobních údajů“), se zpracováním uživatelem poskytnutých osobních údajů a dalších dat.
Uživatel poskytuje Správci osobní údaje v rozsahu: jméno, příjmení, e-mailová adresa, telefonický kontakt a další data, a to z důvodu projeveného zájmu o nemovitost, kde prostřednictvím služby Serveru Správce osloví Uživatel inzerenta uvedeného v detailu
nemovitosti - QARA s.r.o. (IČ 01740113) se zájmem o jeho služby. Tato společnost je součástí seskupení/sítě/franšízového modelu realitních kanceláří, jejich seznam můžete zobrazit kliknutím na tento odkaz.
QARA s.r.o. Ostrava (IČ 01740113) , QARA s.r.o. Brno (IČ 01740113) , QARA s.r.o. (IČ 01740113)
Uživatel tyto osobní údaje poskytuje dobrovolně a bere na vědomí, že součástí služeb Správce, které Správce Uživateli poskytuje, je vyhledání všech Uživateli vyhovujících (dle parametrů - cena, typ nemovitosti, lokalita atd.) nemovitostí. Správce za tímto účelem provozuje aplikace Hlídací pes a newsletter. Tyto služby je možné z každého zaslaného emailu odhlásit. Souhlas se zpracováním osobních údajů Uživatel poskytuje Správci na dobu neurčitou s tím, že svůj udělený souhlas může Uživatel kdykoliv na drese správce info@realitymix.cz odvolat. Správce garantuje Uživateli i další práva uvedené v ustanovení §11 a §21 zákoba č. 101/200 Sb. Ve znění pozdějších předpisů.
Více informací o zpracování údajů získáte zde (realitymix.cz/zasady-ochrany-osobnich-udaju)