Prodej bytu 3+1 s balkonem v bytovém domě na ulici Krásného v Brně - Juliánově.
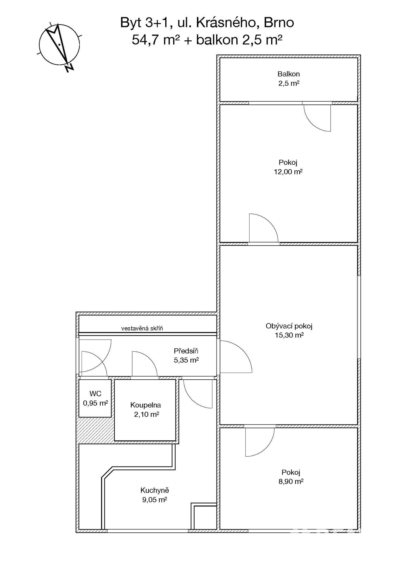
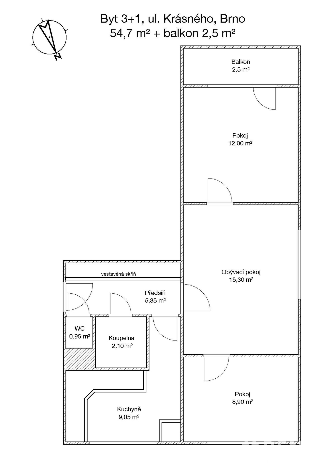
Nabízíme ke koupi byt v osobním vlastnictví o dispozici 3+1, který je umístěný ve 4. patře panelového bytového domu s výtahem na ul. Krásného v Brně - Juliánově v blízkosti lesoparku Bílá hora. Celková podlahová plocha bytu včetně příslušenství činí 54,7 m2 + balkon 2,5 m2. K bytu náleží sklepní box a dále je možné využívat společnou kolárnu a sušárnu v přízemí domu.
Z předsíně bytu je možné vstoupit do kuchyně (8,7 m2), obývacího pokoje (15,3 m2), do koupelny a na toaletu. Z obývacího pokoje jsou přístupné dvě ložnice (12 m2 a 8,9 m2). K větší z nich přiléhá balkon s hezkým výhledem, orientovaný jižním směrem. Byt je díky své poloze velmi dobře osvětlen.
Byt je po kompletní rekonstrukci, byla provedena nová elektroinstalace, vyměněna okna za plastová, instalovány bezpečnostní vstupní dveře a vnitřní dveře. Byt je vybaven kuchyňskou linkou s plynovou varnou deskou, elektrickou troubou, myčkou, digestoří a mikrovlnnou troubou, vestavěnou šatní skříní v předsíni a horizontálními žaluziemi v oknech. Koupelna je vybavena vanou, umyvadlem se skříňkou a zrcadlem. Toaleta je umístěna samostatně.
Měsíční zálohové platby za služby spojené s užíváním bytu (voda, teplo, fond oprav, společné výdaje domu) činí pro dvě osoby 6.118,- Kč za měsíc. Dále je hrazena spotřeba elektřiny a plynu cca 1.000,-Kč za měsíc. V bytě jsou instalovány veškeré měřiče energií.
Dům, ve kterém se byt nachází, prošel celkovou opravou a revitalizací. Společenství vlastníků jednotek nesplácí žádný úvěr.
Dům je situován v klidné části Juliánova, v blízkosti domu je zastávka MHD. V nejbližším okolí je veškerá občanská vybavenost (nákupní středisko, koupaliště, restaurace, dětské hřiště, sportoviště, základní i mateřská škola). Nedaleko je lesopark Bílá hora, který lze využívat k procházkách a relaxaci.
Nemovitost je vhodná k bydlení i jako investice za účelem pronájmu. Byt je možné použít jako zástavu v případě financování koupě prostřednictvím úvěru.
Pokud Vás tento byt zaujal, domluvte si se mnou osobní prohlídku. Zajištění hypotečního servisu na míru a další služby dle individuálních potřeb klienta jsou samozřejmostí.
Pomocí naší hypoteční kalkulačky si můžete udělat orientační představu o výši měsíčních splátek hypotéky. O vše ostatní se pak postaráme my ve spolupráci s našimi obchodními partnery.
32 795 Kč
* Odhadovaná měsíční splátka vychází z výše úvěru Kč s pevnou úrokovou sazbou % po celou dobu trvání úvěru.
Prodáváte nemovitost a potřebujete zjistit její reálnou hodnotu?
Uživatel serveru RealityMIX.cz (dále jen „Server“) dostupného na internetové adrese (URL) https://www.realitymix.cz, který provozuje společnost DALTEN media s.r.o., se sídlem Na Harfě 916/9a, Praha 9, 190 00, IČO: 271 35 306 (dále jen „Správce“) jako provozovateli tohoto Serveru uděluje svůj výslovný souhlas v souladu s ustanovením § 5 zákona č. 101/2000 Sb. O ochraně osobních údajů a o změně některých zákonů, v platném znění (dále jen „zákon o ochraně osobních údajů“), se zpracováním uživatelem poskytnutých osobních údajů a dalších dat.
Uživatel poskytuje Správci osobní údaje v rozsahu: jméno, příjmení, e-mailová adresa, telefonický kontakt a další data, a to z důvodu projeveného zájmu o nemovitost, kde prostřednictvím služby Serveru Správce osloví Uživatel inzerenta uvedeného v detailu
nemovitosti - RENČ s.r.o. (IČ 25568817) se zájmem o jeho služby.
Uživatel tyto osobní údaje poskytuje dobrovolně a bere na vědomí, že součástí služeb Správce, které Správce Uživateli poskytuje, je vyhledání všech Uživateli vyhovujících (dle parametrů - cena, typ nemovitosti, lokalita atd.) nemovitostí. Správce za tímto účelem provozuje aplikace Hlídací pes a newsletter. Tyto služby je možné z každého zaslaného emailu odhlásit. Souhlas se zpracováním osobních údajů Uživatel poskytuje Správci na dobu neurčitou s tím, že svůj udělený souhlas může Uživatel kdykoliv na drese správce info@realitymix.cz odvolat. Správce garantuje Uživateli i další práva uvedené v ustanovení §11 a §21 zákoba č. 101/200 Sb. Ve znění pozdějších předpisů.
Více informací o zpracování údajů získáte zde (realitymix.cz/zasady-ochrany-osobnich-udaju)