Prostorný byt 4+kk s garáží, balkónem a zahradou | Brno – Slatina
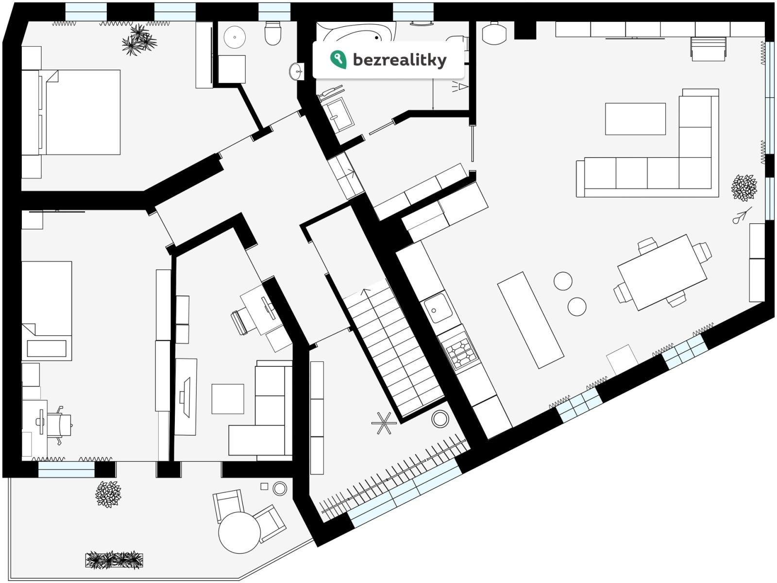
Nabízíme k prodeji byt o dispozici 4+kk a celkové užitné ploše 140 m², který se nachází v rodinném domě o dvou bytových jednotkách v městské části Brno-Slatina, na ulici Podstránská.
Spodní patro bytu tvoří prostorná garáž o velikosti 43,10 m², technická místnost a chodba se vstupem do obytné části. Samotné bydlení se nachází v 1. nadzemním podlaží.
Byt byl zkolaudován v roce 2019 a nabízí komfortní prostor pro rodinné bydlení. Součástí obytné části je balkón o velikosti 12,22 m², ideální pro posezení a relaxaci.
Velkým benefitem je také půda o ploše cca 50 m², která nabízí široké možnosti využití – ať už jako úložný prostor, nebo potenciál k dalšímu rozšíření obytné plochy. Dále zahrada o výměře 89 m² (bez oplocení) s možností výstavby terasy, a také parkovací místo přímo před domem.
Vytápění i ohřev vody zajišťuje vlastní plynový kotel, což umožňuje efektivní kontrolu provozních nákladů.
Lokalita nabízí výbornou dostupnost do centra Brna, kompletní občanskou vybavenost v docházkové vzdálenosti, zastávky autobusu i tramvaje, dětská hřiště a blízkost přírody – zejména oblíbené lokality Stránská skála.
Nemovitost je vhodná pro rodinné bydlení, kombinaci bydlení a podnikání, případně jako dlouhodobou investici. Prodej je realizován bez provize realitní kanceláře, přímý prodej od majitele. Tato nemovitost je určena výhradně přímým zájemcům o koupi. Na inzerát můžete také reagovat přímo na webu Bezrealitky.
Pomocí naší hypoteční kalkulačky si můžete udělat orientační představu o výši měsíčních splátek hypotéky. O vše ostatní se pak postaráme my ve spolupráci s našimi obchodními partnery.
51 824 Kč
* Odhadovaná měsíční splátka vychází z výše úvěru Kč s pevnou úrokovou sazbou % po celou dobu trvání úvěru.
Prodáváte nemovitost a potřebujete zjistit její reálnou hodnotu?
* Umístění na mapě je na základě GPS informací dodaných realitní kanceláří.
* Pozice na mapě je pouze orientační.
Souhlas se zpracováním osobních údajů
Uživatel serveru RealityMIX.cz (dále jen „Server“) dostupného na internetové adrese (URL) https://www.realitymix.cz, který provozuje společnost DALTEN media s.r.o., se sídlem Na Harfě 916/9a, Praha 9, 190 00, IČO: 271 35 306 (dále jen „Správce“) jako provozovateli tohoto Serveru uděluje svůj výslovný souhlas v souladu s ustanovením § 5 zákona č. 101/2000 Sb. O ochraně osobních údajů a o změně některých zákonů, v platném znění (dále jen „zákon o ochraně osobních údajů“), se zpracováním uživatelem poskytnutých osobních údajů a dalších dat.
Uživatel poskytuje Správci osobní údaje v rozsahu: jméno, příjmení, e-mailová adresa, telefonický kontakt a další data, a to z důvodu projeveného zájmu o nemovitost, kde prostřednictvím služby Serveru Správce osloví Uživatel inzerenta uvedeného v detailu
nemovitosti - Bezrealitky s.r.o. (IČ 08063168) se zájmem o jeho služby.
Uživatel tyto osobní údaje poskytuje dobrovolně a bere na vědomí, že součástí služeb Správce, které Správce Uživateli poskytuje, je vyhledání všech Uživateli vyhovujících (dle parametrů - cena, typ nemovitosti, lokalita atd.) nemovitostí. Správce za tímto účelem provozuje aplikace Hlídací pes a newsletter. Tyto služby je možné z každého zaslaného emailu odhlásit. Souhlas se zpracováním osobních údajů Uživatel poskytuje Správci na dobu neurčitou s tím, že svůj udělený souhlas může Uživatel kdykoliv na drese správce info@realitymix.cz odvolat. Správce garantuje Uživateli i další práva uvedené v ustanovení §11 a §21 zákoba č. 101/200 Sb. Ve znění pozdějších předpisů.
Více informací o zpracování údajů získáte zde (realitymix.cz/zasady-ochrany-osobnich-udaju)