Na základě výhradního zastoupení majitele Vám nabízíme k prodeji obchodní centrum Josefínka v samém centru Brna na nároží ulic Josefská 8, 10 a Františkánská 10. Jedná se o polyfunkční budovu s obchodními a kancelářskými prostory, které jsou dlouhodobě obsazené nájemníky.
Výměra pozemku: 358 m2, zastavěná plocha 357,2 m2
Celková užitná plocha: 1 315,16 m2
Plocha k pronájmu: 915,4 m2
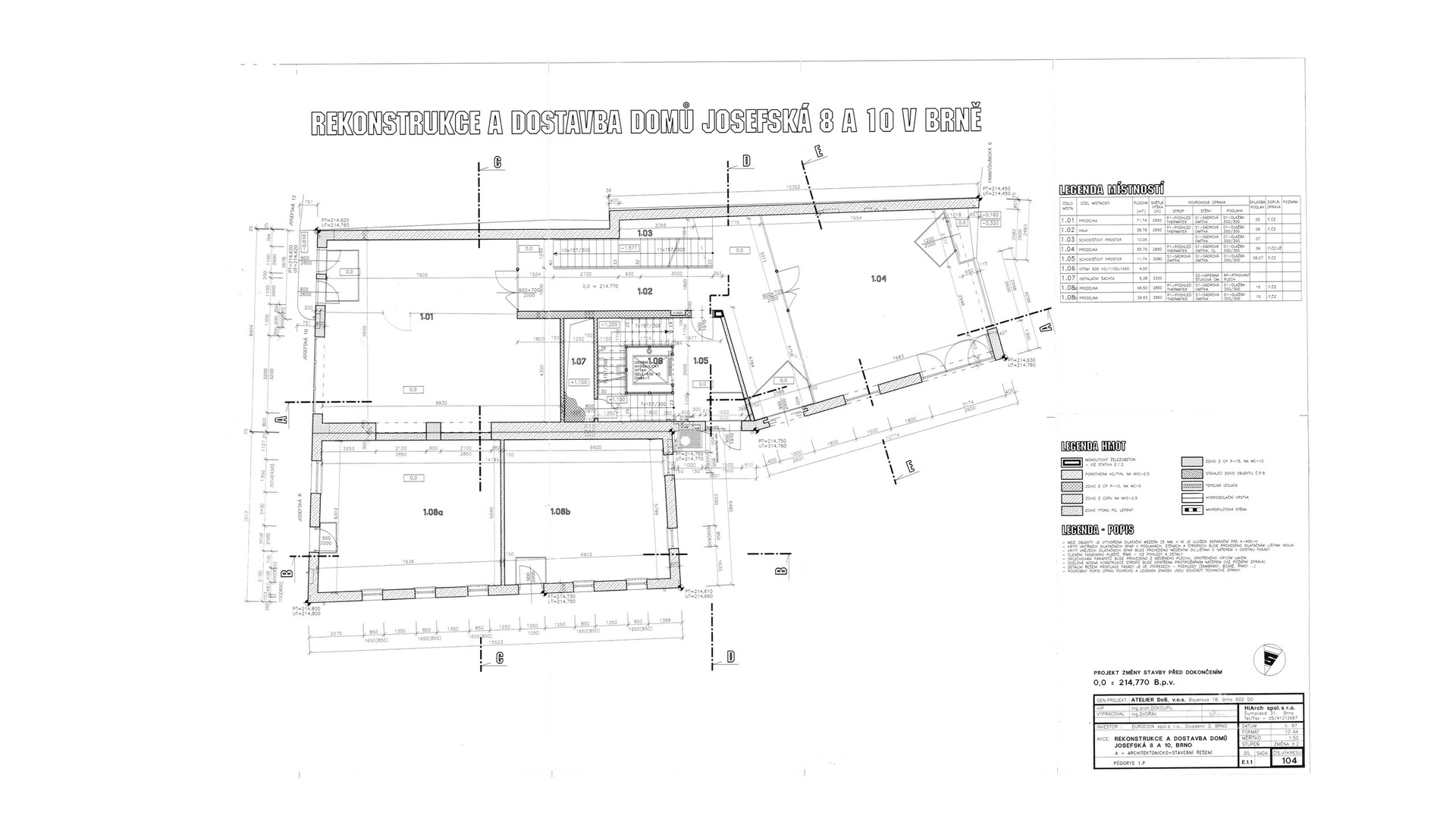
Nemovitost má celkem čtyři nadzemní a jedno podzemní podlaží. Obchodní a kancelářské prostory jsou dlouhodobě pronajímány.
1.PP – plocha podlaží celkem: 268,14 m2
- volný prostor – 44 m2
1.NP – plocha podlaží celkem: 283,92 m2
pronajatá plocha:
- prodejna gramofonových desek – propojeno s 1.PP – celková výměra 117,4 m2
- zlatnictví – 46,5 m2
- punčochové zboží – 70,79 m2
- aktuálně pronajímaný prostor – (dříve bar) – 41 m2
3.NP – plocha podlaží celkem: 265,86 m2
pronajatá plocha:
- nezisková organizace – 124,52 m2
- správcovská spol. – 20,46 m2
- jazyková škola – 71 m2
4.NP – plocha podlaží celkem: 211,66 m2 bez půdního prostoru
pronajatá plocha:
- jazyková škola – 131,85 m2
Každá z pronajatých jednotek má své měření elektrické energie. Vytápění je řešeno centrálními plynovými kotly, které jsou umístěné ve 4.NP.
PENB skupiny C
Dnešní obchodní centrum vzniklo sloučením dvou řadových domů Josefská 8 a Josefská 10. Dům Josefská 8 byl drobná stavba s klasicistním jádrem a secesní pozdně historizující fasádou z přelomu 19. a 20. století. Dům Josefská 10 s klasicistním průčelím obytného domu s obchodně řemeslnickým přízemím byl předmětem památkové ochrany. Oba domy byly v roce 1996 asanovány a znovu vystaveny včetně dostavby do Římského náměstí. Jejich výsledná podoba byla navržena tak, aby odpovídala regulačním podmínkám dostavby Římského náměstí. Průčelí do ulice Josefské bylo navrženo v zásadě jako replika historické klasicistní fasády, zatímco zadní strana objektu směřující na Římské náměstí kombinuje původní zastavění se soudobými architektonickými prvky. 10 v současnosti tvoří dispozičně a provozně jeden celek využívaný pro obchodní a kancelářské účely, obchodní podlaží jsou v rámci stavby propojena výtahem.
Bližší informace Vám rád poskytnu osobně v naší realitní kanceláři či na zavolání.
Pomocí naší hypoteční kalkulačky si můžete udělat orientační představu o výši měsíčních splátek hypotéky. O vše ostatní se pak postaráme my ve spolupráci s našimi obchodními partnery.
295 557 Kč
* Odhadovaná měsíční splátka vychází z výše úvěru Kč s pevnou úrokovou sazbou % po celou dobu trvání úvěru.
Uživatel serveru RealityMIX.cz (dále jen „Server“) dostupného na internetové adrese (URL) https://www.realitymix.cz, který provozuje společnost DALTEN media s.r.o., se sídlem Na Harfě 916/9a, Praha 9, 190 00, IČO: 271 35 306 (dále jen „Správce“) jako provozovateli tohoto Serveru uděluje svůj výslovný souhlas v souladu s ustanovením § 5 zákona č. 101/2000 Sb. O ochraně osobních údajů a o změně některých zákonů, v platném znění (dále jen „zákon o ochraně osobních údajů“), se zpracováním uživatelem poskytnutých osobních údajů a dalších dat.
Uživatel poskytuje Správci osobní údaje v rozsahu: jméno, příjmení, e-mailová adresa, telefonický kontakt a další data, a to z důvodu projeveného zájmu o nemovitost, kde prostřednictvím služby Serveru Správce osloví Uživatel inzerenta uvedeného v detailu
nemovitosti - REAL SPEKTRUM, a.s. (IČ 25314718) se zájmem o jeho služby.
Uživatel tyto osobní údaje poskytuje dobrovolně a bere na vědomí, že součástí služeb Správce, které Správce Uživateli poskytuje, je vyhledání všech Uživateli vyhovujících (dle parametrů - cena, typ nemovitosti, lokalita atd.) nemovitostí. Správce za tímto účelem provozuje aplikace Hlídací pes a newsletter. Tyto služby je možné z každého zaslaného emailu odhlásit. Souhlas se zpracováním osobních údajů Uživatel poskytuje Správci na dobu neurčitou s tím, že svůj udělený souhlas může Uživatel kdykoliv na drese správce info@realitymix.cz odvolat. Správce garantuje Uživateli i další práva uvedené v ustanovení §11 a §21 zákoba č. 101/200 Sb. Ve znění pozdějších předpisů.
Více informací o zpracování údajů získáte zde (realitymix.cz/zasady-ochrany-osobnich-udaju)