Prodej kanceláře v AZ Tower, 77 m² - Brno - Štýřice
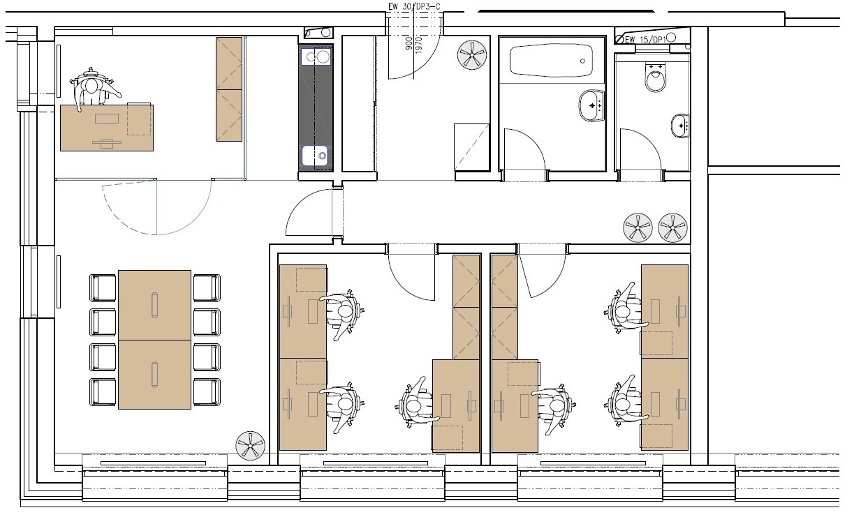
V zastoupení majitele nabízím exkluzivní prodej reprezentativní kanceláře ve 23. NP, s výhledem dosahujícím na Pálavu a to ve vyhledávané lokalitě, v prostorách nejvyšší budovy ČR - AZ Tower. Celková plocha kanceláře je 77 m², je rozdělena na čtyři místnosti, kuchyňský kout, koupelnu a WC (viz. přiložen půdorys).
Jednotka je zkolaudována jako nebytový prostor / apartmán. Možnost koupě k nebytovému prostoru sklad, cena skladu 440 000,- Kč, který se nachází v 25. NP a dvě garážové parkovací stání, cena za obě 2 100 000,- Kč.
Budova AZ Tower zajišťuje 24 hodinový servis recepce a ostrahy, doručování pošty (vlastní schránka), čipové výtahy. Nachází se zde fitness a wellness centrum, kavárna, restaurace, obchody, banky a další.
Skvělá dostupnost na dálnici D1 (Praha – Bratislava – Ostrava – Vídeň) i městský okruh.
Chtěli by jste mít i Vy kancelář na prestižní obchodní adrese?
Kontaktujte mě a sjednejte si prohlídku této vybavené kanceláře!
Pomocí naší hypoteční kalkulačky si můžete udělat orientační představu o výši měsíčních splátek hypotéky. O vše ostatní se pak postaráme my ve spolupráci s našimi obchodními partnery.
41 499 Kč
* Odhadovaná měsíční splátka vychází z výše úvěru Kč s pevnou úrokovou sazbou % po celou dobu trvání úvěru.
Uživatel serveru RealityMIX.cz (dále jen „Server“) dostupného na internetové adrese (URL) https://www.realitymix.cz, který provozuje společnost DALTEN media s.r.o., se sídlem Na Harfě 916/9a, Praha 9, 190 00, IČO: 271 35 306 (dále jen „Správce“) jako provozovateli tohoto Serveru uděluje svůj výslovný souhlas v souladu s ustanovením § 5 zákona č. 101/2000 Sb. O ochraně osobních údajů a o změně některých zákonů, v platném znění (dále jen „zákon o ochraně osobních údajů“), se zpracováním uživatelem poskytnutých osobních údajů a dalších dat.
Uživatel poskytuje Správci osobní údaje v rozsahu: jméno, příjmení, e-mailová adresa, telefonický kontakt a další data, a to z důvodu projeveného zájmu o nemovitost, kde prostřednictvím služby Serveru Správce osloví Uživatel inzerenta uvedeného v detailu
nemovitosti - QUANTUM, a.s. (IČ 25307762) se zájmem o jeho služby.
Uživatel tyto osobní údaje poskytuje dobrovolně a bere na vědomí, že součástí služeb Správce, které Správce Uživateli poskytuje, je vyhledání všech Uživateli vyhovujících (dle parametrů - cena, typ nemovitosti, lokalita atd.) nemovitostí. Správce za tímto účelem provozuje aplikace Hlídací pes a newsletter. Tyto služby je možné z každého zaslaného emailu odhlásit. Souhlas se zpracováním osobních údajů Uživatel poskytuje Správci na dobu neurčitou s tím, že svůj udělený souhlas může Uživatel kdykoliv na drese správce info@realitymix.cz odvolat. Správce garantuje Uživateli i další práva uvedené v ustanovení §11 a §21 zákoba č. 101/200 Sb. Ve znění pozdějších předpisů.
Více informací o zpracování údajů získáte zde (realitymix.cz/zasady-ochrany-osobnich-udaju)