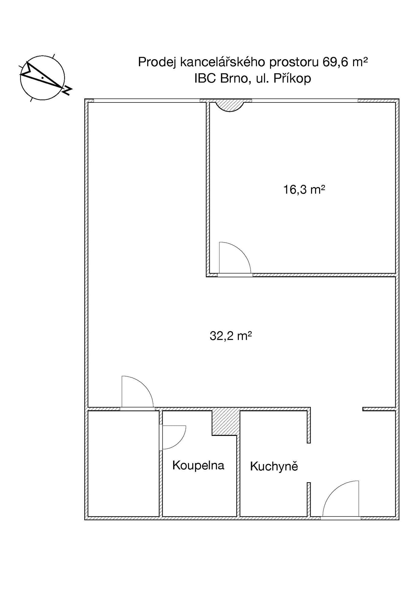
Prodej kancelářského prostoru 70 m² – IBC Brno, ul. Příkop
Nabízíme ke koupi atraktivní nebytový kancelářský prostor o celkové výměře 69,6 m², situovaný v prestižním komplexu IBC Brno (International Business Center) na ulici Příkop, v širším centru města.
IBC Brno tvoří soubor tří moderních polyfunkčních budov s kancelářemi a obchodními jednotkami. Komplex je sídlem řady firem a nabízí kompletní administrativní zázemí. Součástí areálu jsou restaurace, kavárny, obchody a služby. Bezproblémové parkování je zajištěno v podzemních garážích i na přilehlém parkovišti.
Kancelář se nachází ve 3. nadzemním podlaží a je pohodlně přístupná výtahy. Dispozice zahrnuje:
vstupní část s recepčním pultem
otevřenou kancelář o ploše 32,2 m²
samostatnou kancelář 16,3 m²
kuchyňku
vlastní koupelnu se sprchovým koutem a toaletou
Prostor je prodáván včetně vybavení – kuchyňská linka s lednicí a mikrovlnnou troubou, recepční pult se stolem, konferenční stůl, skříňky, svítidla, dvě vestavěné skříně a venkovní vertikální elektricky ovládané žaluzie.
Vytápění i ohřev vody je centrální.
Měsíční náklady na služby a energie činí cca 7.000 Kč.
K dispozici je poštovní schránka v přízemí objektu, recepce a ostraha 24/7, což zajišťuje vysoký standard bezpečnosti i komfortu.
V případě zájmu o více informací nebo osobní prohlídku mě neváhejte kontaktovat.
Pomocí naší hypoteční kalkulačky si můžete udělat orientační představu o výši měsíčních splátek hypotéky. O vše ostatní se pak postaráme my ve spolupráci s našimi obchodními partnery.
21 256 Kč
* Odhadovaná měsíční splátka vychází z výše úvěru Kč s pevnou úrokovou sazbou % po celou dobu trvání úvěru.
Uživatel serveru RealityMIX.cz (dále jen „Server“) dostupného na internetové adrese (URL) https://www.realitymix.cz, který provozuje společnost DALTEN media s.r.o., se sídlem Na Harfě 916/9a, Praha 9, 190 00, IČO: 271 35 306 (dále jen „Správce“) jako provozovateli tohoto Serveru uděluje svůj výslovný souhlas v souladu s ustanovením § 5 zákona č. 101/2000 Sb. O ochraně osobních údajů a o změně některých zákonů, v platném znění (dále jen „zákon o ochraně osobních údajů“), se zpracováním uživatelem poskytnutých osobních údajů a dalších dat.
Uživatel poskytuje Správci osobní údaje v rozsahu: jméno, příjmení, e-mailová adresa, telefonický kontakt a další data, a to z důvodu projeveného zájmu o nemovitost, kde prostřednictvím služby Serveru Správce osloví Uživatel inzerenta uvedeného v detailu
nemovitosti - RENČ s.r.o. (IČ 25568817) se zájmem o jeho služby.
Uživatel tyto osobní údaje poskytuje dobrovolně a bere na vědomí, že součástí služeb Správce, které Správce Uživateli poskytuje, je vyhledání všech Uživateli vyhovujících (dle parametrů - cena, typ nemovitosti, lokalita atd.) nemovitostí. Správce za tímto účelem provozuje aplikace Hlídací pes a newsletter. Tyto služby je možné z každého zaslaného emailu odhlásit. Souhlas se zpracováním osobních údajů Uživatel poskytuje Správci na dobu neurčitou s tím, že svůj udělený souhlas může Uživatel kdykoliv na drese správce info@realitymix.cz odvolat. Správce garantuje Uživateli i další práva uvedené v ustanovení §11 a §21 zákoba č. 101/200 Sb. Ve znění pozdějších předpisů.
Více informací o zpracování údajů získáte zde (realitymix.cz/zasady-ochrany-osobnich-udaju)