Prodej městského RD se zahradou a potenciálem 150m2 Tuřany
Hledáte bydlení v klidné části města s dostatkem prostoru pro rodinu nebo více generací? Nabízíme k prodeji rodinný dům se třemi podlažími, terasou a zahradou, situovaný v tiché ulici 1. května v městské části Brno-Tuřany.
Celková podlahová plocha domu je přibližně 150 m2. Nemovitost je průběžně udržovaná a díky praktickému uspořádání nabízí široké možnosti využití - ať už pro rodinné bydlení, nebo jako dvougenerační dům.
V přízemí se nachází byt o dispozici 2+1, který je vhodný k modernizaci dle vlastních představ. Horní byt 2+kk je naopak ve velmi dobrém stavu a připraven k okamžitému užívání. Ve třetím podlaží je k dispozici samostatný pokoj a půda.
Technický stav domu zahrnuje novější rozvody, plynový kotel, plastová okna instalovaná v roce 2014 a zateplený strop.
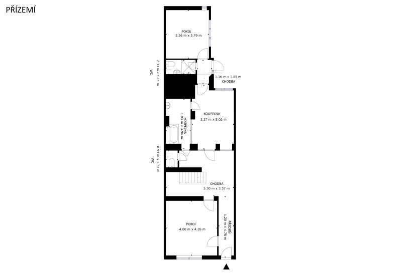
Dispozice domu:
1.NP (přízemí): vstupní chodba, schodiště, kuchyně s jídelním koutem, obývací pokoj, ložnice, dvě koupelny, samostatná toaleta.
2.NP (1. patro): obývací pokoj, kuchyně s jídelním koutem a spíží, ložnice a terasa.
3.NP (půda): samostatný pokoj s lodžií s pěkným výhledem do zahrady, půdní prostor v dobrém technickém stavu.
Na dvoře je umístěn obyvatelný přístavek. Další přístavek lze využít jako dílnu nebo sklad.
Samozřejmostí je sklep pod částí domu. Vytápění i zajišťuje plynový kotel.
Lokalita nabízí příjemné a klidné bydlení s výbornou dostupností do centra a kompletní občanskou vybaveností - školy, školky, zdravotnické služby, pošta, restaurace i další obchody. V blízkosti se nachází sportovní hřiště a zastávka MHD je vzdálena jen pár minut chůze.
Zaujala Vás tato nemovitost? Zavolejte mi pro více informací nebo domluvení prohlídky.
Pomocí naší hypoteční kalkulačky si můžete udělat orientační představu o výši měsíčních splátek hypotéky. O vše ostatní se pak postaráme my ve spolupráci s našimi obchodními partnery.
40 888 Kč
* Odhadovaná měsíční splátka vychází z výše úvěru Kč s pevnou úrokovou sazbou % po celou dobu trvání úvěru.
Uživatel serveru RealityMIX.cz (dále jen „Server“) dostupného na internetové adrese (URL) https://www.realitymix.cz, který provozuje společnost DALTEN media s.r.o., se sídlem Na Harfě 916/9a, Praha 9, 190 00, IČO: 271 35 306 (dále jen „Správce“) jako provozovateli tohoto Serveru uděluje svůj výslovný souhlas v souladu s ustanovením § 5 zákona č. 101/2000 Sb. O ochraně osobních údajů a o změně některých zákonů, v platném znění (dále jen „zákon o ochraně osobních údajů“), se zpracováním uživatelem poskytnutých osobních údajů a dalších dat.
Uživatel poskytuje Správci osobní údaje v rozsahu: jméno, příjmení, e-mailová adresa, telefonický kontakt a další data, a to z důvodu projeveného zájmu o nemovitost, kde prostřednictvím služby Serveru Správce osloví Uživatel inzerenta uvedeného v detailu
nemovitosti - Bidli reality, a.s. (IČ 06790763) se zájmem o jeho služby. Tato společnost je součástí seskupení/sítě/franšízového modelu realitních kanceláří, jejich seznam můžete zobrazit kliknutím na tento odkaz.
Hypocentrum modré pyramidy - Praha (IČ ) , Hypocentrum modré pyramidy - Brno (IČ ) , Hypocentrum Modré pyramidy - Hradec Králové (IČ ) , Hypocentrum Modré pyramidy - České Budějovice (IČ ) , Hypocentrum Modré pyramidy - Pardubice (IČ ) , Hypocentrum Modré pyramidy - Plzeň (IČ ) , Hypocentrum Modré pyramidy - Ústí nad Labem (IČ ) , Hypocentrum Modré pyramidy - Ostrava (IČ ) , Hypocentrum Modré pyramidy - Olomouc (IČ ) , Bidli reality, a.s. (IČ 06790763)
Uživatel tyto osobní údaje poskytuje dobrovolně a bere na vědomí, že součástí služeb Správce, které Správce Uživateli poskytuje, je vyhledání všech Uživateli vyhovujících (dle parametrů - cena, typ nemovitosti, lokalita atd.) nemovitostí. Správce za tímto účelem provozuje aplikace Hlídací pes a newsletter. Tyto služby je možné z každého zaslaného emailu odhlásit. Souhlas se zpracováním osobních údajů Uživatel poskytuje Správci na dobu neurčitou s tím, že svůj udělený souhlas může Uživatel kdykoliv na drese správce info@realitymix.cz odvolat. Správce garantuje Uživateli i další práva uvedené v ustanovení §11 a §21 zákoba č. 101/200 Sb. Ve znění pozdějších předpisů.
Více informací o zpracování údajů získáte zde (realitymix.cz/zasady-ochrany-osobnich-udaju)