Prodej městského RD se zahradou a potenciálem 150m2 Tuřany
Hledáte bydlení v klidné části města s dostatkem prostoru pro rodinu nebo více generací? Nabízíme k prodeji rodinný dům se třemi podlažími, terasou a zahradou, situovaný v tiché ulici 1. května v městské části Brno-Tuřany.
Celková podlahová plocha domu je přibližně 150 m2. Nemovitost je průběžně udržovaná a díky praktickému uspořádání nabízí široké možnosti využití - ať už pro rodinné bydlení, nebo jako dvougenerační dům.
V přízemí se nachází byt o dispozici 2+1, který je vhodný k modernizaci dle vlastních představ. Horní byt 2+kk je naopak ve velmi dobrém stavu a připraven k okamžitému užívání. Ve třetím podlaží je k dispozici samostatný pokoj a půda.
Technický stav domu zahrnuje novější rozvody, plynový kotel, plastová okna instalovaná v roce 2014 a zateplený strop.
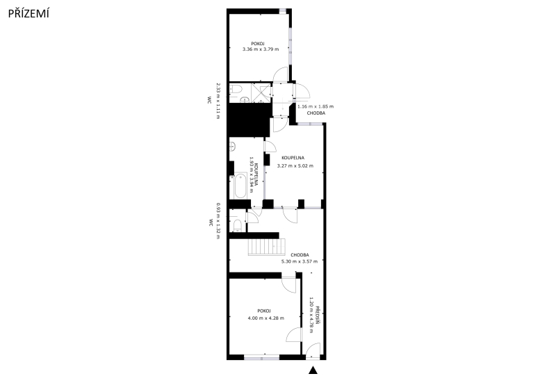
Dispozice domu:
1.NP (přízemí): vstupní chodba, schodiště, kuchyně s jídelním koutem, obývací pokoj, ložnice, dvě koupelny, samostatná toaleta.
2.NP (1. patro): obývací pokoj, kuchyně s jídelním koutem a spíží, ložnice a terasa.
3.NP (půda): samostatný pokoj s lodžií s pěkným výhledem do zahrady, půdní prostor v dobrém technickém stavu.
Na dvoře je umístěn obyvatelný přístavek. Další přístavek lze využít jako dílnu nebo sklad.
Samozřejmostí je sklep pod částí domu. Vytápění i zajišťuje plynový kotel.
Lokalita nabízí příjemné a klidné bydlení s výbornou dostupností do centra a kompletní občanskou vybaveností - školy, školky, zdravotnické služby, pošta, restaurace i další obchody. V blízkosti se nachází sportovní hřiště a zastávka MHD je vzdálena jen pár minut chůze.
Z důvodu nedodání energetického štítku je uvedena energetická náročnost třídy G.
Zaujala Vás tato nemovitost? Zavolejte mi pro více informací nebo domluvení prohlídky.
Pomocí naší hypoteční kalkulačky si můžete udělat orientační představu o výši měsíčních splátek hypotéky. O vše ostatní se pak postaráme my ve spolupráci s našimi obchodními partnery.
40 447 Kč
* Odhadovaná měsíční splátka vychází z výše úvěru Kč s pevnou úrokovou sazbou % po celou dobu trvání úvěru.
Uživatel serveru RealityMIX.cz (dále jen „Server“) dostupného na internetové adrese (URL) https://www.realitymix.cz, který provozuje společnost DALTEN media s.r.o., se sídlem Na Harfě 916/9a, Praha 9, 190 00, IČO: 271 35 306 (dále jen „Správce“) jako provozovateli tohoto Serveru uděluje svůj výslovný souhlas v souladu s ustanovením § 5 zákona č. 101/2000 Sb. O ochraně osobních údajů a o změně některých zákonů, v platném znění (dále jen „zákon o ochraně osobních údajů“), se zpracováním uživatelem poskytnutých osobních údajů a dalších dat.
Uživatel poskytuje Správci osobní údaje v rozsahu: jméno, příjmení, e-mailová adresa, telefonický kontakt a další data, a to z důvodu projeveného zájmu o nemovitost, kde prostřednictvím služby Serveru Správce osloví Uživatel inzerenta uvedeného v detailu
nemovitosti - Bidli reality, a.s. (IČ 06790763) se zájmem o jeho služby. Tato společnost je součástí seskupení/sítě/franšízového modelu realitních kanceláří, jejich seznam můžete zobrazit kliknutím na tento odkaz.
Hypocentrum modré pyramidy - Praha (IČ ) , Hypocentrum modré pyramidy - Brno (IČ ) , Hypocentrum Modré pyramidy - Hradec Králové (IČ ) , Hypocentrum Modré pyramidy - České Budějovice (IČ ) , Hypocentrum Modré pyramidy - Pardubice (IČ ) , Hypocentrum Modré pyramidy - Plzeň (IČ ) , Hypocentrum Modré pyramidy - Ústí nad Labem (IČ ) , Hypocentrum Modré pyramidy - Ostrava (IČ ) , Hypocentrum Modré pyramidy - Olomouc (IČ ) , Bidli reality, a.s. (IČ 06790763)
Uživatel tyto osobní údaje poskytuje dobrovolně a bere na vědomí, že součástí služeb Správce, které Správce Uživateli poskytuje, je vyhledání všech Uživateli vyhovujících (dle parametrů - cena, typ nemovitosti, lokalita atd.) nemovitostí. Správce za tímto účelem provozuje aplikace Hlídací pes a newsletter. Tyto služby je možné z každého zaslaného emailu odhlásit. Souhlas se zpracováním osobních údajů Uživatel poskytuje Správci na dobu neurčitou s tím, že svůj udělený souhlas může Uživatel kdykoliv na drese správce info@realitymix.cz odvolat. Správce garantuje Uživateli i další práva uvedené v ustanovení §11 a §21 zákoba č. 101/200 Sb. Ve znění pozdějších předpisů.
Více informací o zpracování údajů získáte zde (realitymix.cz/zasady-ochrany-osobnich-udaju)