Komerční prostor v centru Brna s potenciálem showroomu či reprezentativního sídla firmy – 177 m², ulice Koliště
Hledáte prostor, který nebude jen „místem k podnikání“, ale skutečnou vizitkou vaší značky?
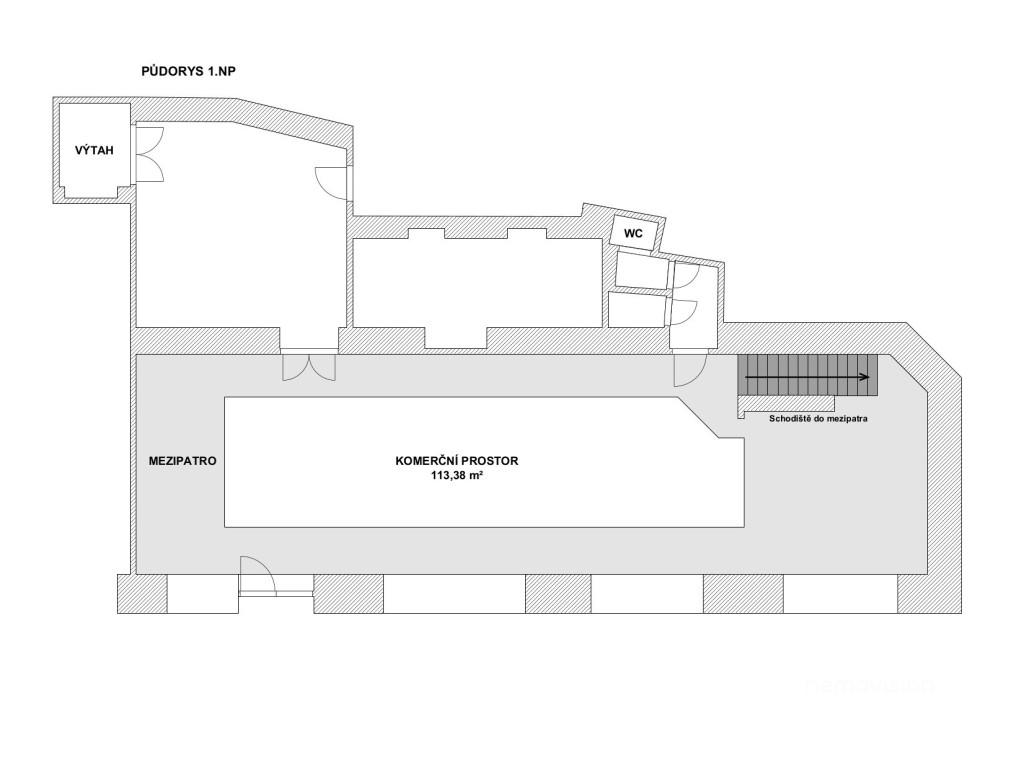
Nabízíme k prodeji komerční prostor o výměře 177 m² + mezonetový prostor, na prestižní adrese v širším centru Brna – ulice Koliště. Lokalita s vysokou frekvencí pohybu a výbornou dostupností dává tomuto prostoru výrazný obchodní potenciál.
Proč právě tento prostor?
- velkorysá plocha 177 m² + mezonetový prostor o výměře 105 m²
- výborná viditelnost a dostupnost
- možnost úpravy přesně podle vašich potřeb
Prostor je aktuálně ve stavu vhodném k rekonstrukci, což vám dává jedinečnou příležitost vytvořit interiér přesně podle vaší značky a konceptu.
Díky své dispozici a výšce nabízí ideální základ pro moderní, vzdušný prostor s výrazným designovým charakterem.
Lokalita, která prodává:
Ulice Koliště představuje strategické spojení centra města s výbornou dopravní dostupností. V okolí se nachází kompletní občanská vybavenost, kancelářské budovy i obchodní prostory.
Prostor je možné zakoupit samostatně, nebo v kombinaci s vedlejší jednotkou a vytvořit tak velkorysý celek.
Neváhejte mě kontaktovat – ráda vám prostory osobně představím a zodpovím veškeré dotazy.
Pomocí naší hypoteční kalkulačky si můžete udělat orientační představu o výši měsíčních splátek hypotéky. O vše ostatní se pak postaráme my ve spolupráci s našimi obchodními partnery.
49 071 Kč
* Odhadovaná měsíční splátka vychází z výše úvěru Kč s pevnou úrokovou sazbou % po celou dobu trvání úvěru.
Uživatel serveru RealityMIX.cz (dále jen „Server“) dostupného na internetové adrese (URL) https://www.realitymix.cz, který provozuje společnost DALTEN media s.r.o., se sídlem Na Harfě 916/9a, Praha 9, 190 00, IČO: 271 35 306 (dále jen „Správce“) jako provozovateli tohoto Serveru uděluje svůj výslovný souhlas v souladu s ustanovením § 5 zákona č. 101/2000 Sb. O ochraně osobních údajů a o změně některých zákonů, v platném znění (dále jen „zákon o ochraně osobních údajů“), se zpracováním uživatelem poskytnutých osobních údajů a dalších dat.
Uživatel poskytuje Správci osobní údaje v rozsahu: jméno, příjmení, e-mailová adresa, telefonický kontakt a další data, a to z důvodu projeveného zájmu o nemovitost, kde prostřednictvím služby Serveru Správce osloví Uživatel inzerenta uvedeného v detailu
nemovitosti - Nemovision reality s.r.o. (IČ 08351538) se zájmem o jeho služby.
Uživatel tyto osobní údaje poskytuje dobrovolně a bere na vědomí, že součástí služeb Správce, které Správce Uživateli poskytuje, je vyhledání všech Uživateli vyhovujících (dle parametrů - cena, typ nemovitosti, lokalita atd.) nemovitostí. Správce za tímto účelem provozuje aplikace Hlídací pes a newsletter. Tyto služby je možné z každého zaslaného emailu odhlásit. Souhlas se zpracováním osobních údajů Uživatel poskytuje Správci na dobu neurčitou s tím, že svůj udělený souhlas může Uživatel kdykoliv na drese správce info@realitymix.cz odvolat. Správce garantuje Uživateli i další práva uvedené v ustanovení §11 a §21 zákoba č. 101/200 Sb. Ve znění pozdějších předpisů.
Více informací o zpracování údajů získáte zde (realitymix.cz/zasady-ochrany-osobnich-udaju)