Prodej pozemku pro výstavbu RD (1184 m²) - Česká u Brna
Dovolujeme si Vám nabídnout prodej pozemku s vydaným stavebním povolením na výstavbu třípodlažního rodinného domu. Jedná se o jedinečný slunný pozemek na úplném okraji obce Česká u Brna v naprostém klidu a přitom s velmi dobrou dostupností do centra Brna.
Výměry:
- Pozemek celkem: 1184 m²
- Zastavěná plocha RD: 202 m²
- Užitná plocha: 378,13 m²
- Dispozice: 7kk
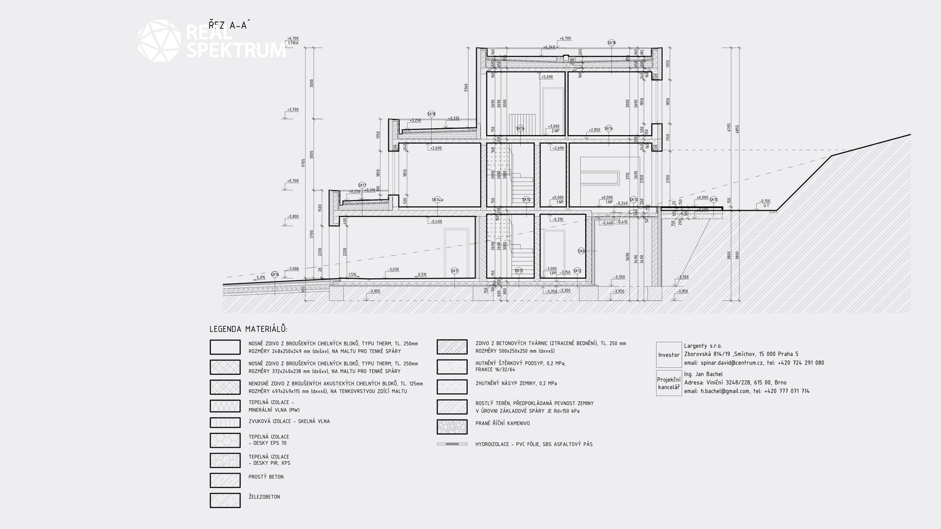
Celková podlahová plocha (vč. terasy): 378,13 m²:
- 1.PP – 122,31 m² (garáže, technická místnost, dílna, sklep)
- 1.NP – 174,65 m² (obývací pokoj s kuchyňským koutem, 2x ložnice, WC, koupelna) + terasa
- 2.NP – 81,17 m² (3x pokoj, WC, koupelna)
Vstup do rodinného domu je z čelní strany. Ze zádveří je přístup do sklepu policového, ze kterého je následně přístup do technické místnosti a do dílny. Z dílny je přístup do technické místnosti a garáže. Ze zádveří je přístup na schodiště do 1.NP. V 1.NP je přístup z chodby do pracovny, WC, kuchyně s jídelním koutem a obývacího pokoje. Z obývacího je přístup na terasu, do ložnice, šatny a koupelny. Z chodby je dále přístup na schodiště do 2.NP. V 2.NP je koupelna a 3 pokoje.
Na hranici pozemku je zavedena elektřina, voda a odpad a studna. Pro bližší informace mě neváhejte kontaktovat.
Pomocí naší hypoteční kalkulačky si můžete udělat orientační představu o výši měsíčních splátek hypotéky. O vše ostatní se pak postaráme my ve spolupráci s našimi obchodními partnery.
52 593 Kč
* Odhadovaná měsíční splátka vychází z výše úvěru Kč s pevnou úrokovou sazbou % po celou dobu trvání úvěru.
Uživatel serveru RealityMIX.cz (dále jen „Server“) dostupného na internetové adrese (URL) https://www.realitymix.cz, který provozuje společnost DALTEN media s.r.o., se sídlem Na Harfě 916/9a, Praha 9, 190 00, IČO: 271 35 306 (dále jen „Správce“) jako provozovateli tohoto Serveru uděluje svůj výslovný souhlas v souladu s ustanovením § 5 zákona č. 101/2000 Sb. O ochraně osobních údajů a o změně některých zákonů, v platném znění (dále jen „zákon o ochraně osobních údajů“), se zpracováním uživatelem poskytnutých osobních údajů a dalších dat.
Uživatel poskytuje Správci osobní údaje v rozsahu: jméno, příjmení, e-mailová adresa, telefonický kontakt a další data, a to z důvodu projeveného zájmu o nemovitost, kde prostřednictvím služby Serveru Správce osloví Uživatel inzerenta uvedeného v detailu
nemovitosti - REAL SPEKTRUM, a.s. (IČ 25314718) se zájmem o jeho služby.
Uživatel tyto osobní údaje poskytuje dobrovolně a bere na vědomí, že součástí služeb Správce, které Správce Uživateli poskytuje, je vyhledání všech Uživateli vyhovujících (dle parametrů - cena, typ nemovitosti, lokalita atd.) nemovitostí. Správce za tímto účelem provozuje aplikace Hlídací pes a newsletter. Tyto služby je možné z každého zaslaného emailu odhlásit. Souhlas se zpracováním osobních údajů Uživatel poskytuje Správci na dobu neurčitou s tím, že svůj udělený souhlas může Uživatel kdykoliv na drese správce info@realitymix.cz odvolat. Správce garantuje Uživateli i další práva uvedené v ustanovení §11 a §21 zákoba č. 101/200 Sb. Ve znění pozdějších předpisů.
Více informací o zpracování údajů získáte zde (realitymix.cz/zasady-ochrany-osobnich-udaju)