Dovolujeme si vám nabídnout zprostředkování prodeje dvoupodlažního rodinného řadového domu s pěknou zahradou a garáží v Husovicích na ulici Vranovské. K rekonstrukci a přestavbě domu je vypracována studie architektů Kateřiny Pacolové a Bořivoje Čapáka z Ateliéru RAW, splňující požadavek na komfortní bydlení s využitím moderních technologií. Na základě této studie je vydáno platné stavební povolení. Dům nabízí i další možné varianty využití jako je vybudování až pěti menších bytových jednotek, případně možnost podnikání a bydlení, kdy lze využít i samostatný zděný zahradní domek (15m2) pro vytvoření kanceláře, ateliéru nebo dílny. Platné stavební povolení je významným benefitem, který vyřeší současné problémy s digitalizací stavebního řízení a výrazně zkrátí časovou náročnost na rekonstrukci domu.
Částečně podsklepený řadový dům, který byl postaven na počátku minulého století, prošel v průběhu let několika stavebními úpravami (vybudování garáže, výměna oken, nové rozvody odpadů a částečně elektřiny, rekonstrukce 2.NP). Zastavěná plocha domem činí 150 m2, výměra zahrady 158 m2, zahradní stavba 15 m2. V zahradě je studna, která nyní slouží k zalévání zahrady, v budoucnu se počítá s vybudováním retenční nádrže a využití užitkové vody v domě. Zahradní stavba je napojena el. energii, nyní možnost vytápění kamny na tuhá paliva.
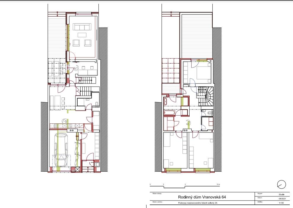
Dispoziční řešení:
1.NP - PP 92 m2 + garáž; vstup do domu, chodba, hala 19m2, pokoj 15m2, pokoj se spací nikou 33m2, kuchyně 12m2, koupelna společná s toaletou, vstup do sklepa a do zahrady, vstup na schodiště do 1.NP;
2.NP PP 80 m2, po rekonstrukci (nové podlahy, omítky, rozvody, obklady, dlažby zařizovací předmět v koupelně a na WC), schodiště, hala, chodba, kuchyně 15m2, 3x pokoj 18,18,12m2, koupelna, WC; terasa 30m2, balkon 4m2, vstup na půdu;
Půda PP 75m;
Orientace domu Z,V, obytné místnosti díky velikosti oken a prosklených ploch působí velmi příjemně. Dům je napojen na veškeré inženýrské sítě. Vytápění a ohřev TUV zajišťuje plynový kondenzační kotel pomocí deskových otopných těles. Poskytovatelem internetu je společnost Vodafone.
Dům je ve vlastnictví jedné fyzické osoby.
Dům je volný, připravený k prodeji.
MHD: 10 minut do centra, zastávka Mostecká TRAM č. 4 (dvě minuty od domu), zastávka Zdráhalova Tram č. 5.
Pomocí naší hypoteční kalkulačky si můžete udělat orientační představu o výši měsíčních splátek hypotéky. O vše ostatní se pak postaráme my ve spolupráci s našimi obchodními partnery.
50 609 Kč
* Odhadovaná měsíční splátka vychází z výše úvěru Kč s pevnou úrokovou sazbou % po celou dobu trvání úvěru.
Uživatel serveru RealityMIX.cz (dále jen „Server“) dostupného na internetové adrese (URL) https://www.realitymix.cz, který provozuje společnost DALTEN media s.r.o., se sídlem Na Harfě 916/9a, Praha 9, 190 00, IČO: 271 35 306 (dále jen „Správce“) jako provozovateli tohoto Serveru uděluje svůj výslovný souhlas v souladu s ustanovením § 5 zákona č. 101/2000 Sb. O ochraně osobních údajů a o změně některých zákonů, v platném znění (dále jen „zákon o ochraně osobních údajů“), se zpracováním uživatelem poskytnutých osobních údajů a dalších dat.
Uživatel poskytuje Správci osobní údaje v rozsahu: jméno, příjmení, e-mailová adresa, telefonický kontakt a další data, a to z důvodu projeveného zájmu o nemovitost, kde prostřednictvím služby Serveru Správce osloví Uživatel inzerenta uvedeného v detailu
nemovitosti - FIEDLER REALITY s.r.o. (IČ 25557441) se zájmem o jeho služby.
Uživatel tyto osobní údaje poskytuje dobrovolně a bere na vědomí, že součástí služeb Správce, které Správce Uživateli poskytuje, je vyhledání všech Uživateli vyhovujících (dle parametrů - cena, typ nemovitosti, lokalita atd.) nemovitostí. Správce za tímto účelem provozuje aplikace Hlídací pes a newsletter. Tyto služby je možné z každého zaslaného emailu odhlásit. Souhlas se zpracováním osobních údajů Uživatel poskytuje Správci na dobu neurčitou s tím, že svůj udělený souhlas může Uživatel kdykoliv na drese správce info@realitymix.cz odvolat. Správce garantuje Uživateli i další práva uvedené v ustanovení §11 a §21 zákoba č. 101/200 Sb. Ve znění pozdějších předpisů.
Více informací o zpracování údajů získáte zde (realitymix.cz/zasady-ochrany-osobnich-udaju)