Nabízíme k pronájmu byt 3+1 s balkonem o výměře 72,7 m2 na ulici Horní.
Chcete být prvním nájemníkem v tomto zcela novém bytě ?
Byt aktuálně prochází rozsáhlou rekonstrukcí, která zahrnuje kompletní elektroinstalaci v mědi, nové omítky a zateplení stropů. Součástí úprav budou také interiérové dveře, podlahy, obklady i dlažby, vestavěné skříně v chodbě, moderní osvětlení, nové nátěry topení a obložení dveří, koupelna s vanou, umyvadlem a skříňkou, WC zn. Geberit.
Vše bude úplně nové, nepoužívané, připravené k nastěhování. Byt nabízí možnost dlouhodobého bydlení v moderně zrekonstruovaném a komfortním prostředí.
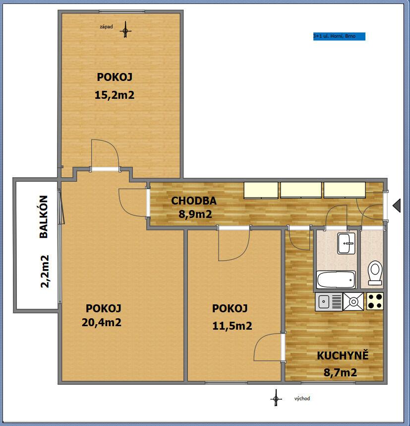
Dispozice bytu:
kuchyň 8,7 m2 a pokoj 11,5 m2 směrem k východu, pokoj 20,4 m2 s balkonem 2,2 m2, pokoj 15,2 m2 směrem k západu, chodba 8,9 m2, samostatná koupelna s vanou 2,3 m2, WC 0,8 m2.
Byt se nachází ve 4 .patře v domě bez výtahu.
Vybavení:
kuchyňská linka s myčkou, indukční deska, digestoř, vestavěné skříně v chodbě.
Prohlídky možné po domluvě. K nastěhování od 1.4.2026.
Měsíční platby:
nájemné 25.000,- + 7.000,- Kč služby včetně elektřiny, celkem tedy 32.000,- Kč.
Kauce je ve výši 35.000,- Kč
+ provize RK
Uživatel serveru RealityMIX.cz (dále jen „Server“) dostupného na internetové adrese (URL) https://www.realitymix.cz, který provozuje společnost DALTEN media s.r.o., se sídlem Na Harfě 916/9a, Praha 9, 190 00, IČO: 271 35 306 (dále jen „Správce“) jako provozovateli tohoto Serveru uděluje svůj výslovný souhlas v souladu s ustanovením § 5 zákona č. 101/2000 Sb. O ochraně osobních údajů a o změně některých zákonů, v platném znění (dále jen „zákon o ochraně osobních údajů“), se zpracováním uživatelem poskytnutých osobních údajů a dalších dat.
Uživatel poskytuje Správci osobní údaje v rozsahu: jméno, příjmení, e-mailová adresa, telefonický kontakt a další data, a to z důvodu projeveného zájmu o nemovitost, kde prostřednictvím služby Serveru Správce osloví Uživatel inzerenta uvedeného v detailu
nemovitosti - Realitní kancelář Brněnský zvonec s.r.o. (IČ 03300684) se zájmem o jeho služby.
Uživatel tyto osobní údaje poskytuje dobrovolně a bere na vědomí, že součástí služeb Správce, které Správce Uživateli poskytuje, je vyhledání všech Uživateli vyhovujících (dle parametrů - cena, typ nemovitosti, lokalita atd.) nemovitostí. Správce za tímto účelem provozuje aplikace Hlídací pes a newsletter. Tyto služby je možné z každého zaslaného emailu odhlásit. Souhlas se zpracováním osobních údajů Uživatel poskytuje Správci na dobu neurčitou s tím, že svůj udělený souhlas může Uživatel kdykoliv na drese správce info@realitymix.cz odvolat. Správce garantuje Uživateli i další práva uvedené v ustanovení §11 a §21 zákoba č. 101/200 Sb. Ve znění pozdějších předpisů.
Více informací o zpracování údajů získáte zde (realitymix.cz/zasady-ochrany-osobnich-udaju)