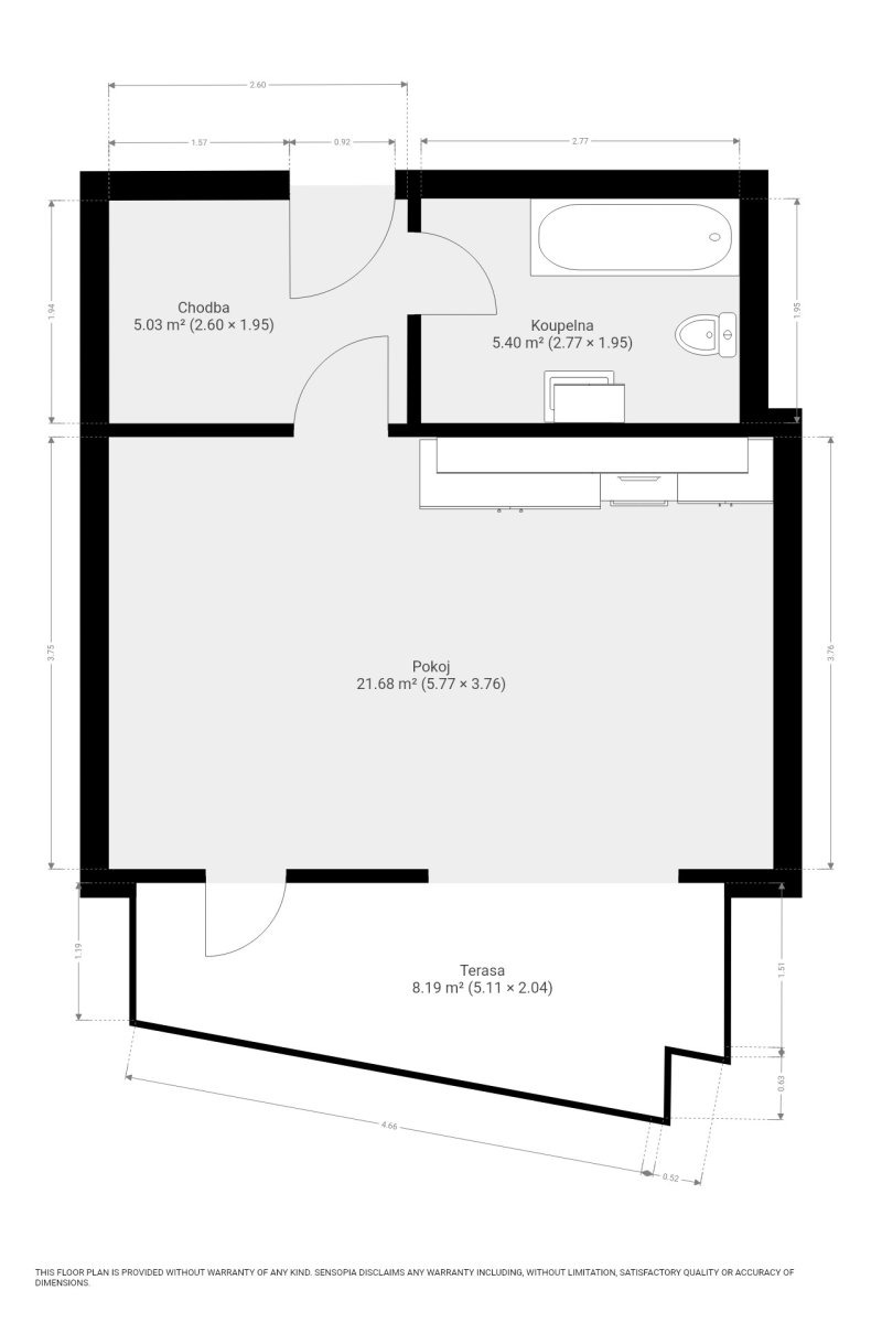
K pronájmu nabízíme světlý byt 1+kk o ploše 34 m², situovaný ve 3. patře novostavby. Dispozice je prakticky řešená – obytný prostor s kuchyňským koutem nabízí chytré úložné řešení. Díky novostavbě oceníte čisté linie, moderní standard a příjemnou atmosféru, která se neokouká.
K bytu náleží sklep, balkon a parkovací stání za poplatek 1.700,-/měsíc.
Byt je nabízen jako nevybavený, takže si jej můžete zařídit vlastním stylem. Skvělé řešení pro ty, kteří chtějí bydlet ve vysokém standardu.
Lokalita Zábrdovice patří mezi místa, odkud jste během chvíle v centru, a zároveň máte v dosahu obchody, služby i zastávky MHD. Ideální volba pro jednotlivce či pár, kteří chtějí pohodlný městský život v novém.
Byt je k nastěhování ihned.
Rezidence Pekárenský dvůr nabízí bydlení se službami pětihvězdičkového hotelu: k dispozici je recepce 24/7, privátní wellness se saunou, masérnou a jógovou zónou, fitness centrum i venkovní workout hřiště, cowork lounge, kavárna a řemeslná pekárna v přízemí. Součástí areálu je zelený vnitroblok s BBQ zónami a dětským hřištěm, společná střešní terasa, nabíjecí stanice pro elektromobily, kolárna a dílna.
Cena:
14 900 Kč / (za měsíc)
Poznámka:
vratná jistota, 5.101 Kč náklady na bydlení, 1.500 Kč parkovací stání, poplatek za podnájem
Uživatel serveru RealityMIX.cz (dále jen „Server“) dostupného na internetové adrese (URL) https://www.realitymix.cz, který provozuje společnost DALTEN media s.r.o., se sídlem Na Harfě 916/9a, Praha 9, 190 00, IČO: 271 35 306 (dále jen „Správce“) jako provozovateli tohoto Serveru uděluje svůj výslovný souhlas v souladu s ustanovením § 5 zákona č. 101/2000 Sb. O ochraně osobních údajů a o změně některých zákonů, v platném znění (dále jen „zákon o ochraně osobních údajů“), se zpracováním uživatelem poskytnutých osobních údajů a dalších dat.
Uživatel poskytuje Správci osobní údaje v rozsahu: jméno, příjmení, e-mailová adresa, telefonický kontakt a další data, a to z důvodu projeveného zájmu o nemovitost, kde prostřednictvím služby Serveru Správce osloví Uživatel inzerenta uvedeného v detailu
nemovitosti - Ideální nájemce (IČ 29300631) se zájmem o jeho služby.
Uživatel tyto osobní údaje poskytuje dobrovolně a bere na vědomí, že součástí služeb Správce, které Správce Uživateli poskytuje, je vyhledání všech Uživateli vyhovujících (dle parametrů - cena, typ nemovitosti, lokalita atd.) nemovitostí. Správce za tímto účelem provozuje aplikace Hlídací pes a newsletter. Tyto služby je možné z každého zaslaného emailu odhlásit. Souhlas se zpracováním osobních údajů Uživatel poskytuje Správci na dobu neurčitou s tím, že svůj udělený souhlas může Uživatel kdykoliv na drese správce info@realitymix.cz odvolat. Správce garantuje Uživateli i další práva uvedené v ustanovení §11 a §21 zákoba č. 101/200 Sb. Ve znění pozdějších předpisů.
Více informací o zpracování údajů získáte zde (realitymix.cz/zasady-ochrany-osobnich-udaju)