Pronájem bytu 1+kk, Brno - Trnitá, ul. Křenová, novostavba, balkon, výborná dostupnost do centra
Ve výhradním zastoupení majitele nabízíme k dlouhodobému pronájmu byt o dispozici 1+kk v městské části Brno - Trnitá na ulici Křenová.
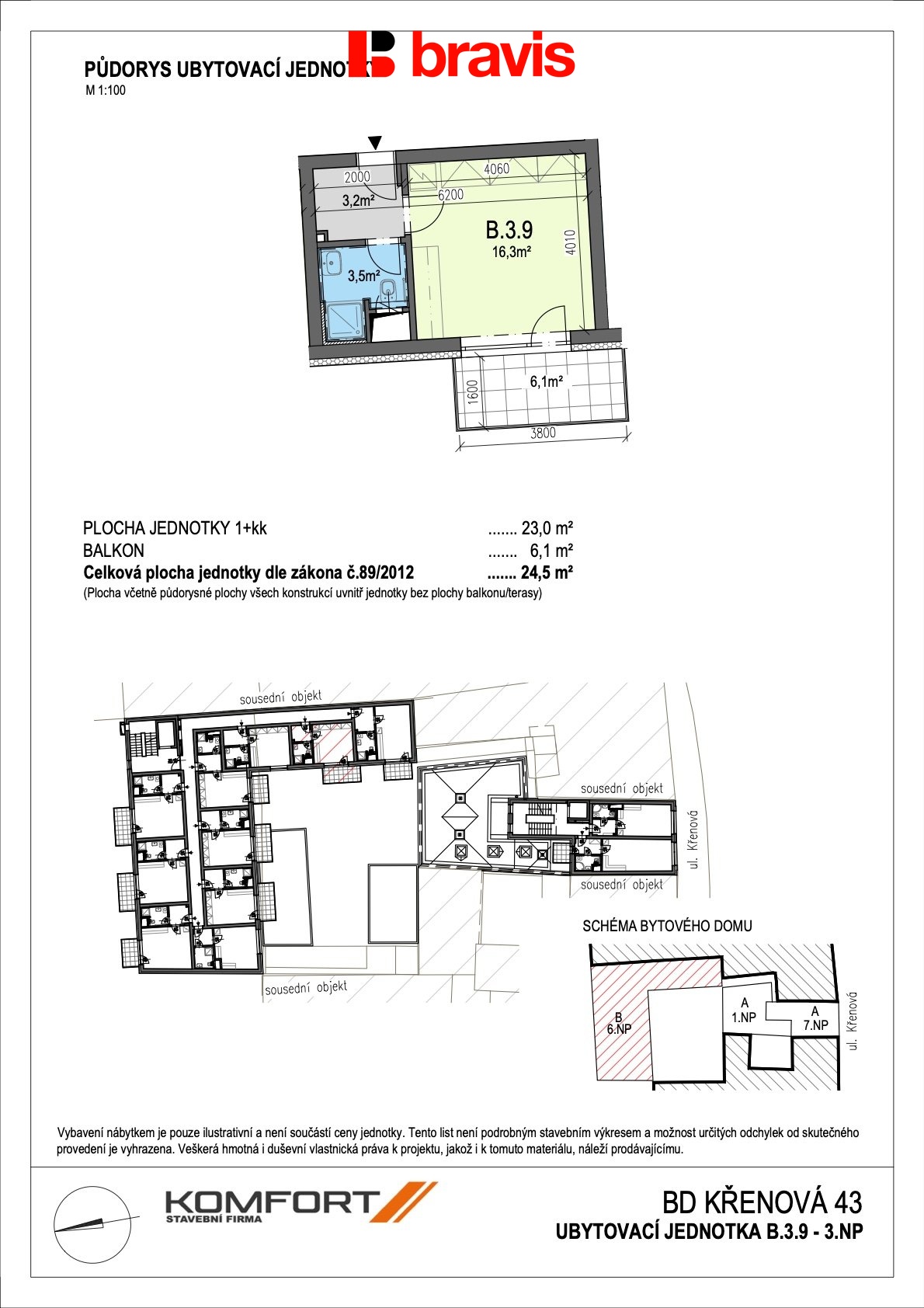
Byt o výměře 23 m2 se nachází ve 3. nadzemním podlaží novostavby s výtahem. Součástí bytu je i prostorný balkon o ploše 6 m2.
Kuchyňská část pokoje je vybavena linkou včetně lednice s mrazícím boxem, trouby, varné desky, digestoře a myčky.
Obývací část je bez zařízení a je zde tak možnost vlastního dovybavení. Z pokoje vede vchod na prostorný balkon, který je orientovaný do vnitrobloku, takže vás neruší hluk z hlavní ulice.
Zařízení koupelny tvoří sprchový kout, umyvadlo, otopný žebřík, toaleta a přípojka na pračku.
V chodbě je prostor na umístění šatní skříně.
Možnost připojení internetu a TV.
V blízkosti domu se nachází obchody, restaurace, kavárny a zastávka MHD.
Výborná dostupnost do centra města - pouze jednu zastávku MHD nebo 10 minut pěší chůze.
Prohlídky možné po domluvě s níže uvedeným makléřem.
Cena:
13 900 Kč / (za měsíc)
Poznámka:
+ 2.500,- Kč zálohy na služby + depozit + provize RK
Uživatel serveru RealityMIX.cz (dále jen „Server“) dostupného na internetové adrese (URL) https://www.realitymix.cz, který provozuje společnost DALTEN media s.r.o., se sídlem Na Harfě 916/9a, Praha 9, 190 00, IČO: 271 35 306 (dále jen „Správce“) jako provozovateli tohoto Serveru uděluje svůj výslovný souhlas v souladu s ustanovením § 5 zákona č. 101/2000 Sb. O ochraně osobních údajů a o změně některých zákonů, v platném znění (dále jen „zákon o ochraně osobních údajů“), se zpracováním uživatelem poskytnutých osobních údajů a dalších dat.
Uživatel poskytuje Správci osobní údaje v rozsahu: jméno, příjmení, e-mailová adresa, telefonický kontakt a další data, a to z důvodu projeveného zájmu o nemovitost, kde prostřednictvím služby Serveru Správce osloví Uživatel inzerenta uvedeného v detailu
nemovitosti - BRAVIS REALITY s.r.o. (IČ 27685781) se zájmem o jeho služby.
Uživatel tyto osobní údaje poskytuje dobrovolně a bere na vědomí, že součástí služeb Správce, které Správce Uživateli poskytuje, je vyhledání všech Uživateli vyhovujících (dle parametrů - cena, typ nemovitosti, lokalita atd.) nemovitostí. Správce za tímto účelem provozuje aplikace Hlídací pes a newsletter. Tyto služby je možné z každého zaslaného emailu odhlásit. Souhlas se zpracováním osobních údajů Uživatel poskytuje Správci na dobu neurčitou s tím, že svůj udělený souhlas může Uživatel kdykoliv na drese správce info@realitymix.cz odvolat. Správce garantuje Uživateli i další práva uvedené v ustanovení §11 a §21 zákoba č. 101/200 Sb. Ve znění pozdějších předpisů.
Více informací o zpracování údajů získáte zde (realitymix.cz/zasady-ochrany-osobnich-udaju)