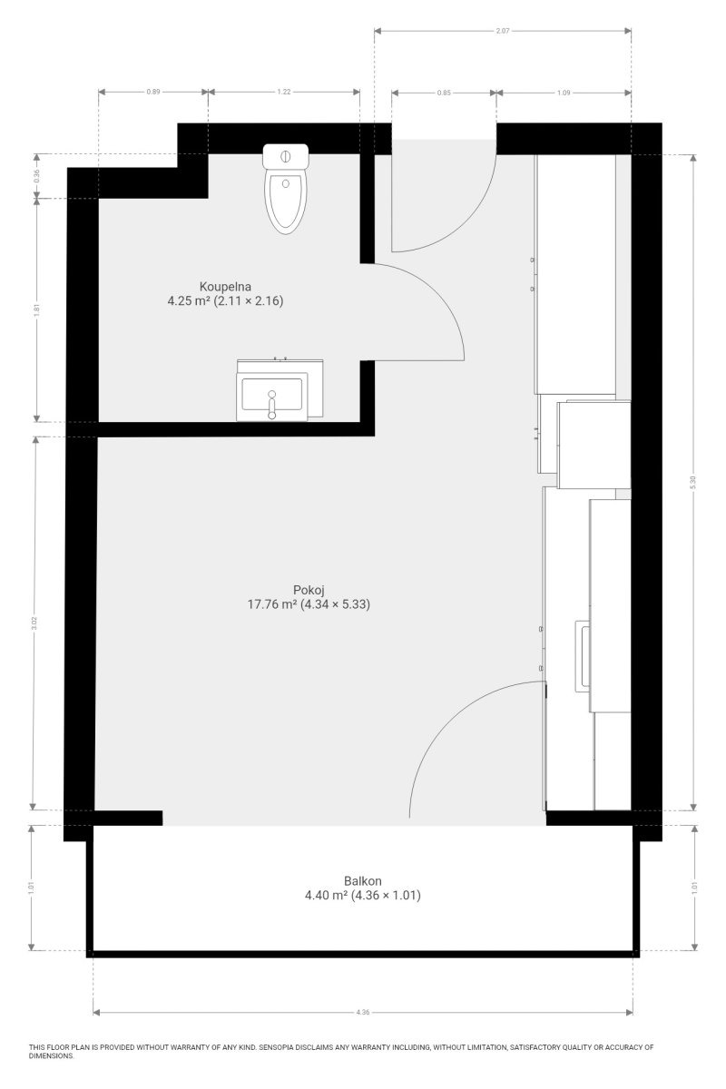
K pronájmu nabízíme moderní byt 1+kk o ploše 23 m² + balkon v atraktivní lokalitě na adrese Koliště 829/65a. Byt se nachází ve 4. patře novostavby s výtahem a potěší každého, kdo hledá nové, čisté a prakticky řešené bydlení.
Díky novostavbě získáte příjemný standard, úsporný provoz a klid z toho, že vše je nové – od společných prostor po samotný byt. Byt je nabízen vybaven dle fotografií. Výhodou jsou také venkovní žaluzie.
Okolí Koliště jsou skvělou volbou pro ty, kteří chtějí mít centrum Brna v pohodlném dosahu, stejně jako zastávky MHD, obchody, služby i možnosti trávení volného času. Ideální základna pro práci, studium i městský životní styl.
Pro více informací a domluvení prohlídky nás neváhejte kontaktovat.
Cena:
15 000 Kč / (za měsíc)
Poznámka:
vratná jistota, náklady na bydlení 3170 Kč, poplatek za podnájem
Uživatel serveru RealityMIX.cz (dále jen „Server“) dostupného na internetové adrese (URL) https://www.realitymix.cz, který provozuje společnost DALTEN media s.r.o., se sídlem Na Harfě 916/9a, Praha 9, 190 00, IČO: 271 35 306 (dále jen „Správce“) jako provozovateli tohoto Serveru uděluje svůj výslovný souhlas v souladu s ustanovením § 5 zákona č. 101/2000 Sb. O ochraně osobních údajů a o změně některých zákonů, v platném znění (dále jen „zákon o ochraně osobních údajů“), se zpracováním uživatelem poskytnutých osobních údajů a dalších dat.
Uživatel poskytuje Správci osobní údaje v rozsahu: jméno, příjmení, e-mailová adresa, telefonický kontakt a další data, a to z důvodu projeveného zájmu o nemovitost, kde prostřednictvím služby Serveru Správce osloví Uživatel inzerenta uvedeného v detailu
nemovitosti - Ideální nájemce (IČ 29300631) se zájmem o jeho služby.
Uživatel tyto osobní údaje poskytuje dobrovolně a bere na vědomí, že součástí služeb Správce, které Správce Uživateli poskytuje, je vyhledání všech Uživateli vyhovujících (dle parametrů - cena, typ nemovitosti, lokalita atd.) nemovitostí. Správce za tímto účelem provozuje aplikace Hlídací pes a newsletter. Tyto služby je možné z každého zaslaného emailu odhlásit. Souhlas se zpracováním osobních údajů Uživatel poskytuje Správci na dobu neurčitou s tím, že svůj udělený souhlas může Uživatel kdykoliv na drese správce info@realitymix.cz odvolat. Správce garantuje Uživateli i další práva uvedené v ustanovení §11 a §21 zákoba č. 101/200 Sb. Ve znění pozdějších předpisů.
Více informací o zpracování údajů získáte zde (realitymix.cz/zasady-ochrany-osobnich-udaju)