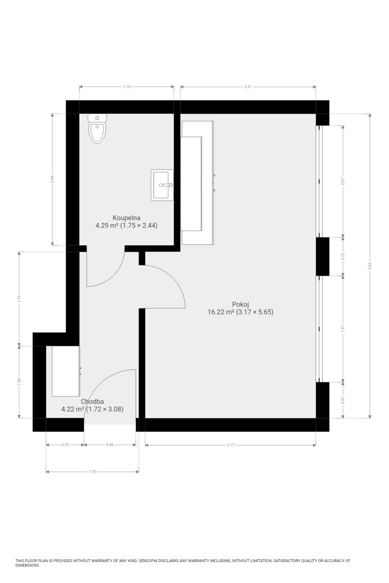
K dlouhodobému podnájmu nabízíme moderní nový byt o dispozici 1+kk v klidné a vyhledávané lokalitě Brno – Bystrc, na ulici Markůvky.
Byt o celkové výměře 25 m² se nachází v 2. podlaží cihlového domu s výtahem. Parkovací stání lze pronajmout za poplatek 1.500,-/měsíčně.
Byt se nabízí bez vybavení dle fotografií. Součástí bytu je pouze kuchyňská linka vybavena lednicí, mikrovlnnou troubou,, varnou deskou a digestoří. Koupelna je prostorná a moderně řešená, se sprchovým koutem, umyvadlem a toaletou.
Velkou předností bytu je jeho umístění – lokalita Markůvky nabízí klidné bydlení v zeleni s výbornou dostupností do centra města. V bezprostředním okolí naleznete kompletní občanskou vybavenost, jako jsou supermarkety Billa a Albert, OC Max, pošta, restaurace, mateřská škola i gymnázium. Milovníci aktivního životního stylu ocení blízkost přírody, brněnské přehrady, lesů a cyklostezek. Dopravní dostupnost je velmi dobrá, zastávka MHD Kubíčkova se nachází přibližně pět minut chůze od domu.
Byt je k dispozici ihned.
Cena:
13 900 Kč / (za měsíc)
Poznámka:
vratná jistota , 2.374 Kč náklady na bydlení, poplatek za podnájem
Uživatel serveru RealityMIX.cz (dále jen „Server“) dostupného na internetové adrese (URL) https://www.realitymix.cz, který provozuje společnost DALTEN media s.r.o., se sídlem Na Harfě 916/9a, Praha 9, 190 00, IČO: 271 35 306 (dále jen „Správce“) jako provozovateli tohoto Serveru uděluje svůj výslovný souhlas v souladu s ustanovením § 5 zákona č. 101/2000 Sb. O ochraně osobních údajů a o změně některých zákonů, v platném znění (dále jen „zákon o ochraně osobních údajů“), se zpracováním uživatelem poskytnutých osobních údajů a dalších dat.
Uživatel poskytuje Správci osobní údaje v rozsahu: jméno, příjmení, e-mailová adresa, telefonický kontakt a další data, a to z důvodu projeveného zájmu o nemovitost, kde prostřednictvím služby Serveru Správce osloví Uživatel inzerenta uvedeného v detailu
nemovitosti - Ideální nájemce (IČ 29300631) se zájmem o jeho služby.
Uživatel tyto osobní údaje poskytuje dobrovolně a bere na vědomí, že součástí služeb Správce, které Správce Uživateli poskytuje, je vyhledání všech Uživateli vyhovujících (dle parametrů - cena, typ nemovitosti, lokalita atd.) nemovitostí. Správce za tímto účelem provozuje aplikace Hlídací pes a newsletter. Tyto služby je možné z každého zaslaného emailu odhlásit. Souhlas se zpracováním osobních údajů Uživatel poskytuje Správci na dobu neurčitou s tím, že svůj udělený souhlas může Uživatel kdykoliv na drese správce info@realitymix.cz odvolat. Správce garantuje Uživateli i další práva uvedené v ustanovení §11 a §21 zákoba č. 101/200 Sb. Ve znění pozdějších předpisů.
Více informací o zpracování údajů získáte zde (realitymix.cz/zasady-ochrany-osobnich-udaju)